广州越秀万博合臻168户型
177
作品说明
- 项目类型:样板间/售楼处
- 项目地点:广州市
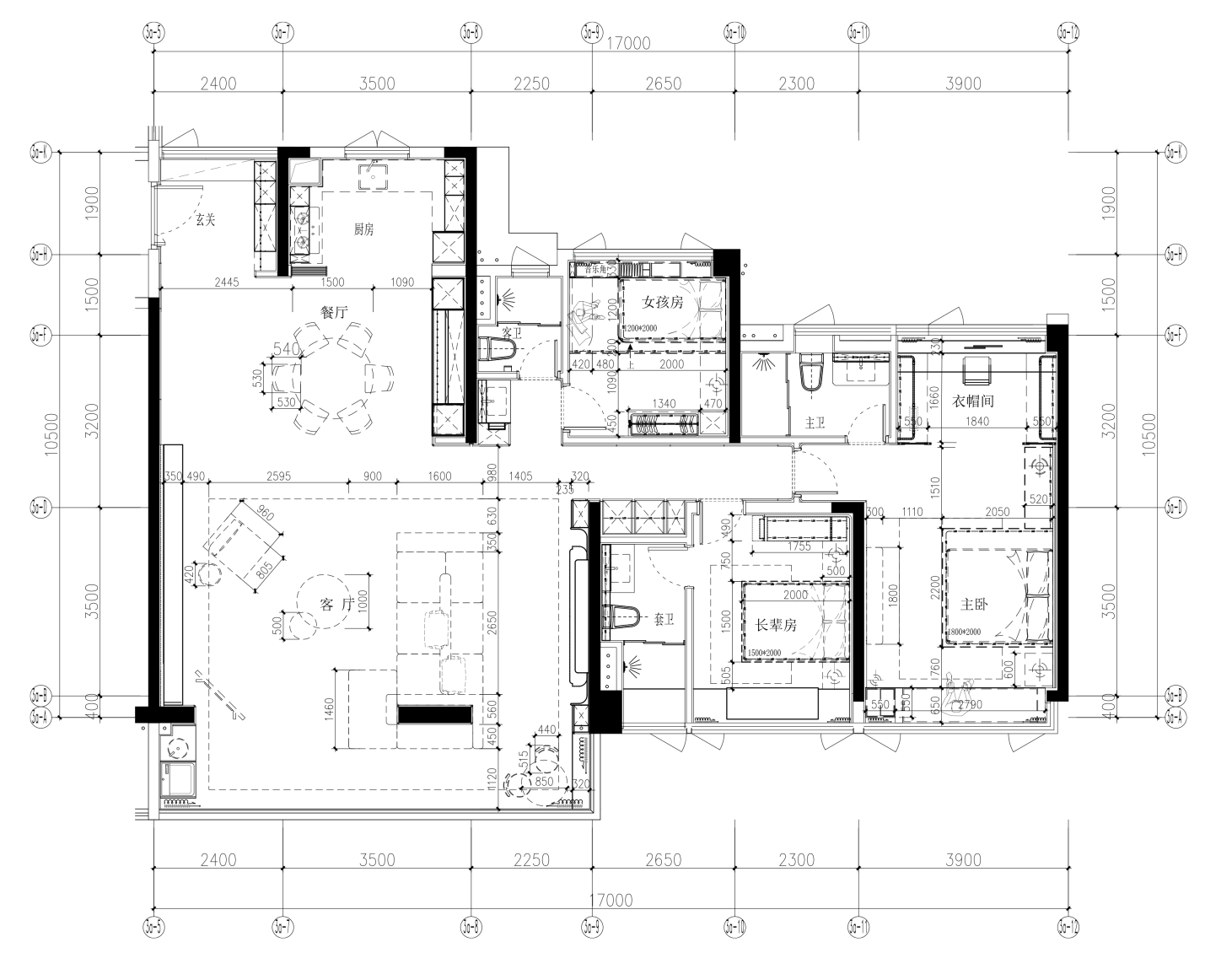
- 建筑面积:164㎡
- 项目造价:100万元
- 竣工时间:2025
-
项目定位:A.N.N DESIGN用复古的表皮再次演绎“家庭灵动岛”的生活理念,把家庭交流、景观、自我生活等方面进行融合,以复古表皮封存时光温度,让每个日常都成为「生活的艺术展」。
-
空间意境:客厅以舒展的格局铺开对空间的叙事,温润木饰面如舞台幕布般徐徐展开;落地窗将广州的天际线柔化成胶片的质感,为空间蒙上怀旧色调。
独处是灵魂的阅读,书房则是思想的舞台。复古书架如层层帷幕,在纵深的空间里,聚光灯落在泛黄的书页上——你既是观众,也是主角。
-
空间布局:客厅以舒展的格局铺开对空间的叙事,温润木饰面如舞台幕布般徐徐展开;落地窗将广州的天际线柔化成胶片的质感,为空间蒙上怀旧色调。
独处是灵魂的阅读,书房则是思想的舞台。复古书架如层层帷幕,在纵深的空间里,聚光灯落在泛黄的书页上——你既是观众,也是主角。 -
设计选材:A.N.N DESIGN |越秀·万博·和臻——永不散场的复古剧场
-
用户体验:A.N.N DESIGN |越秀·万博·和臻——永不散场的复古剧场
0
0

认证 · 让您身份增值