-
项目定位:该项目是业主为自己父母修的一栋养老房,前院朝山,后院邻路。作为养老房,所以舒适、休闲、与自然零距离。
-
空间意境:由于本项目前院面山,后院临路,所以我们设计时将主要的采光面留给了山景,自然山景犹如一幅幅四季变化的画卷装点我们的室内,而室内部分我们尽量使用自然的元素合色彩,让整个空间稳定且柔和,更适合悠哉悠哉的养老生活。
-
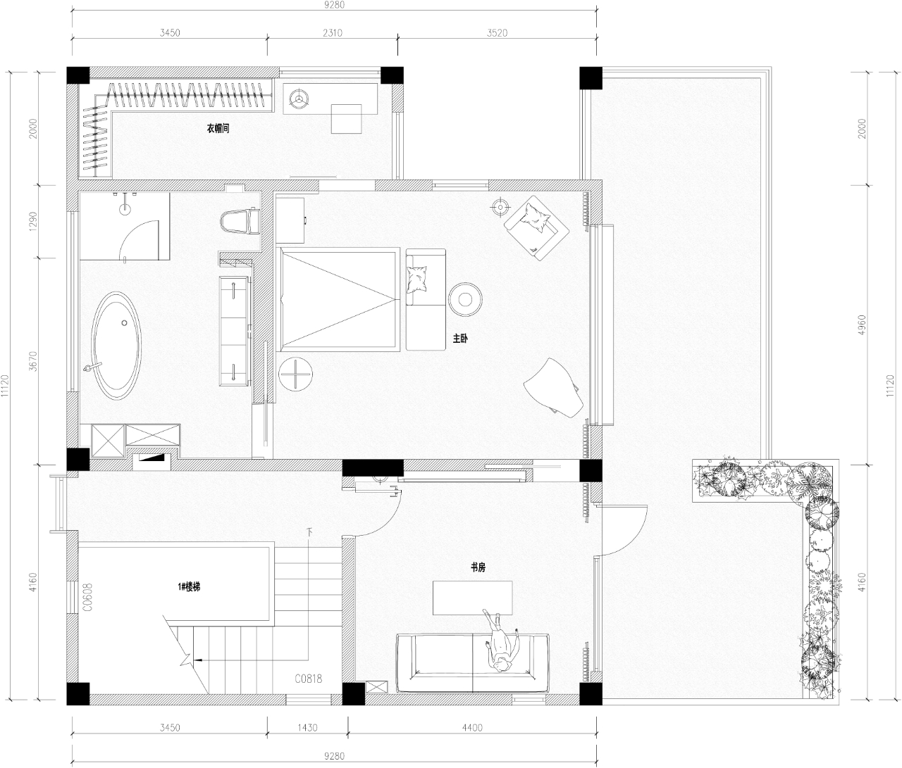
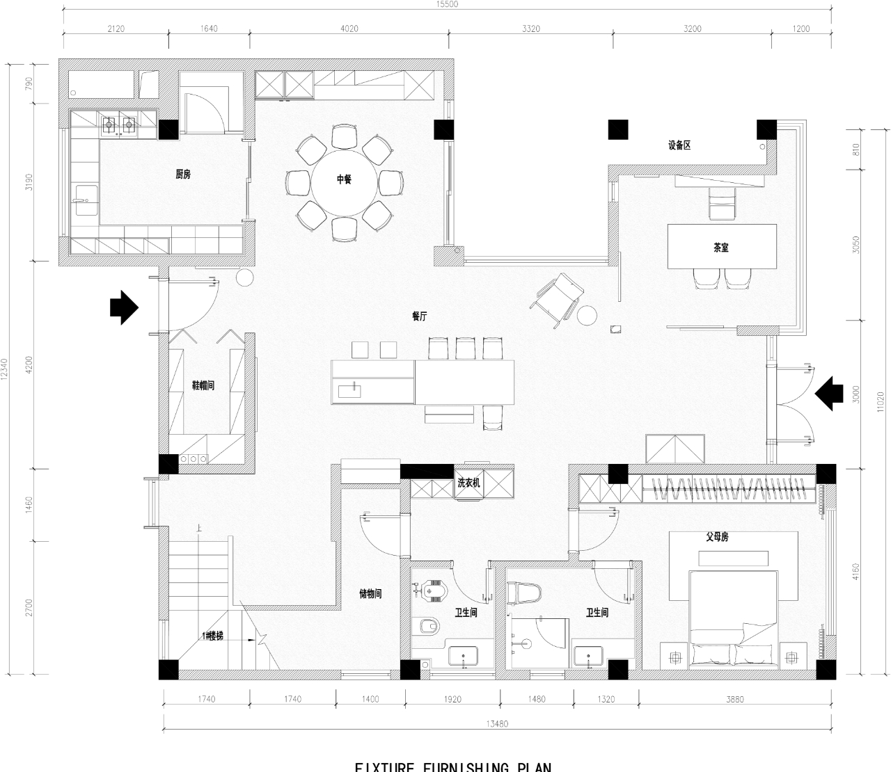
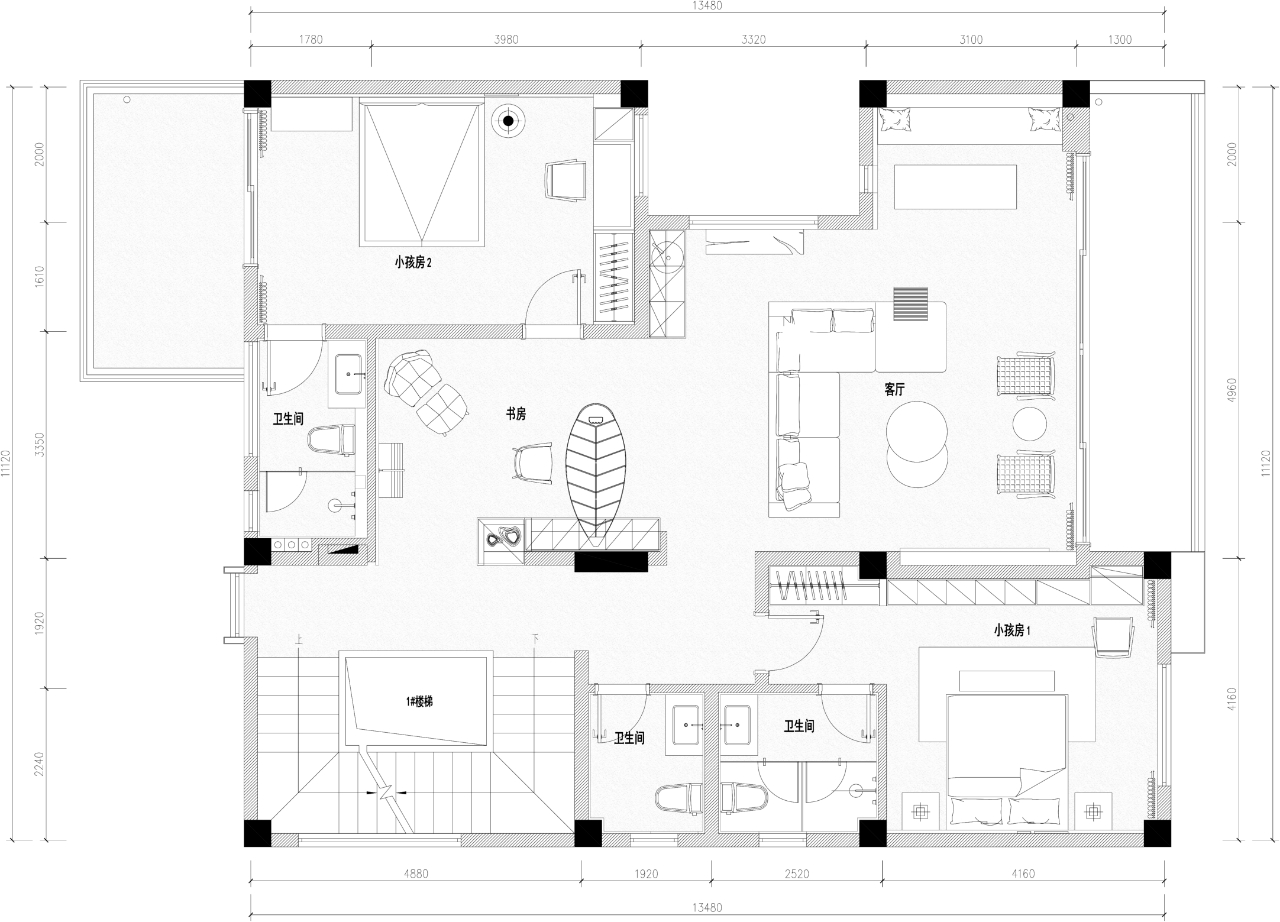
空间布局:功能规划上,我们将一层设计为父母的活动区,广东人爱喝茶,所以一层我们设计了一个公共区域的茶室,一个独立的茶室。二层地形更高,可以远眺山景,所以二层作为家庭的活动区域和两个小孩的卧室。三层则是独立的主卧套房;
-
设计选材:我们的地面采用的石晶石地板,既有木纹的经济美观又非常的低碳环保,而且还非常的防潮耐磨。
-
用户体验:舒适美观
0
0

认证 · 让您身份增值
149