黎境·意居
38
作品说明
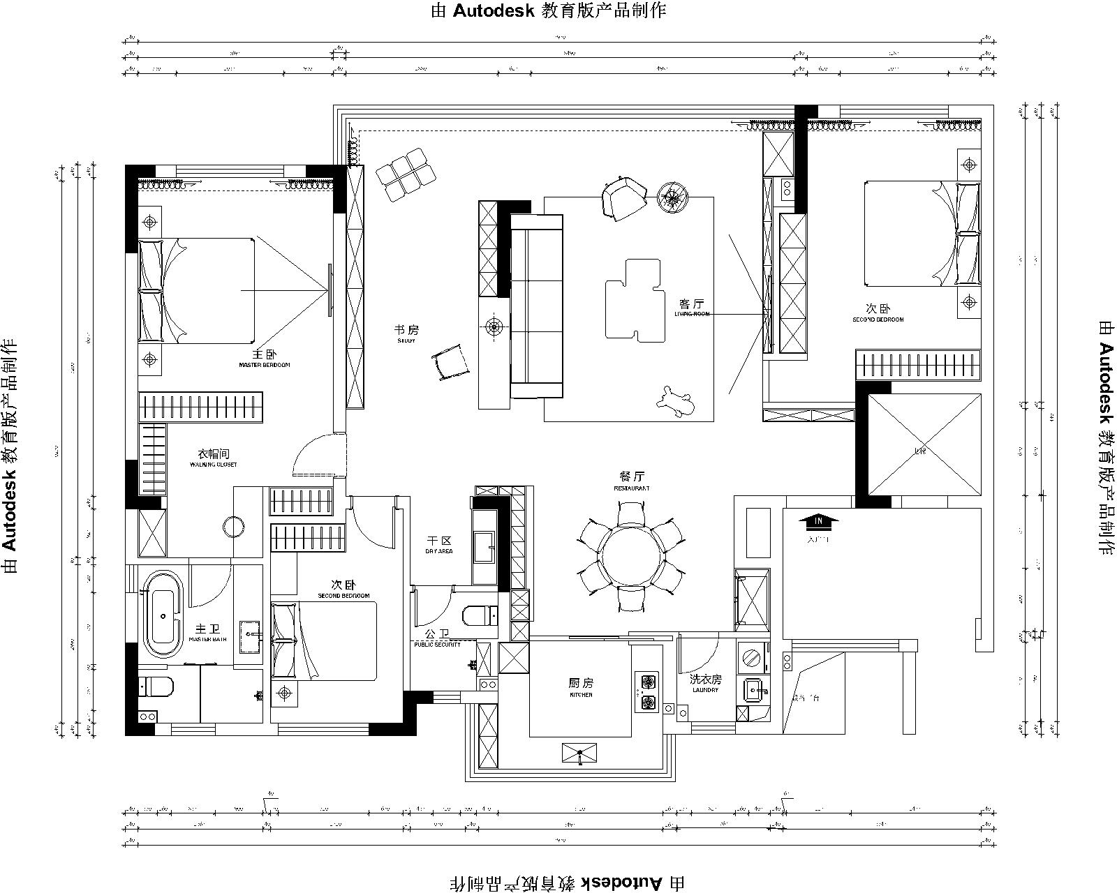
- 项目类型:住宅公寓
- 项目地点:泰州市
- 建筑面积:180.0000㎡
- 项目造价:100.0000万元
- 参与设计师:泰州市田佳禾空间设计有限公司
- 竣工时间:2025
- 设计机构:泰州市田佳禾空间设计有限公司
-
项目定位:以“简约不简单”为核心,用干净线条+柔和色调,把家打造成能卸下所有疲惫的治愈空间,每一寸都藏着对品质生活的极致追求,住进来才懂得什么叫“身处归处”
-
空间意境:意识现代极简,以克制的设计手法,融合天然材质与中性色调,营造出宁静而富有质感的居住空间
-
空间布局:清晰又通透,没有花里胡哨得造型,却让每个角落都宽敞又舒服
-
设计选材:
-
用户体验:住进来之后,每个地方都贴合日常习惯,用着顺手、看着舒服,每天回家都觉得幸福感满满,特别放松
0
0

认证 · 让您身份增值