高尔夫逸墅
52
作品说明
- 项目类型:别墅
- 项目地点:佛山市
- 建筑面积:412.0000㎡
- 项目造价:220.0000万元
- 主案设计师: 孔德宝
- 竣工时间:2025.1.2
-
项目定位:高尔夫环绕的独栋别墅,整个别墅区与球场融为一体,葱郁青翠,每一眼都是绿意盎然。有竹,有鸟,有虫鸣,如沐春风,舒适宜人,有所期待便是生活。
-
空间意境:窗外的风景四时更迭,与室内气韵缱绻相融,微妙的情愫顷刻流露。
-
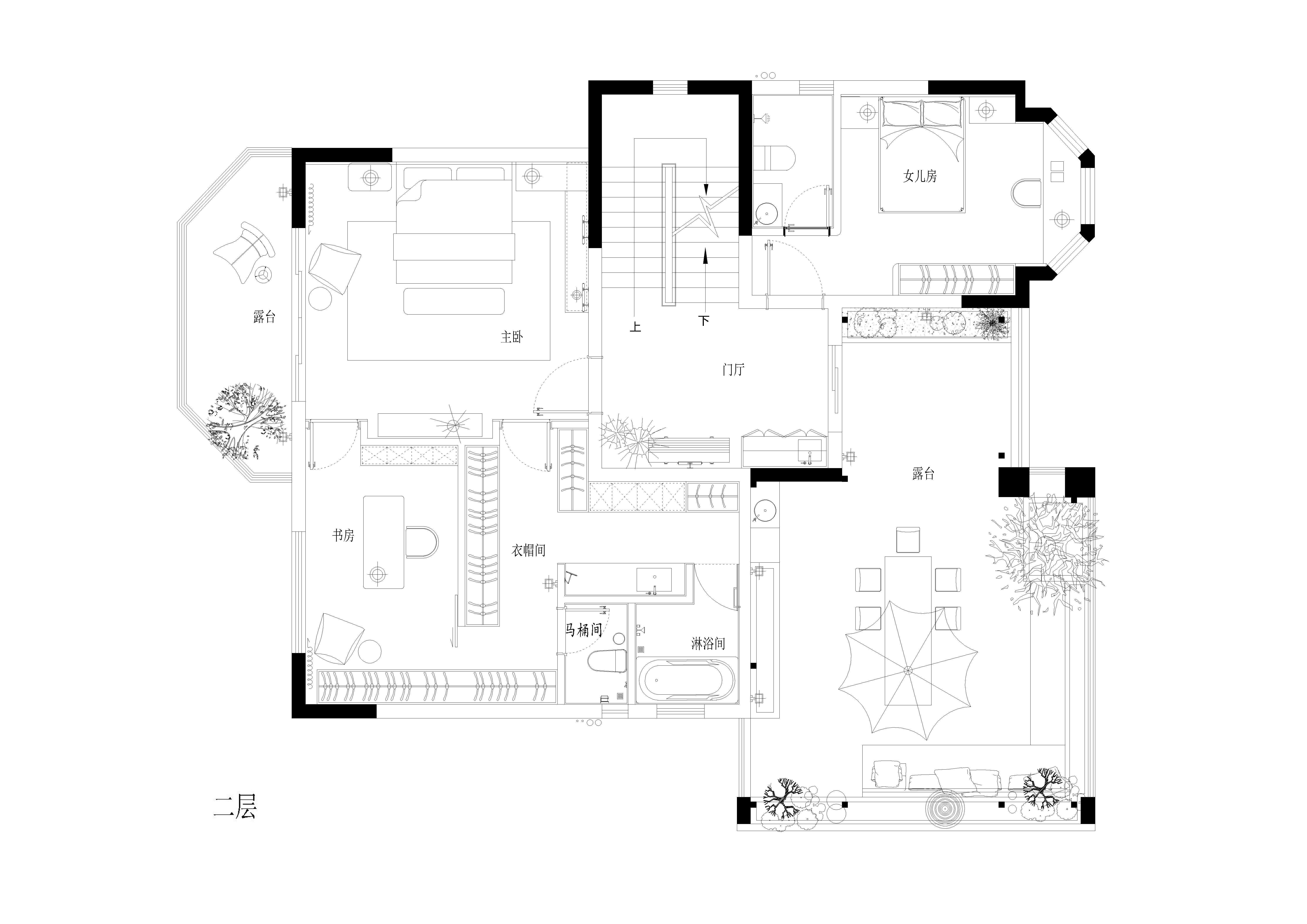
空间布局:布局以开放、通透为主,通过合理的空间划分,将公共空间相互融合,形成开阔的视野和流畅的动线。低调的留白处理,赋予了艺术饰品更多的展示空间。
-
设计选材:选择环保古法石灰墙、环保涂料剂、木材建材上都使用环保除醛的,让屋主住的安心与安全!设计层面也使用环保除甲醛的建材,并利用各种材质属性搭配铁件、木材、系统柜、磁砖创造出节能减碳优质化空间设计。
-
用户体验:回归生活本质,静享生活恬静淡然之美。
一层布局以开放、通透为主,通过合理的空间划分,将公共空间相互融合,形成开阔的视野和流畅的动线。低调的留白处理,赋予了艺术饰品更多的展示空间。 阳光漫过纱帘,一壶清茶,悠悠袅袅,暗香沁入心脾。
光与影,白色空间基调,穿插简练的块面关系,搭以温润的咖色木饰面和肌理感的大理石。具有凝聚力的现代气息,细腻而丰富不凡。 光里有温情,影里有画意,生命之外还有生活。加以自然,便有了光感,生活多了份柔情与温馨。
主卧室干净简练的明朗线条营造着沉着克制的空间基调,搭以艺术的软装配饰,柔与刚,含蓄与迸溢,兼收并蓄。
童年,是成长的摇篮!《小王子》里说:“使生活如此美丽的,是我们藏起来的真诚和童心。”小时侯攒下来的爱,是长大后能解忧的光。
花园连着高尔夫,无论在花园、客厅、房间都能看到绿油油的果岭草坪,悠然舒适,是童年成长中难得的养眼景观。
0
0

认证 · 让您身份增值