开花甜 Farfa Flora
98
作品说明
- 项目类型:餐饮
- 项目地点:成都市
- 建筑面积:400.0000㎡
- 项目造价:120.0000万元
- 主案设计师: 钟莉
- 竣工时间:2024年11月29日
- 设计机构:壹阁设计
-
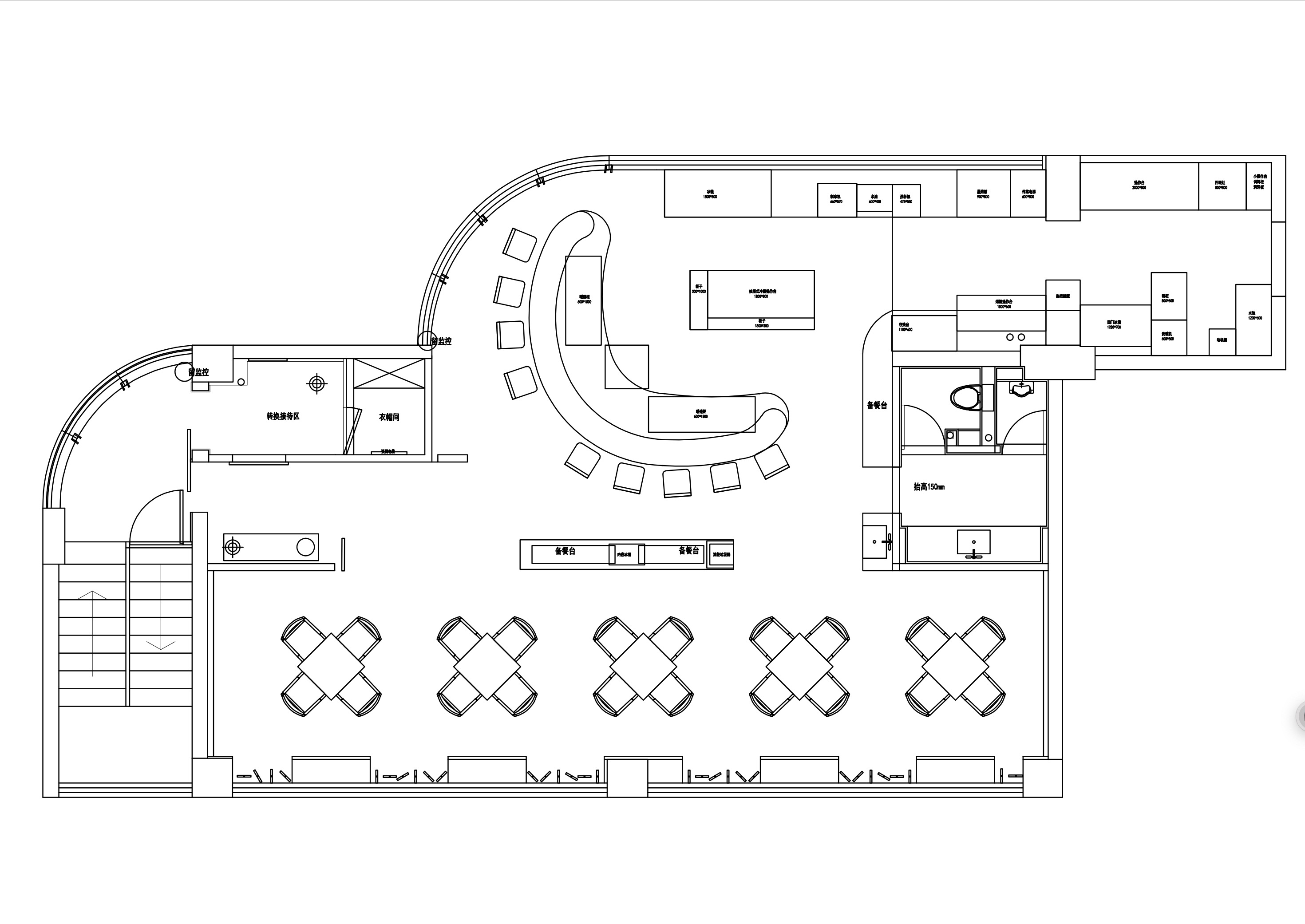
项目定位:开花甜 Farfa Flora”餐厅的设计理念融合了现代与质朴的元素,“趣味与探索”创造了一个充满创意的沉浸式空间。通过餐厅的层次展开,实现顾客在每一层中体验不同的体验美学形态和体验空间。每一层都仿佛一个精心雕琢的游乐园,每一层的变化如同从一颗种子发芽再到开出一朵花。立体的游逛乐园,私密、精致、宁静的大隐于市的氛围。从烟火气食铺到主题空间,再到正式用餐区,“吃饭”成了五感探索的场景,形成餐厅与食客的巧妙互动。
通过层层递进的探索,重新定义fine dining 从进门就开始体验创意美学与味觉的盛宴。
空间设计强调宁静与精致,利用现代感与自然元素之间的平衡。以中性现代色调为主,运用光照、木材,以严谨和精致营造出宁静、舒适而丰富的层次感的氛围,重新定义餐厅形态。
略显磨损的痕迹为空间增添了故事的感。温润的质感传递出一种沉稳与自然的气息,让人踏入就能感受到空间的独特魅力和品质感。
设计既强调美学,又注重体验,顾客从进门的那一刻起便能实现餐厅创意与美学的融合,这样仿佛走进一场游园会。
-
空间意境:所有听过和没听过开花的人群
做独一无二,成都第一,高级,故事
开花甜 Farfa Flora·趣味与探索是永恒的主题。逐层探索小楼,如同一个精心雕琢的游园,每一层都藏着不同的惊喜。用严谨、细致的态度重新定义fine dining 从进门就开始体验创意美学与味觉的盛宴。
浸式享受整个过程,
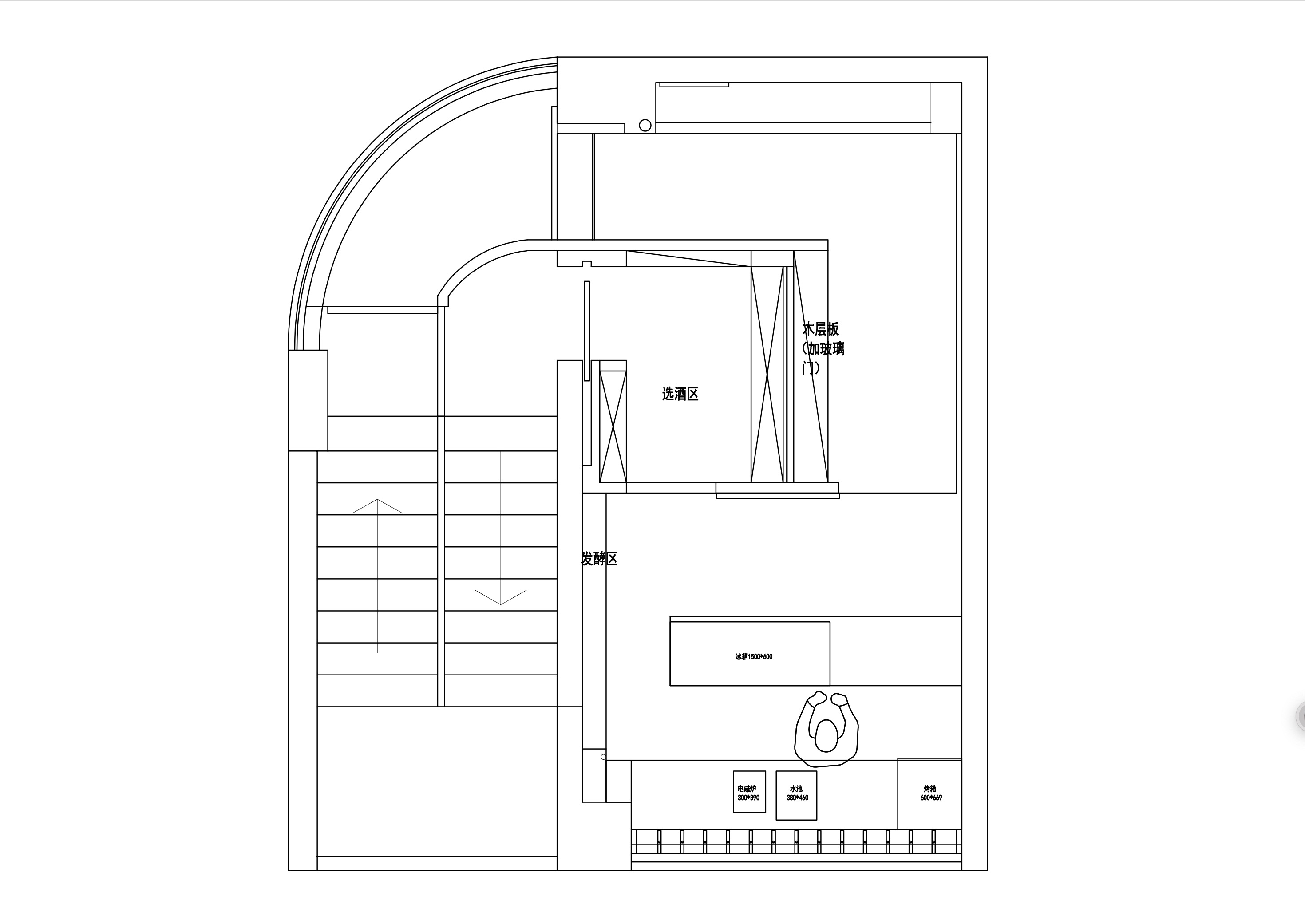
这一栋五层的小楼打造成了一处城市外的趣味小岛。
设计和装修过程中来了无数次的地方,
在这次受邀体验这一场美食游园时,
让我们都收获了这一个废墟里开出的美丽花朵。
新的开花甜也将迎来它更大更美好的绽放 -
空间布局:本案是一个餐厅“开花甜 Farfa Flora”,希望靠近所有“听过和没听过”开花的人群实现分享。Farfa Flora·开花甜: “趣味与探索是永恒的主题”,每层设计都精心呈现每个不同的美学形态与游玩体验空间,通过楼梯展开“开花甜”的流程,精致餐饮与创意的时间空间里,将所有客人带入一场沉浸式美学和味觉之旅。
现代与质朴之间的和谐共生,让人在喧嚣的都市生活中找到宁静
精心雕琢的游园,随着层层递进,通过每一层漫漫探索,可以发现藏着的各种惊喜。以严谨和精致,重新定义餐饮,从进门就开始经历一场创意美学与味觉的盛宴,浸然于整个体验中。将五层小楼打造成一处城市中的“游园体验”,“开花甜”为我们带来了“在废墟里开出的美丽的花”这样的惊喜,用开花般的喜悦,共同欣赏“更特别、更美丽的盛开”。
表面略显磨损的痕迹为空间增添了故事的感。温润的质感传递出一种沉稳与自然的气息,线条流畅而现代,与木材台阶形成了鲜明的对比,柔和的光线,为整个楼梯区域带来温馨而舒适的照明,同时也提升了空间的层次感。用心体现在每一个细节之中,让人感受到空间的独特魅力和品质感。
质感的餐厅场景,内部设计简约而优雅,以深色为主色调,营造出一种低调而奢华的氛围,然光透过窗户柔和地洒落,为餐厅增添了温暖与明亮,使整个空间更加舒适宜人。
色调以中性色为主,营造出一种宁静而舒适的氛围。裸露的横梁和管道设计不仅增添了原始与质朴的气息,通过精心的布局与装饰,展现了一个既优雅又舒适的餐厅环境。深色调的运用使得整个空间更加低调而奢华,而自然光与艺术品的加入则为餐厅增添了温暖与生机。这样的设计不仅提升了餐厅的格调与品质,为宾客提供了一个全新的用餐体验。 -
设计选材:在本案中,我们最具创新性的选材策略是大量运用回收旧木。这不仅是出于美学考量,更是我们践行可持续发展理念的核心举措。
在环境层面,我们通过赋予这些‘废墟’中的材料第二次生命,显著降低了项目的碳足迹,将‘低碳’理念根植于空间的每一处肌理。
在经济层面,这不仅是成本效益最优的选择,更重要的是,旧木所承载的‘时间故事’与独特质感,为新空间注入了无法复制的历史底蕴与情感温度,为我们‘在废墟中开花’的品牌叙事提供了最坚实的物质载体。选择旧木,是一次对地球的善意回应,也是一次极具智慧的价值投资。它完美诠释了‘开花甜’如何将趣味、美学、责任与智慧融为一体。” -
用户体验:喜欢创意点从烟火气食铺到主题空间,再到正式用餐区,“吃饭”成了五感探索的场景,能让餐厅与食客的巧妙互动。非常满意。
0
0

认证 · 让您身份增值