法式别墅丨左岸的回声
72
作品说明
- 项目类型:别墅
- 项目地点:武夷山市
- 建筑面积:365.0000㎡
- 项目造价:1800000.0000万元
- 主案设计师: 余恺
- 参与设计师:余恺
- 竣工时间:2024.10
- 设计机构:DAQ大千全案
-
项目定位:女主是对法式风格情有独钟,我们将项目聚焦于女性视角,融入法式的优雅、浪漫与独立精神。
-
空间意境:留白与呼吸感:与传统法式的“满”相反,现代法式将就“留白”。墙面和空间适当留白,让视觉和心灵得以喘息,现代法式是从传统法式的“浓郁复古”到“舒缓中性”的转变,更加冷静、柔和,旨在营造一种轻奢、宜居的优雅氛围。
-
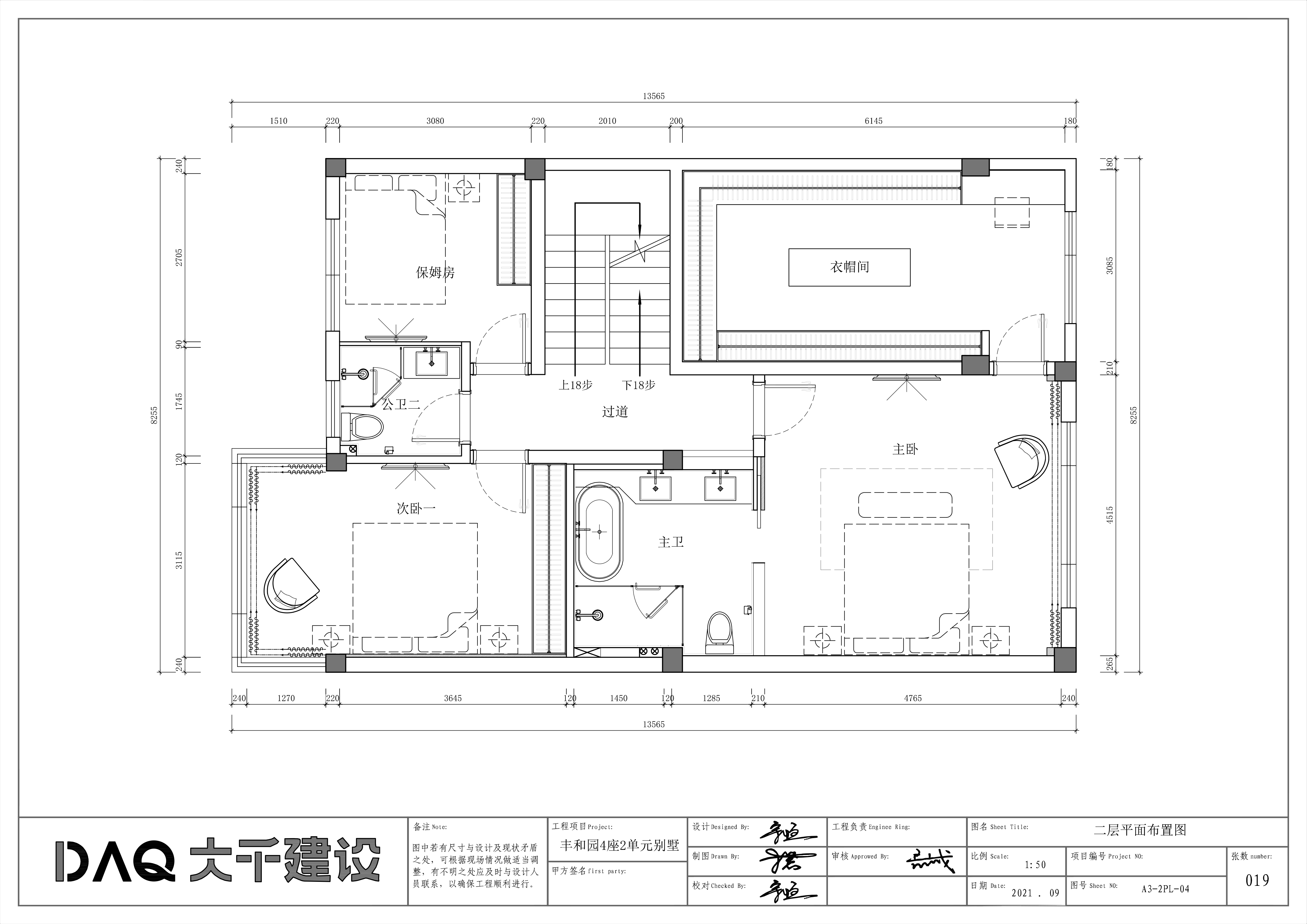
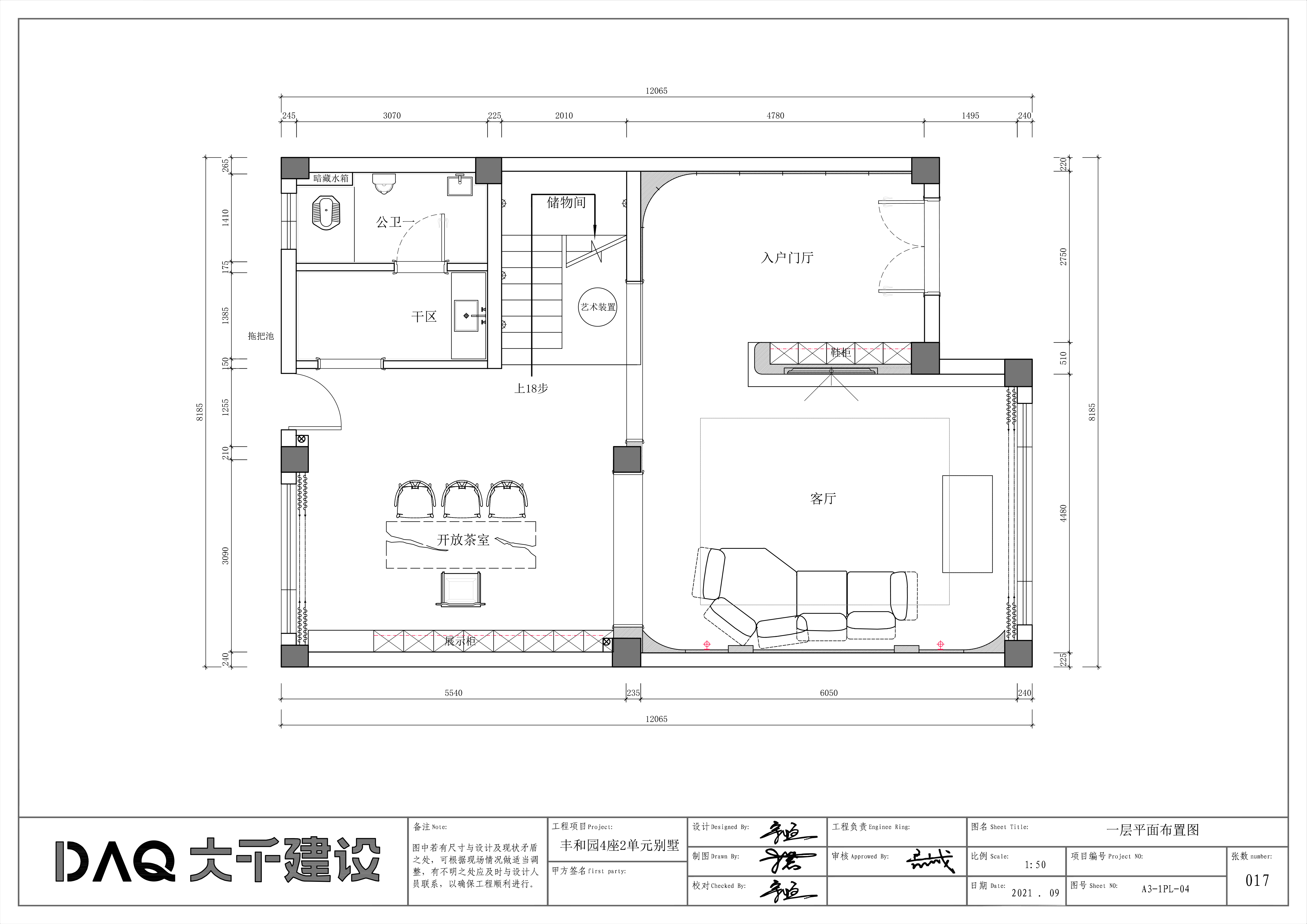
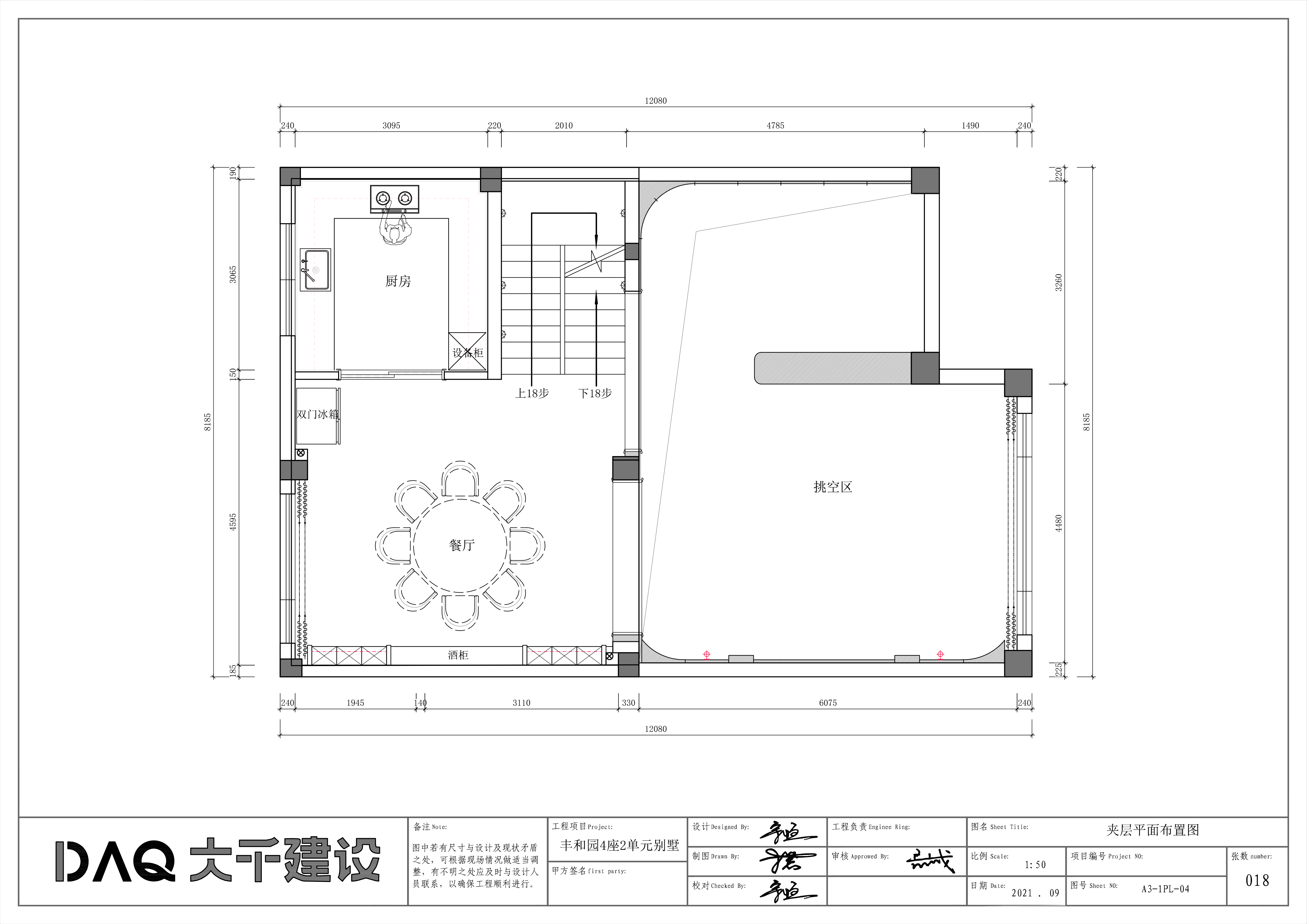
空间布局:拆除一二楼之间的部分楼板,打造一个挑空跃层客厅,它不仅能重塑空间尺度,更能为“现代法式”注入灵魂。挑空设计的关键在于,上下两层的视觉上是一个整体,而非割裂的两个楼层,拆除楼板实现挑空,是现代法式创新中“破局”的一步。打破了传统空间的封闭感,通过引入高度、光线和纵向的流动性,将一个传统的居住空间,转变为一个立体的“小殿堂”。这一切的最终目的,都是为了营造那种开阔、明亮、优雅且充满艺术感的现代法式生活场景。
-
设计选材:大理石瓷砖、芬琳艺术涂料
-
用户体验:女主对整体落地效果很满意,发了小红书也得到了广泛好评
0
0

认证 · 让您身份增值