海舍·梦幻之舟
51
作品说明
- 项目类型:酒店
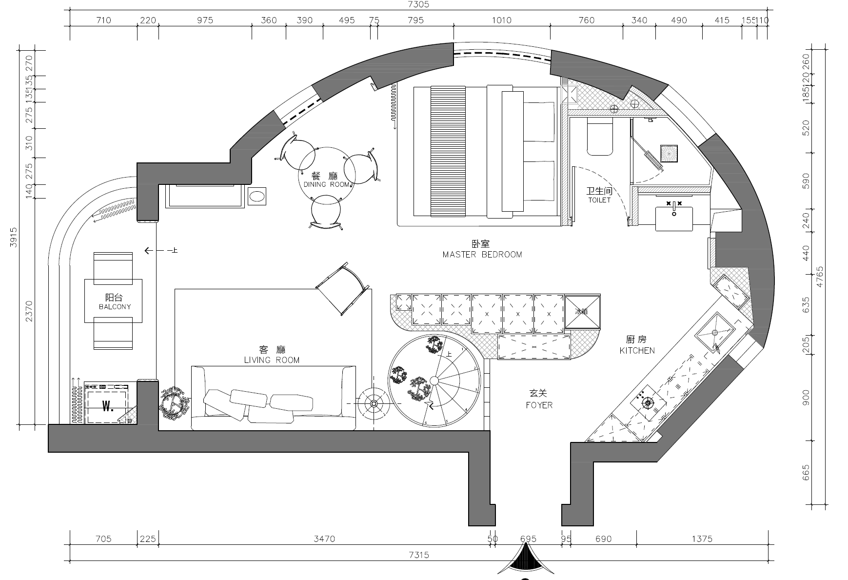
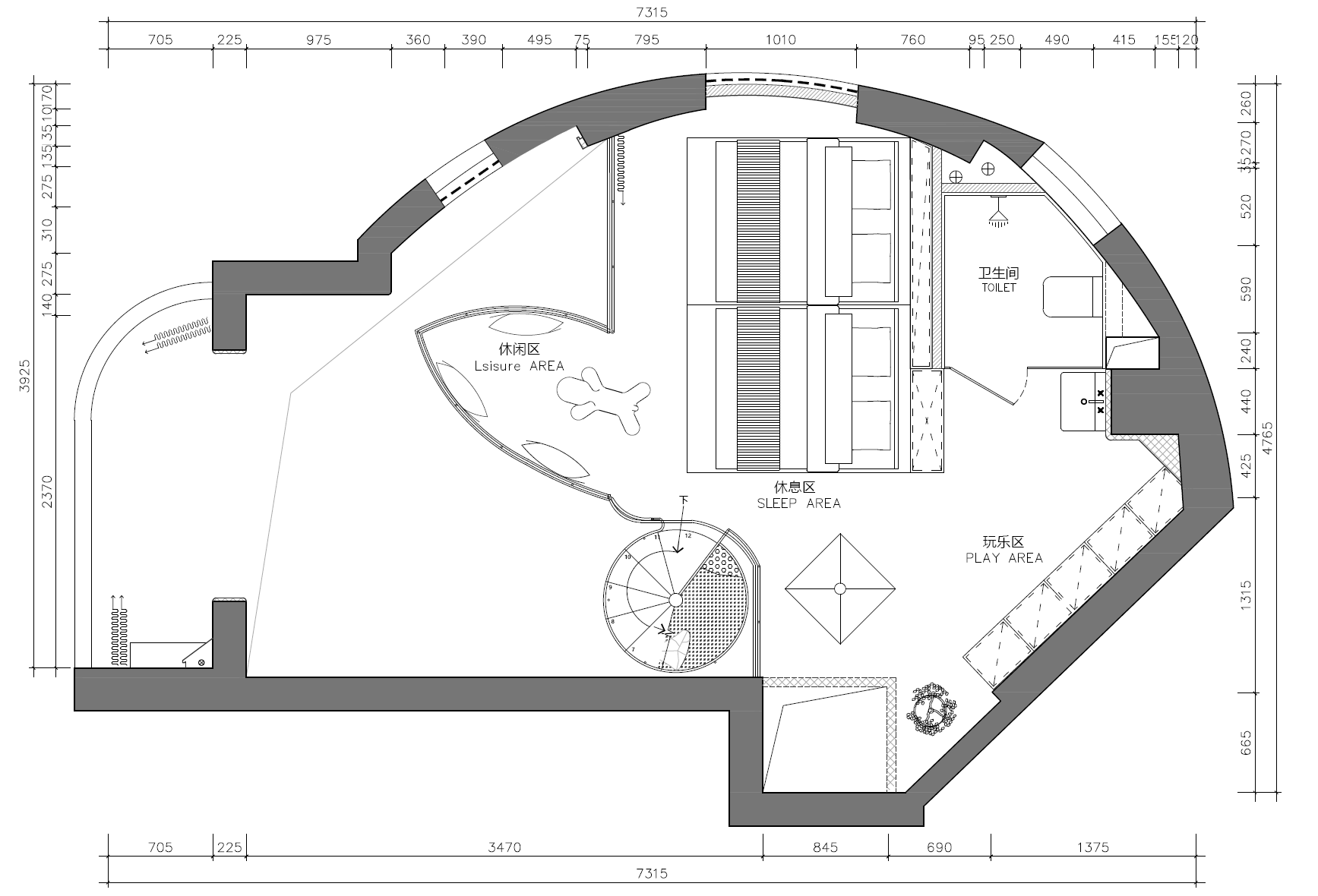
- 项目地点:大连市
- 建筑面积:73.0000㎡
- 项目造价:20.0000万元
- 竣工时间:2024/12/31
- 设计机构:大连拙之设计工作室
-
项目定位:本案位于海滨城市大连,星海广场旁公寓楼。这是业主委托我们做的第四套民宿,我们希望做的更有辨识度,年轻化。
酒店民宿近几年发展迅猛,不过同质化严重,竞争力较弱。
如何能在众多民宿中脱颖而出是我们的思考起点,所以我们着重在空间结构做出不同的变化,增加体验感,同时做出引爆点,打造出足够吸睛的网红但不俗套的民宿。 -
空间意境:有了思考起点,结合大连海边城市的地理特征,同时也为吸引前来游玩的顾客,我们利用挑高优势,打造一艘悬浮船,背景浅色打底,涂刷以清新的绿色,成为空间视觉焦点。船周边吊了鱼群装饰,仿佛在海中披荆斩棘,乘风破浪!
-
空间布局:考虑让顾客入住有深刻的印象,我们从进门开始就设置了巧思。左手边砌上透光不透影的整面玻璃砖,旋转楼梯及下方景观,若隐若现,增加神秘感。
我们延长了到客厅的动线,压缩了吊顶,过道宽度,增加收缩感,当走到客厅,挑高区,空间开敞,整面大落地玻璃,窗外无敌海景!
豁然开朗,心情舒畅!能让顾客在短时间能就有不同的入住体验!
-
设计选材:为尽量控制预算和压缩工期,我们采用生态板现场制作,材料十分环保,整体没有使用墙板,复杂造型,墙面以耐污乳胶漆为主。
-
用户体验:摘自去哪app
1.最后一天的民宿,全家一致都很满意,特别是孩子,开心的不得了,看出来民宿老板的用心,房间很新,海景尽收眼底,美得不像话,为这次大连行画上圆满句号。
2.这家民宿真的让我感到惊喜!从入住到退房,每一个细节都让我感到贴心和舒适。房间干净整洁,布置温馨,设施齐全。下次再来,我一定会再选择这家民宿!和照片一模一样!好看!以后我买房了就装修成这样。
0
0

认证 · 让您身份增值