香颂·云邸
221 - 项目类型:别墅
- 项目地点:广州市
- 建筑面积:1800㎡
- 项目造价:300000万元
- 主案设计师: 杨在英
- 参与设计师:杨在英、王仪方
- 竣工时间:2025-02-12
- 设计机构:木马人空间设计
-
项目定位:该项目以“自然共生”为核心理念,对原有建筑进行改造升级,将原本背光的灰色空间重新激活,并依据居民家庭结构与生活动线,实现功能分层规划。
四层空间均面向河景开放,最大限度引自然入室。日光在墙面流转,形成动态的光影画面;昔日昏暗的螺旋楼梯,经由室内外光线的策略性布局,被重塑为一座明亮的“艺术光廊”。
环境意识、未来适应力与艺术表达在此深度融合。雨水经茂密绿植系统过滤与循环,构建出绿色的生态循环体系,最终塑造出一个既适宜居住,又具备实际价值的当代人居范本。
-
空间意境:空间亦兼顾多功能储备与代际共居需求。水平厅室与茶室可灵活转换为家庭办公室或复合用途空间,适应未来多元社交模式。四层分区设计满足不同年龄层的生活需求,儿童游乐区与酒窖博物馆并置,呼应多子女家庭与老龄化趋势。此外,智能照明与空气环境系统集成实现光影、温湿的精准调节,为未来全屋智能升级预留可能。
-
空间布局:法式优雅与现代简约于此和谐相融,拱形立柱、螺旋楼梯与水晶灯光勾勒出经典与现代交织的视觉印象。在纯粹的白色基调与极简线条中,艺术与自然悄然对话——阳台外珠江城景与室内绿植相映,构成一幅“流动的艺术绘画”;光影交织间,香槟色皮椅、玉白石餐桌与亚克力儿童展示柜,借材质与色彩的对比,进一步丰富了空间的质感层次。
-
设计选材:自然共生设计——建筑与周围的绿色植物和湖泊融为一体,最大限度地减少了对原有建筑的破坏
地貌和保护自然生态系统。室内外景观渗透-大型落地窗和阳台
引入自然光和通风,减少对人工照明和空调的依赖。微生态循环——绿墙或
屋顶花园调节小气候,净化空气。被动式节能设计——白色立面反射阳光,减少
热辐射;开放的水平大厅布局优化了自然通风,减少了冷却需求。本地偏好
材料——选用天然大理石和木制家具等地域性材料,减少维护成本和时间。长期耐用性
-选用优质皮革、丝绸等耐用材料,避免频繁更换和资源浪费。 -
用户体验:客户入住后给出了多次感谢,并介绍了2个私宅客户给我们,这对于我们的设计服务是最直观的认可
色彩斑斓的亚克力展示柜,以跳跃色彩活泼了空间,宛如一个个透明的梦幻泡泡,内里陈列的孩童手工艺品与珍藏陶艺在光线的折射下更显生动有趣。
空间不止于居住容器,更是情感与艺术的载体:卧室是柔软、轻盈、明亮的代名词,丝绸材质的床品以其细腻触感与光泽勾勒低调的奢华,香槟配色尽显柔与微妙。
建筑总共4层,垂直呼吸体系层层递进,皆循生活之韵律而设,四层空间依江景走向开凿全景落地窗,独享360°环幕式生态景观——推窗可见珠江天际线蜿蜒如练,侧耳可闻林间鸟鸣私语,晨昏光影流转间,绘就「离尘不离城」的诗意栖居范本。
入户极具仪式感的门厅,简约的白色基调,引领视线延伸至楼上,直至天际。大理石雕琢的旋转楼梯,引天光、水色、绿意倾泻入室,在光影中缓缓铺展,与璀璨夺目的水晶灯饰交相辉映共筑「光之序曲」。
优雅的拱形立柱犹如一曲温柔的诗篇,以柔和而富有诗意的空间语言,邀请人们放慢脚步,一旁静静伫立的白马雕塑,以其流畅的线条与矫健的姿态构建是力量与优雅的化身,与空间形成和谐对话,暗涌着居者对自由、高贵生活的不懈追求。
空间不止于居住容器,更是情感与艺术的载体:卧室是柔软、轻盈、明亮的代名词,丝绸材质的床品以其细腻触感与光泽勾勒低调的奢华,香槟配色尽显柔与微妙。
一处茶席,几张木椅,奢华,是每一次品茗时的悠然自得,每一页阅读中的灵魂共鸣;书房兼茶室的空间营造,引领身心远离尘世纷扰,沉浸宁静致远之境。
水bar区根据不同的生活场景融入智能灯光调控,编织出独一无二的空间情感体验放大生活仪式感,成为二人世界的浪漫小酌、朋友欢聚的理想之地。
浴室采用低奢大理石台面,简约的线条搭配若隐若现的花纹无形中增添一丝古典韵味,隐藏式LED灯带柔和地照亮每一寸空间,让每一次沐浴都成为一场关于美的仪式。
项目择址广州白云区生态腹地,踞守都市繁华与自然静谧的黄金交汇点。建筑群以纯白几何体块错落矗立于碧波湖畔,如一方悬浮于绿意之上的乌托邦结界,将喧嚣车马隔绝于外。
1层平面
2层平面
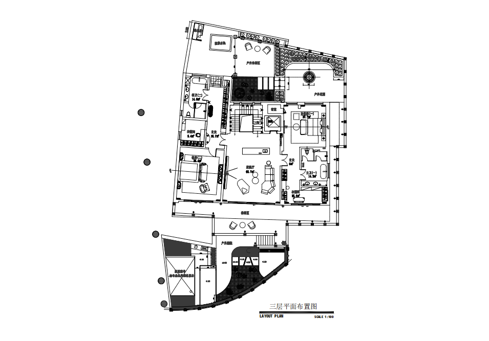
3层平面
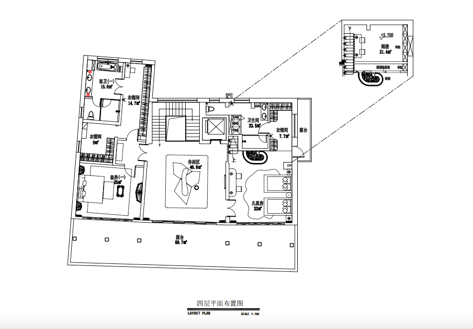
4层平面
0
0

认证 · 让您身份增值