海上繁花,东西绮梦
100
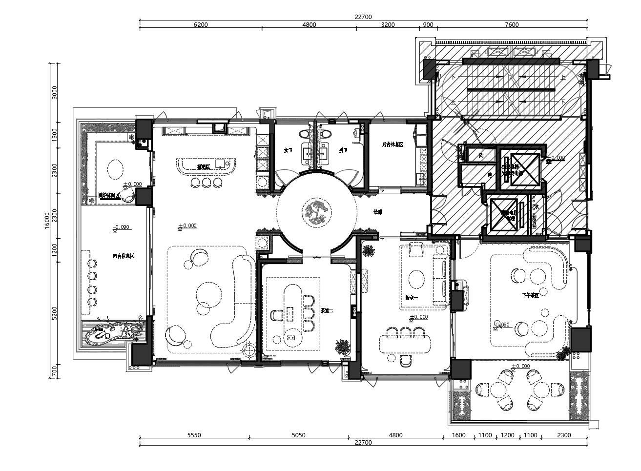
作品说明
- 项目类型:样板间/售楼处
- 项目地点:福州市
- 建筑面积:170.0000㎡
- 项目造价:500.0000万元
- 主案设计师: 林天信
- 参与设计师:林天信,王华磊,叶敏,黄波
- 竣工时间:2025.02.01
- 设计机构:壹新设计(深圳)有限公司
-
项目定位:本设计以“海派”精神为内核,巧妙融合东西方美学与时代印记
-
空间意境:空间通过法式对称廊柱、复古拼花地坪与东方青瓷花艺、水墨纹理所形成的材质与色彩碰撞,演绎一场东西交织的绮梦
-
空间布局:规划上注重情感连接,如围炉茶区与半开放花园客厅,将功能与美学结合,营造出可游可居、兼具国际视野与东方底蕴的沉浸式场景,令海派风情余韵无穷
-
设计选材:金箔天花、金属屏风与翡翠大理石茶台共筑雅奢氛围,在冷暖色调的平衡中,调和古典与现代
-
用户体验:充分体现了海派风格设计,融合了东西方美学并采用现代手法设计,给人以沉浸式体验
0
0

认证 · 让您身份增值