雅诗阁公寓式酒店
 
                                                            
                                         
                                    
                                                     517
 517                
                    作品说明
                
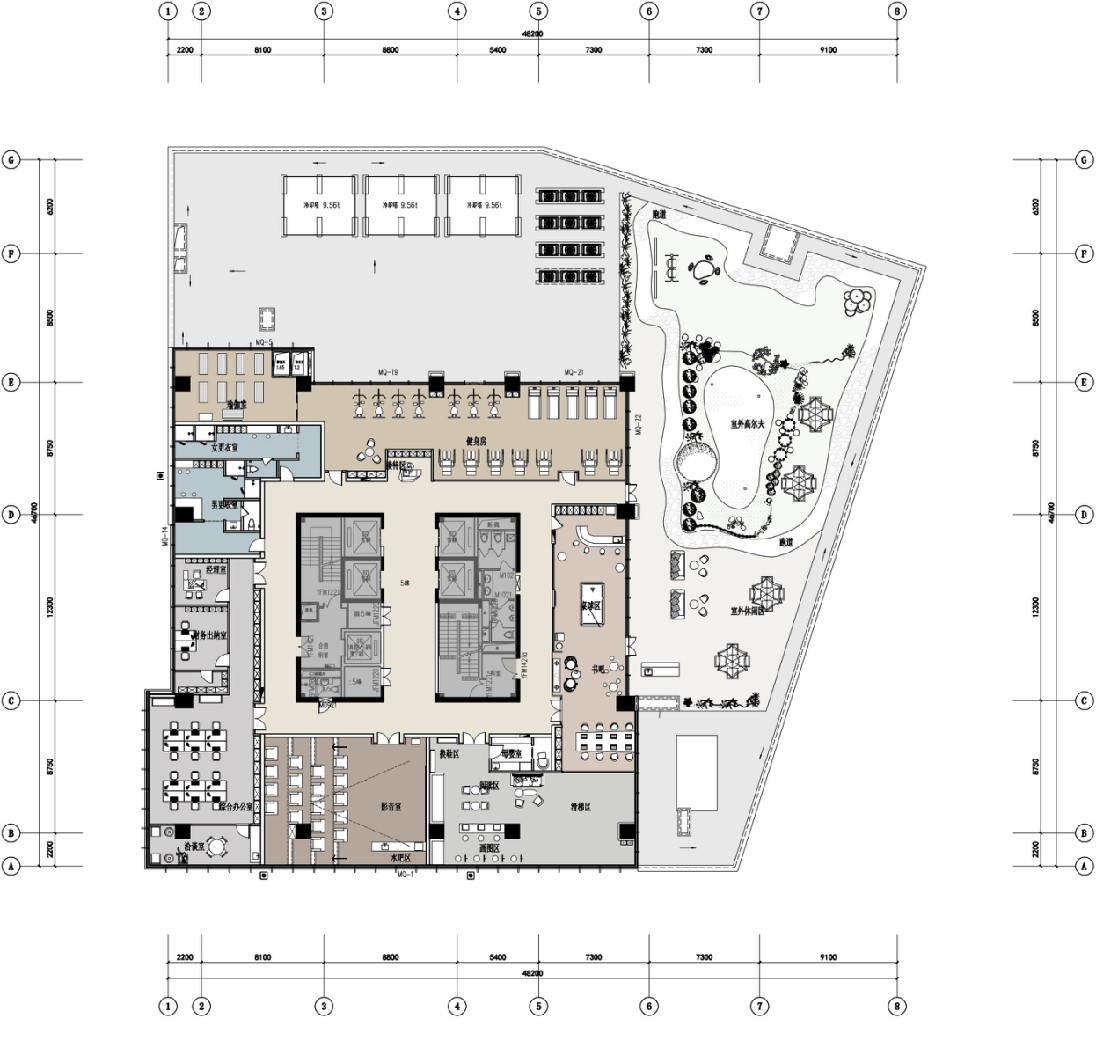
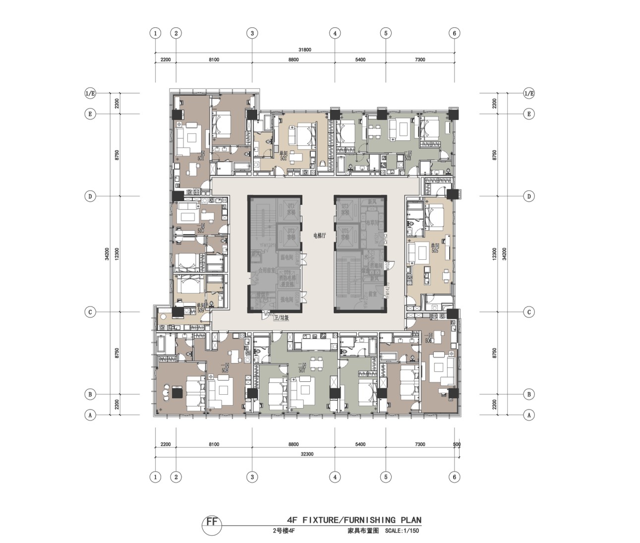
                - 项目类型:酒店
- 项目地点:无锡市
- 建筑面积:30000.0000㎡
- 项目造价:30000.0000万元
- 主案设计师: 韩小清
- 参与设计师:韩小清 陈将明 周云 吴磊
- 竣工时间:2020-09-17
- 
                            项目定位:【目标市场定位】:以差旅、休闲、度假为主的消费人群
 【文化观念定位】:现代风格
 【消费感受定位】:如家一般的舒适、个性化服务、专属私密、圈层社交
 【情感形象定位】:提供一个有生活品质生活故事的聚集地
 【项目形式定位】:“商旅途中,智慧之家”个性化的精致服务型酒店公寓
 【项目功能定位】: 尊贵/活力/时尚/温馨/和谐的放松环境氛围
- 
                            空间意境:
 酒店核心设计以“水”为脉络,此“水”引太湖之水,随着建筑空间的启、承、转、合,体现“水”时而奔放,时而含蓄之感。水本无形,但是在设计师的尽心打造下,水也成为了极具生命的活力跳动者。
 水的形态是千变万化的,她是一滴雨,一弯曲河岸,一片汪洋,一个点一条线,汇聚成一个面。
 她是如此地具有柔顺性、适应性、协作性。向我们传递着这样的视觉之美。如同没有形状的风穿过阳光轻抚眼睑与面颊,这一刻的沉醉教人无限回味。
 点动生线,线动生面,在大千世界里,这线永处于一种过渡之中。
 当它静卧于
- 
                            空间布局:设计以现代风格为主导思想。通过木材,天然石材的有机组合,将色彩、造型、体量、比例、风格与周围环境协调。利用围合和渗透的手法,以期达到室内外空间的连续流动,融为一体的最佳效果,创造出整体协调统一的具有地方特色的建筑形象。
 在设计上注重空间的铺排,用线与面的搭配,以简约传递奢华,流露出对自然对阳光的亲近以及快乐愉悦的人文风情。从“以人为本”为出发点,在整体设计方向以及处理细节方面处处是在就空间每一个使用者的出发点来考虑的,尽可能的为每个使用者能够提供便利,让人有个好的体验效果。
- 
                            设计选材:采用金属、天然石材、木、羊毛制品、布艺、
 自然元素的灵活运用,打造出自然和谐的空间,并透过不同材质、光影和优美弧线形态,辅以现代设计手法展现酒店的独特色彩。
 金属与木制品,金属与石材,金属与布艺皮革的搭配,更好的保证了产品的质量、工艺的精致,大量减少胶水的使用,油漆的使用,让空间更环保绿色,也减少了很多复杂的工艺,具有更好的经济性。
- 
                            用户体验:干净而不简陋,奢华而不奢侈,家一般的舒适,时尚而现代,温馨又和谐。
 0
                        0
                     0
                                0
                             
  
 
           
              
 
                  
 认证 · 让您身份增值
认证 · 让您身份增值 
                     
                     
                     
               请用微信扫码支付
请用微信扫码支付
             支付即同意并接受
支付即同意并接受 
         
         
       
         
       
         
       
       
     
     
                                 
                 
                     
                     
                     
         
                            
                         
                            
                         
         
         
    