道尼尔海翼飞机制造公司办公综合楼
 
                                             373
 373                
                    作品说明
                
                - 项目类型:办公
- 项目地点:宜兴市
- 建筑面积:7000.0000㎡
- 项目造价:1500.0000万元
- 主案设计师: 韩小清
- 竣工时间:2019-07-17
- 设计机构:中装建设 无锡设计院
- 
                            项目定位:本案为德国道尼尔海翼无锡有限公司,位于中国江苏省无锡市宜兴市丁蜀镇通用航空产业园区。
 在现代高科技公司,绿色、环保在室内设计、装饰过程中都显得尤为重要,再加上本案使用人员的特殊性,从设计之初,我们就充分考虑了高环保的装饰部品集成设计方案,体现绿色、环保。
 整个空间设计呈现的是现代,时尚,科技又不失安静舒适感。
- 
                            空间意境:整个办公楼楼设计以现代简约的设计理念演绎出精心构筑的高效空间。
 视觉焦点拓延出一条条长斜线,融入了延伸、循环的意念结构和视觉张力,
 拉伸了空间的尺度,构造出印象强烈却又极具平衡感的几何造型,精英商务的人文气质呼之跃出。
 阳光、空气还是视线都能够完全的得到满足白色原木色的主色调局部的黑色纯色渗透在空间的各个角落整洁而大气
 当冷静深沉的维多利亚蓝作为强调色出现在黑白灰空间,
 舒心、醒目之外还充满着优雅静谧气息。
 
- 
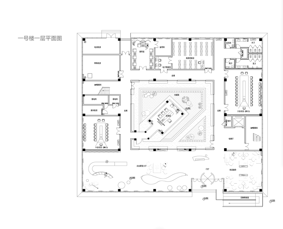
                            空间布局:企业展厅:简洁的材质配合蓝色灯光给人更多的神秘感。透过材质与光影之间的投射与折射,呈现一个科幻世界。该区域对称美和科技感并存,柔和的光线映衬出硬朗的造型及线条,空间立体感跃然眼前。
 电梯间:明暗对比和色彩平衡关系均趋于冷色调,以线条和切角的灯带根据空间功能需要
 坐电梯间好比在机舱里,好像高楼伴着白云朵朵
 办公区:开放式的公共办公区设计,既利于员工相互间无障碍的沟通交流,又给人明朗开阔的视觉感受。墙画世界地图,又像人的大脑,给空间带来几分灵性,好似突然有了思想,正思考着未来科技即将发生的变化。
 三号
- 
                            设计选材:材质与空间搭配得宜使用材料: 灰橡木饰面、木纹钢板板、深灰木纹钢板、铝板、磨砂玻璃、陶瓷薄板、乳胶漆、银灰色铝板、地砖、LED灯。
 墙面饰面采用PVC饰面钢板,在江南这个空气湿度比较大的地区,相比传统木饰面,具有防霉、防腐蚀,环保无污染、更轻安装快捷的特点。
 
- 
                            用户体验:门厅与企业展示:简洁的材质配合蓝色灯光给人更多的神秘感。透过材质与光影之间的投射与折射,呈现一个科幻世界。
 办公给人明朗开阔的视觉感受。墙画世界地图,又像人的大脑,给空间带来几分灵性,好似突然有了思想,正思考着未来科技即将发生的变化。。
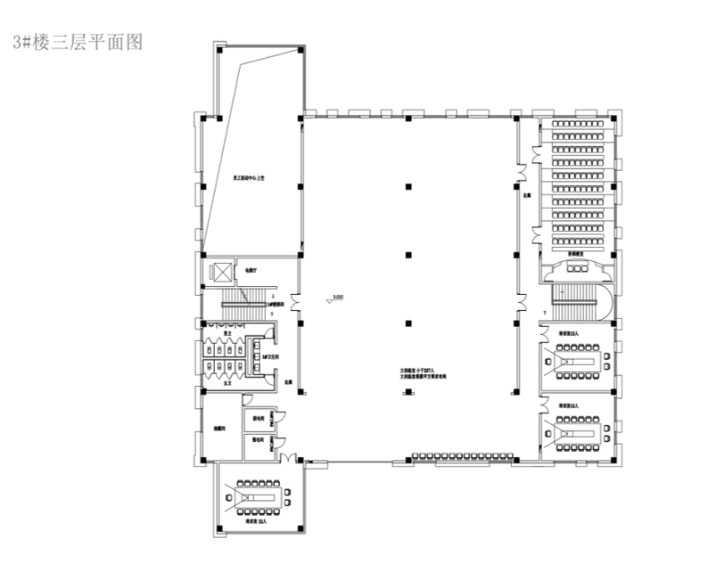
 三号楼餐厅:现代,时尚、艺术。灵活的就餐位,装置艺术,提升餐厅品位品位的同时也增加了就餐的乐趣。
 0
                        0
                     0
                                0
                             
  
 
           
              
 
                  
 认证 · 让您身份增值
认证 · 让您身份增值 
                     
                     
                     
               请用微信扫码支付
请用微信扫码支付
             支付即同意并接受
支付即同意并接受 
         
         
       
         
       
         
       
       
     
     
                 
                     
                     
                     
         
                            
                         
                            
                         
         
         
    