宅
87
作品说明
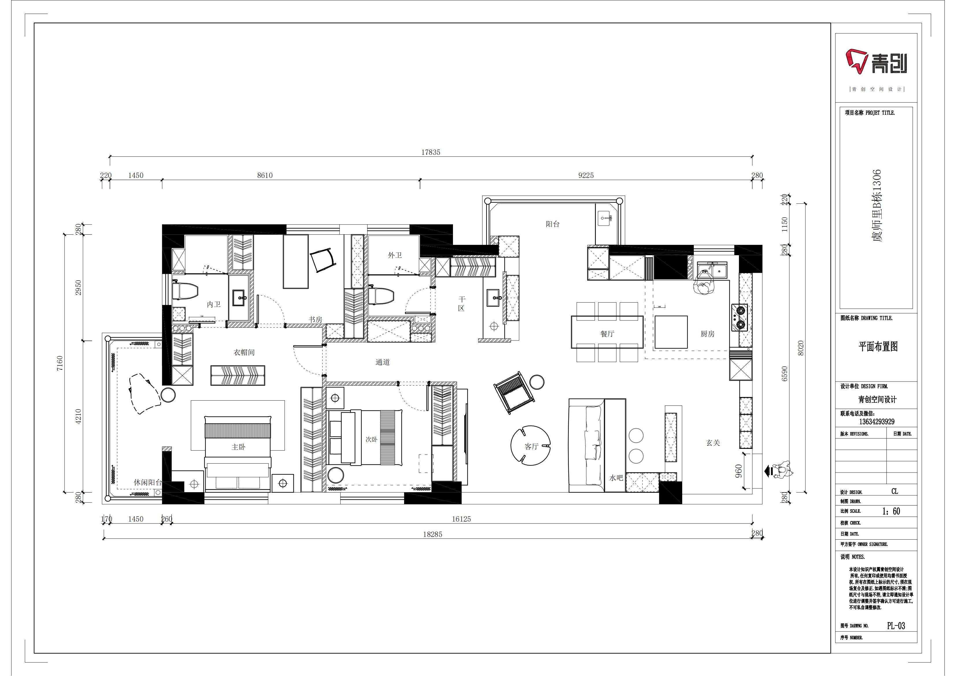
- 项目类型:住宅公寓
- 项目地点:温州市
- 建筑面积:140.0000㎡
- 项目造价:65.0000万元
- 主案设计师: 陈龙
- 竣工时间:2024.10
-
项目定位:以“少即是多”(Less is More)为核心,强调功能性与美学的平衡,通过简化元素、优化空间布局和精选材质,打造干净、舒适且高效的居住环境。
-
空间意境:设计注重去除冗余装饰,突出空间的纯粹性与实用性,满足现代人对品质生活的追求。
-
空间布局:简洁的室内设计并非空洞单调,而是通过精准的减法思维,将空间、功能与情感需求高度融合。
-
设计选材:其核心在于:用最少的元素表达最丰富的内涵,最终实现“人”与“空间”的和谐共生。
-
用户体验:对生活的审美,取决于业主自身出发,达到他的理想环境
0
0

认证 · 让您身份增值