-
项目定位:保持原有华侨新村建筑旧貌,以现代建筑材料,修旧如旧,打造一处安心之所。以最简洁而复古的设计手法,建筑与室内恰到好处的融合,朴实无华的材质运用,让室内焕发出当年的风采,令当下带来了对往昔的回忆。
-
空间意境:以现代建筑空间搭配室内禅意家具软装,给人带来静谧与安心!
-
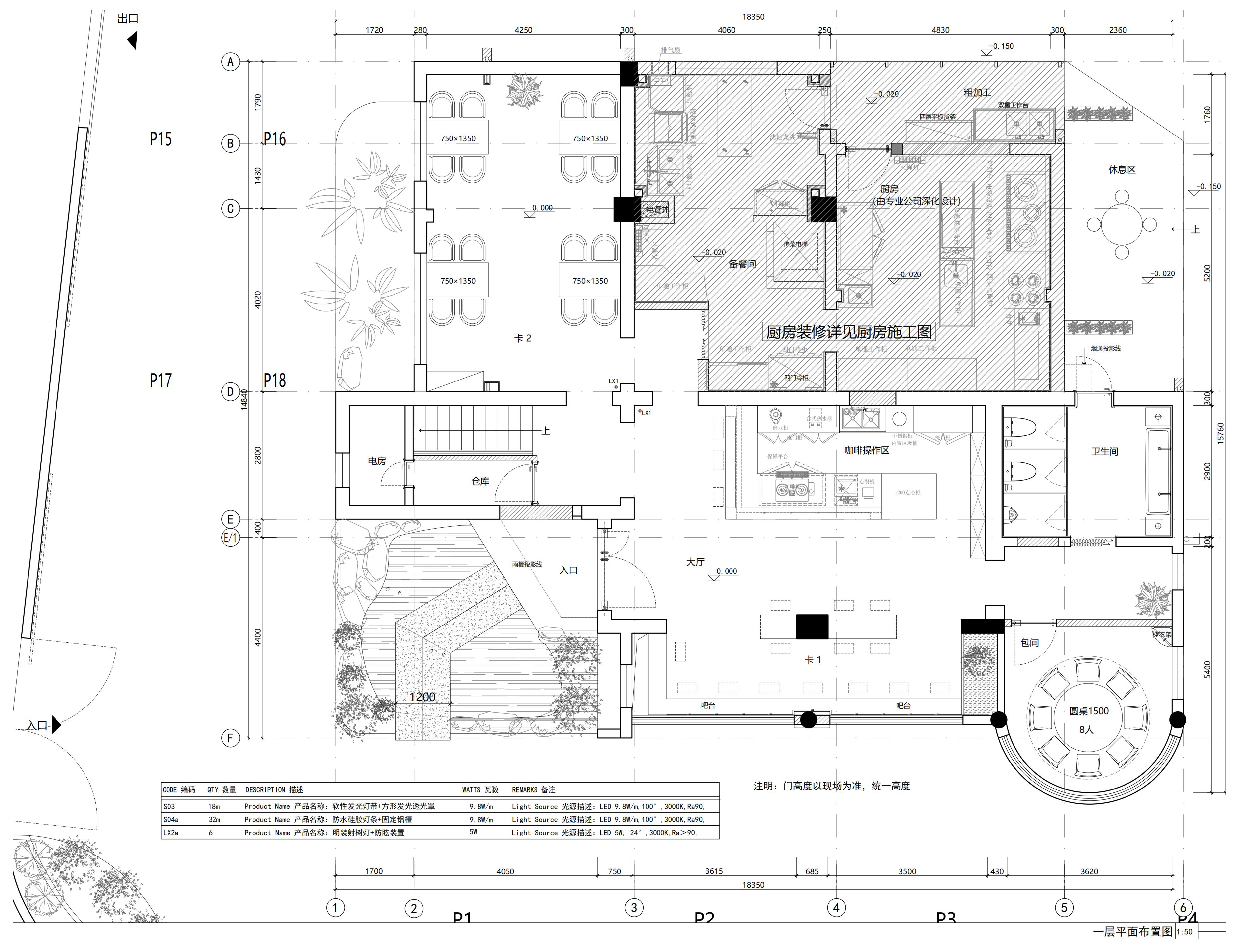
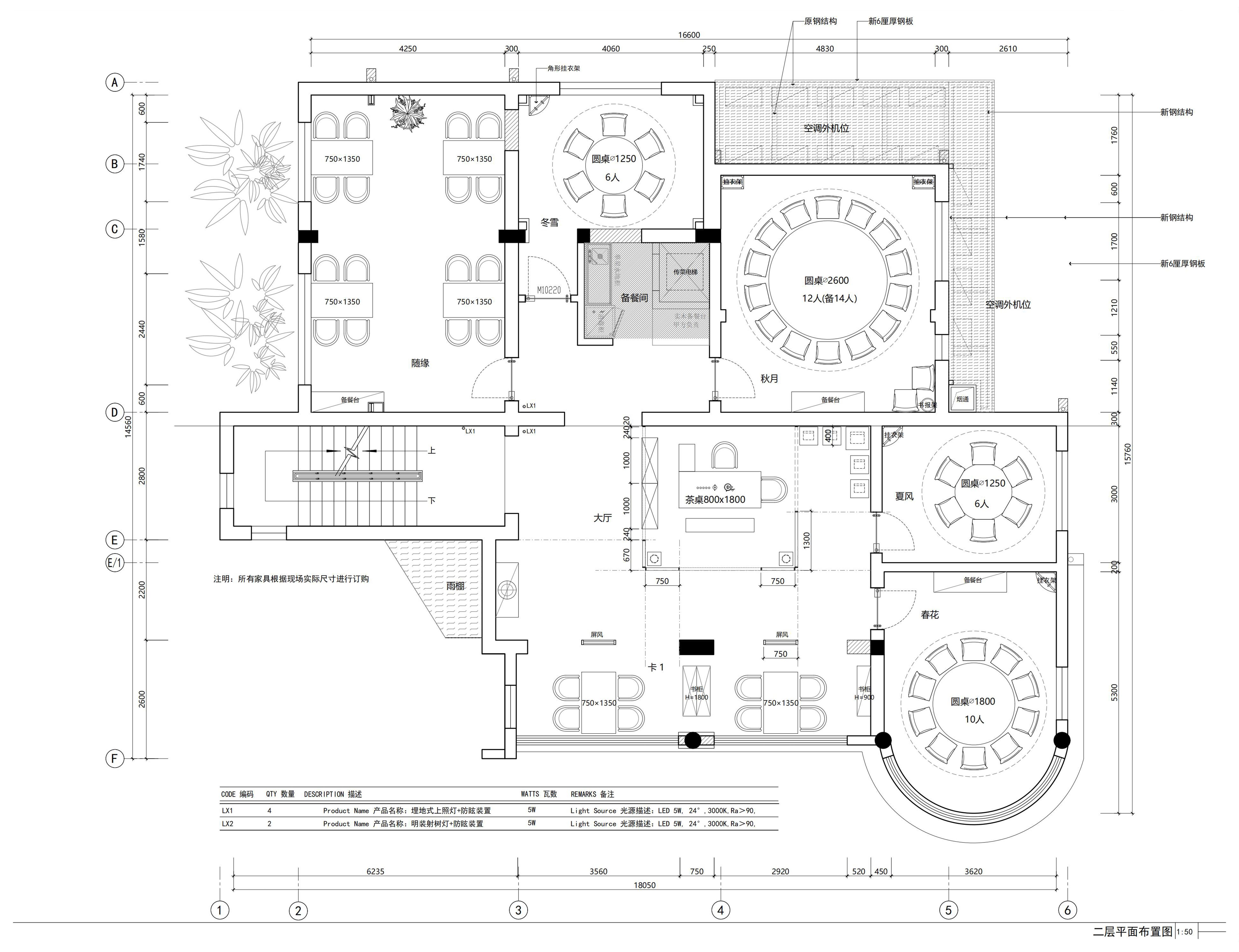
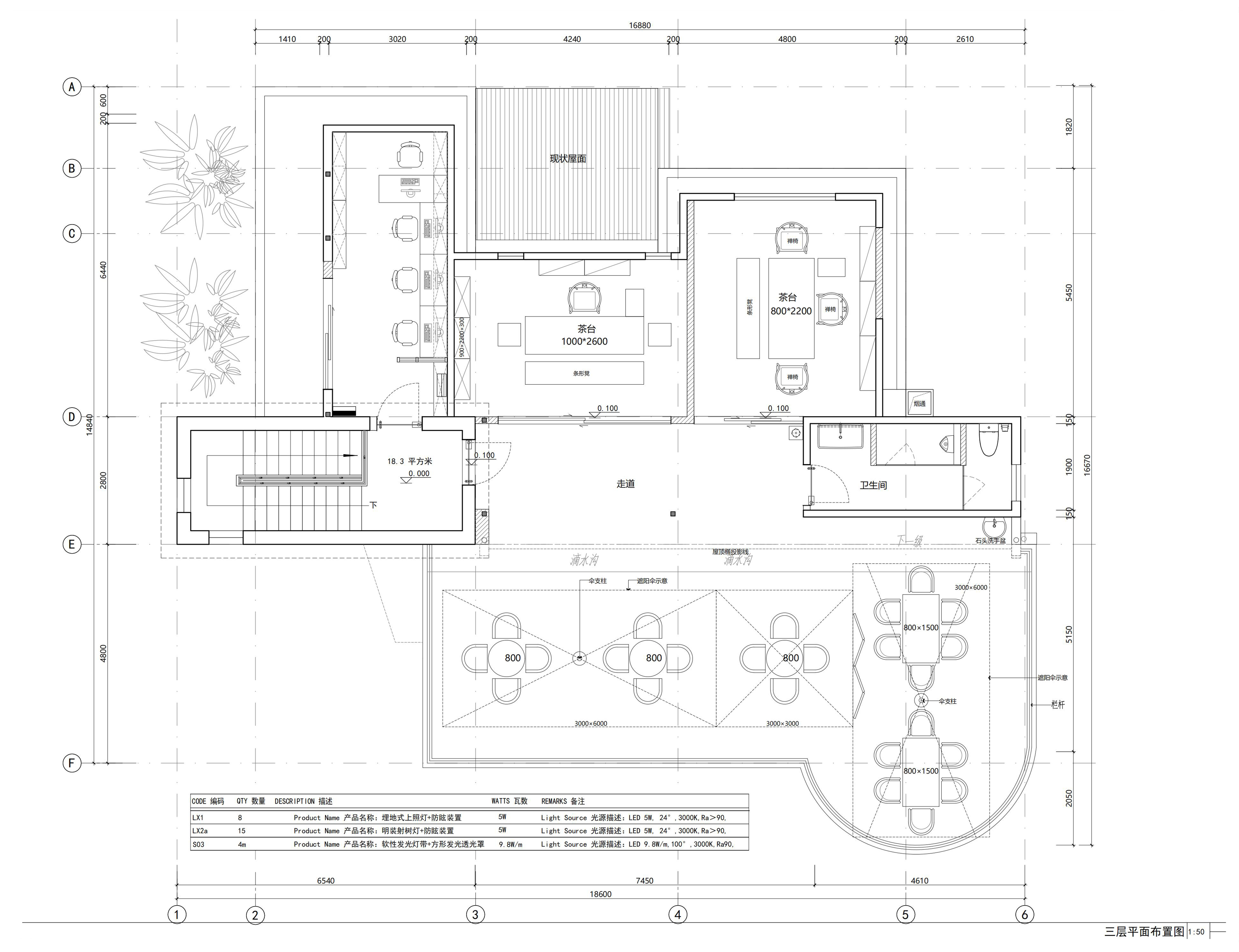
空间布局:该建筑是 60 年代的砖混结构,在可塑性受限的条件下,结合素食出品的流程及运营模式,让一楼咖啡厅成为引流区域,贯穿早市到收市,二楼是素食餐厅,让餐饮空间完全独立,有利于客人用餐和运营管理,三楼是天台咖啡,茶室和都市禅堂,提供给用餐前后客人的闲暇时间。
-
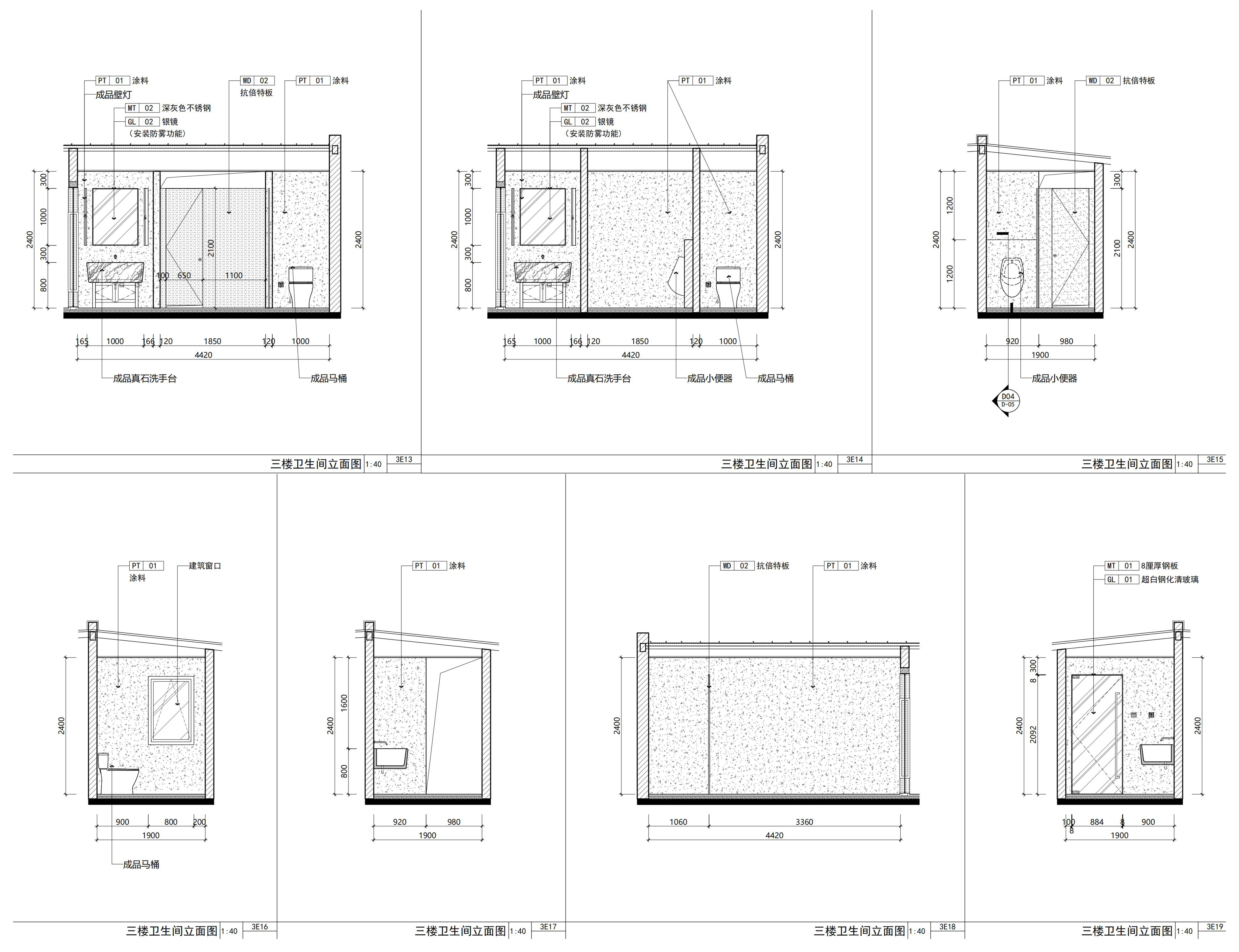
设计选材:墙面选用环保灰泥,彰显空间的素雅质朴。
地面素柚木实木地板+木蜡油,环保及耐用。
灯光全部采用 2700k 射灯,简约而提升灯光层次感,以灯光效果体现空间氛围。
黑色小方砖和老红砖,回归原有老建筑的材质,凸显年代感
-
用户体验:设计师为客人打造一个三心二意的素食空间(安心,放心,开心,有意义,有意思)

