自然松驰的家



- 项目类型:私宅
- 项目地点:丽水市
- 建筑面积:140.0000㎡
- 项目造价:80.0000万元
- 主案设计师: 谢立城
- 参与设计师:金梦
- 竣工时间:2024.09.26
- 设计机构:丽水市颠锋视界空间设计
-
项目定位:从自然中汲取灵感,将自然元素巧妙的融入家中...
-
空间意境:自由中古的混搭风格让空间既松驰又有独特的休闲品味
-
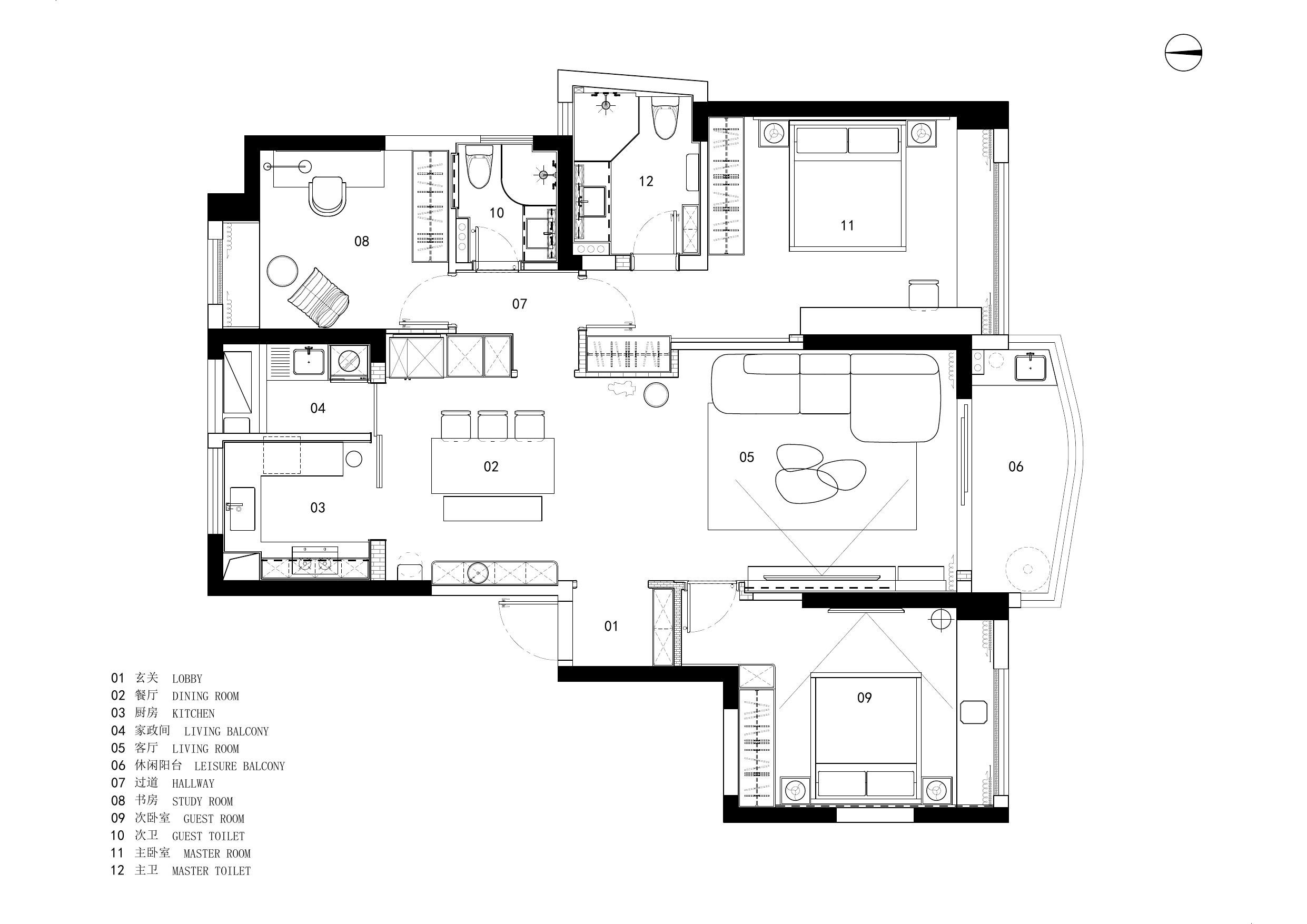
空间布局:空间强调开放性和流动性,打破客厅与餐厨界限,让居者自由地移动与呼吸。
-
设计选材:自然风化后的木材、天然的毛石,既节能环保又节约
-
用户体验:中古气质很有调性,客餐厅可以多功能使用,适当挪动也用品添加也不会显得很乱...
向自然探寻,生活之韵 向艺术求索,空间之灵 每一次归家,即是一场栖心旅程
从自然中汲取灵感,将自然元素巧妙的融入家居中,一抹翠绿的植物,一块未经雕琢的原石,都是自然的馈赠。让居者在家的场域里,感受到自然的韵律和节奏。
空间强调开放性和流动性,打破客厅与餐厨界限,让居者自由地移动与呼吸。大面积的落地推拉窗,让自然光线和微风形成对流,自然延伸至家中的每一个角落。
原木地板铺叙整个空间,其保留了木材最原始的纹理和色泽,仿佛触摸到大自然的脉搏,感受岁月的流转。这种共鸣,是对自然的赞美,也是对生活本真的追求。
原木地板铺叙整个空间,其保留了木材最原始的纹理和色泽,仿佛触摸到大自然的脉搏,感受岁月的流转。这种共鸣,是对自然的赞美,也是对生活本真的追求。
原木地板铺叙整个空间,其保留了木材最原始的纹理和色泽,仿佛触摸到大自然的脉搏,感受岁月的流转。这种共鸣,是对自然的赞美,也是对生活本真的追求。
不同形制不同质感相互融合,栅栏般的原木电视柜、绒面的沙发、麻制的地毯、木质小凳与粗粝的陶罐就像在讲述一个关于自然的故事,这个故事温暖而真实,让我们在快节奏的生活中,依然能够保持与自然的联系。
不同形制不同质感相互融合,栅栏般的原木电视柜、绒面的沙发、麻制的地毯、木质小凳与粗粝的陶罐就像在讲述一个关于自然的故事,这个故事温暖而真实,让我们在快节奏的生活中,依然能够保持与自然的联系。
不同形制不同质感相互融合,栅栏般的原木电视柜、绒面的沙发、麻制的地毯、木质小凳与粗粝的陶罐就像在讲述一个关于自然的故事,这个故事温暖而真实,让我们在快节奏的生活中,依然能够保持与自然的联系。
从客厅往次卧
从餐厅往卧室
不同形制不同质感相互融合,栅栏般的原木电视柜、绒面的沙发、麻制的地毯、木质小凳与粗粝的陶罐就像在讲述一个关于自然的故事,这个故事温暖而真实,让我们在快节奏的生活中,依然能够保持与自然的联系。
一张精心打造的原木餐桌,成为餐厅的主角。每一块木板都诉说着树木生长的故事,每一次触摸都能感受到大自然的气息,搭配皮质餐椅雅致兼顾。水波纹推拉门巧妙分隔空间,阳光透过,形成斑驳的光影,感受空间延展。
一张精心打造的原木餐桌,成为餐厅的主角。每一块木板都诉说着树木生长的故事,每一次触摸都能感受到大自然的气息,搭配皮质餐椅雅致兼顾。水波纹推拉门巧妙分隔空间,阳光透过,形成斑驳的光影,感受空间延展。
从门厅往卧室
过道
玄关
过道空间
从玄关往客厅
向自然探寻,生活之韵 向艺术求索,空间之灵 每一次归家,即是一场栖心旅程
从餐厅往厨房
次卧则多了些许禅意,设置了一个小型的茶区。纱帘柔和地过滤阳光,静下心来泡一壶好茶,茶香飘逸在小天地间,品味茶的甘甜,感受生活的宁静。棉麻的床品、木质的装饰品,带来一种回归自然的本真感受。
次卧则多了些许禅意,设置了一个小型的茶区。纱帘柔和地过滤阳光,静下心来泡一壶好茶,茶香飘逸在小天地间,品味茶的甘甜,感受生活的宁静。棉麻的床品、木质的装饰品,带来一种回归自然的本真感受。
次卧则多了些许禅意,设置了一个小型的茶区。纱帘柔和地过滤阳光,静下心来泡一壶好茶,茶香飘逸在小天地间,品味茶的甘甜,感受生活的宁静。棉麻的床品、木质的装饰品,带来一种回归自然的本真感受。
次卧则多了些许禅意,设置了一个小型的茶区。纱帘柔和地过滤阳光,静下心来泡一壶好茶,茶香飘逸在小天地间,品味茶的甘甜,感受生活的宁静。棉麻的床品、木质的装饰品,带来一种回归自然的本真感受。
主卧空间,选择了温暖的大地色系,米白、浅棕...营造出宁静的氛围,增强空间温馨感。围合式大玻璃窗引光入室,将卧室映照的通透明亮,清晨的第一缕阳光透过纱帘,轻抚每一寸空间:地板、床品、桌上的油画,轻轻地唤醒沉睡的梦想。
主卧空间,选择了温暖的大地色系,米白、浅棕...营造出宁静的氛围,增强空间温馨感。围合式大玻璃窗引光入室,将卧室映照的通透明亮,清晨的第一缕阳光透过纱帘,轻抚每一寸空间:地板、床品、桌上的油画,轻轻地唤醒沉睡的梦想。
主卧空间,选择了温暖的大地色系,米白、浅棕...营造出宁静的氛围,增强空间温馨感。围合式大玻璃窗引光入室,将卧室映照的通透明亮,清晨的第一缕阳光透过纱帘,轻抚每一寸空间:地板、床品、桌上的油画,轻轻地唤醒沉睡的梦想。
书房中每一个细节都体现了居者对文艺生活的热爱。丰富的色彩、抽象的色块,油画为空间注入焦点。精选的手工编织地毯为冷硬的地板带来柔和的质感,一盏温暖的灯光照亮居者的内心世界。
书房中每一个细节都体现了居者对文艺生活的热爱。丰富的色彩、抽象的色块,油画为空间注入焦点。精选的手工编织地毯为冷硬的地板带来柔和的质感,一盏温暖的灯光照亮居者的内心世界。
书房中每一个细节都体现了居者对文艺生活的热爱。丰富的色彩、抽象的色块,油画为空间注入焦点。精选的手工编织地毯为冷硬的地板带来柔和的质感,一盏温暖的灯光照亮居者的内心世界。
书房中每一个细节都体现了居者对文艺生活的热爱。丰富的色彩、抽象的色块,油画为空间注入焦点。精选的手工编织地毯为冷硬的地板带来柔和的质感,一盏温暖的灯光照亮居者的内心世界。
向自然探寻,生活之韵 向艺术求索,空间之灵
每一次归家,即是一场栖心旅程
家居规划强调开放性和流动性,打破客厅与餐厨界限,让居者自由地移动与呼吸。大面积的落地推拉窗,让自然光线和微风形成对流,自然延伸至家中的每一个角落。

