自然之镜


- 项目类型:住宅公寓
- 项目地点:丽水市
- 建筑面积:230.0000㎡
- 项目造价:120.0000万元
- 主案设计师: 谢立城
- 参与设计师:金梦
- 竣工时间:2024.10
- 设计机构:丽水市颠锋视界空间设计
-
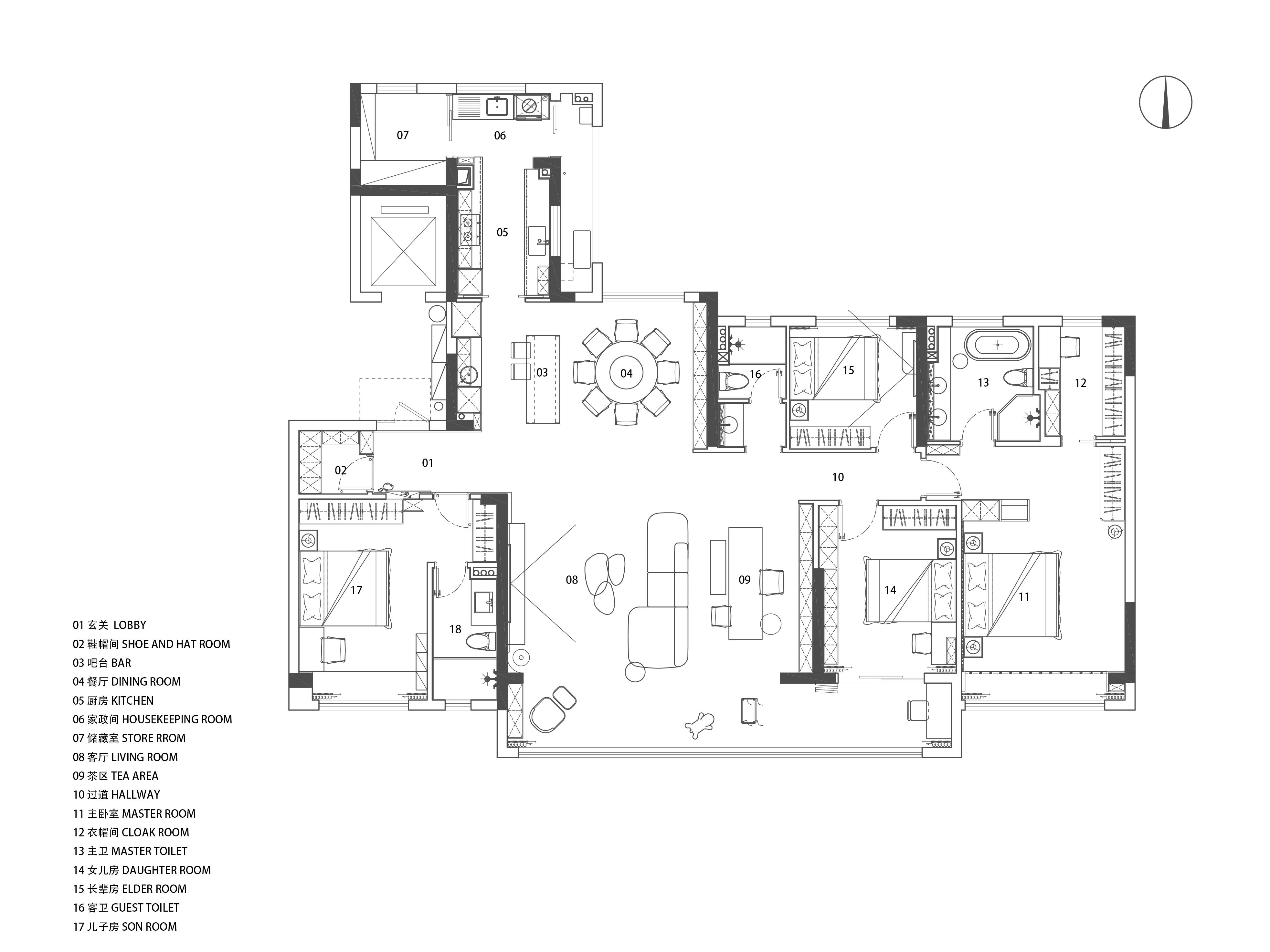
项目定位:以项目独有的10米长廊为中心,融合大落地窗与窗外美景,实现空间之美与功能需求的完美融合。既强化了无敌窗景,又模糊了室内外关系,让空间得以极大的舒展、延伸……
-
空间意境:中性色调的简约风,令空间温婉亦不失稳重;局部空间的深色规划增加空间的层次与体验
-
空间布局:整理优化好10米长廊,将阳台空间纳入客厅,光与气在此得到更好的流转,与自然的触碰如一首颂歌,礼赞生命中的美妙时光。同时增加了亲子活动区,小朋友拥有足够的空间休息玩耍看书。长者沐浴在阳光下,或闲聊或逗趣,促进不同代际之间的互动,感受家的温暖。
-
设计选材:采用开放透气的肌理漆面材料与木材,让空间自呼吸,亦节约
-
用户体验:家人在客厅可以多场景使用,很舒服;一家人其乐融融,很宜居……
10米长廊的设计,将阳台空间纳入客厅,光与气在此得到更好的流转,与自然的触碰如一首颂歌,礼赞生命中的美妙时光。同时增加了亲子活动区,小朋友拥有足够的空间休息玩耍看书。长者沐浴在阳光下,或闲聊或逗趣,促进不同代际之间的互动,感受家的温暖。
10米长廊的设计,将阳台空间纳入客厅,光与气在此得到更好的流转,与自然的触碰如一首颂歌,礼赞生命中的美妙时光。同时增加了亲子活动区,小朋友拥有足够的空间休息玩耍看书。长者沐浴在阳光下,或闲聊或逗趣,促进不同代际之间的互动,感受家的温暖。
10米长廊的设计,将阳台空间纳入客厅,光与气在此得到更好的流转,与自然的触碰如一首颂歌,礼赞生命中的美妙时光。同时增加了亲子活动区,小朋友拥有足够的空间休息玩耍看书。长者沐浴在阳光下,或闲聊或逗趣,促进不同代际之间的互动,感受家的温暖。
10米长廊的设计,将阳台空间纳入客厅,光与气在此得到更好的流转,与自然的触碰如一首颂歌,礼赞生命中的美妙时光。同时增加了亲子活动区,小朋友拥有足够的空间休息玩耍看书。长者沐浴在阳光下,或闲聊或逗趣,促进不同代际之间的互动,感受家的温暖。
10米长廊的设计,将阳台空间纳入客厅,光与气在此得到更好的流转,与自然的触碰如一首颂歌,礼赞生命中的美妙时光。同时增加了亲子活动区,小朋友拥有足够的空间休息玩耍看书。长者沐浴在阳光下,或闲聊或逗趣,促进不同代际之间的互动,感受家的温暖。
10米长廊的设计,将阳台空间纳入客厅,光与气在此得到更好的流转,与自然的触碰如一首颂歌,礼赞生命中的美妙时光。同时增加了亲子活动区,小朋友拥有足够的空间休息玩耍看书。长者沐浴在阳光下,或闲聊或逗趣,促进不同代际之间的互动,感受家的温暖。
10米长廊的设计,将阳台空间纳入客厅,光与气在此得到更好的流转,与自然的触碰如一首颂歌,礼赞生命中的美妙时光。同时增加了亲子活动区,小朋友拥有足够的空间休息玩耍看书。长者沐浴在阳光下,或闲聊或逗趣,促进不同代际之间的互动,感受家的温暖。
10米长廊的设计,将阳台空间纳入客厅,光与气在此得到更好的流转,与自然的触碰如一首颂歌,礼赞生命中的美妙时光。同时增加了亲子活动区,小朋友拥有足够的空间休息玩耍看书。长者沐浴在阳光下,或闲聊或逗趣,促进不同代际之间的互动,感受家的温暖。
10米长廊的设计,将阳台空间纳入客厅,光与气在此得到更好的流转,与自然的触碰如一首颂歌,礼赞生命中的美妙时光。同时增加了亲子活动区,小朋友拥有足够的空间休息玩耍看书。长者沐浴在阳光下,或闲聊或逗趣,促进不同代际之间的互动,感受家的温暖。
10米长廊的设计,将阳台空间纳入客厅,光与气在此得到更好的流转,与自然的触碰如一首颂歌,礼赞生命中的美妙时光。同时增加了亲子活动区,小朋友拥有足够的空间休息玩耍看书。长者沐浴在阳光下,或闲聊或逗趣,促进不同代际之间的互动,感受家的温暖。
茶区不仅是品茗的场所,更是家的温暖延伸。质感温润的实木茶桌与各个形制的典雅茶椅组合搭配,闲适的午后,茶香氤氲,时光仿佛也慢了下来,体验一段宁静而美好的时光。
让艺术成为生活的载体,融合大落地窗与窗外美景,实现空间之美与功能需求的无缝融合。既强化了无敌窗景,又模糊了室内外关系,让空间得以极大的舒展、延伸……暖灰色皮质沙发与不规则黑色茶几相结合的组合方式,异形的边几搭配,立式台灯,网织单椅...多重角度思考并塑造动态表现形式,实现空间的一致性魅力,满足不同功能和情感需求。
让艺术成为生活的载体,融合大落地窗与窗外美景,实现空间之美与功能需求的无缝融合。既强化了无敌窗景,又模糊了室内外关系,让空间得以极大的舒展、延伸……暖灰色皮质沙发与不规则黑色茶几相结合的组合方式,异形的边几搭配,立式台灯,网织单椅...多重角度思考并塑造动态表现形式,实现空间的一致性魅力,满足不同功能和情感需求。
让艺术成为生活的载体,融合大落地窗与窗外美景,实现空间之美与功能需求的无缝融合。既强化了无敌窗景,又模糊了室内外关系,让空间得以极大的舒展、延伸……暖灰色皮质沙发与不规则黑色茶几相结合的组合方式,异形的边几搭配,立式台灯,网织单椅...多重角度思考并塑造动态表现形式,实现空间的一致性魅力,满足不同功能和情感需求。
向自然探寻,生活之韵 向艺术求索,空间之灵 每一次归家,即是一场栖心旅程
百叶窗光影婆娑,暖黄的灯光映照下的餐区传递出温暖而醇厚的就餐氛围,大理石材的桌面与现代皮质餐椅章法有致的搭配让餐厅别有韵味。 沉稳克制的磨砂黑岛台透出大气的清冷感,搭配绿植让柴米油盐的琐碎转变成一种生活艺术。
百叶窗光影婆娑,暖黄的灯光映照下的餐区传递出温暖而醇厚的就餐氛围,大理石材的桌面与现代皮质餐椅章法有致的搭配让餐厅别有韵味。 沉稳克制的磨砂黑岛台透出大气的清冷感,搭配绿植让柴米油盐的琐碎转变成一种生活艺术。
西厨
百叶窗光影婆娑,暖黄的灯光映照下的餐区传递出温暖而醇厚的就餐氛围,大理石材的桌面与现代皮质餐椅章法有致的搭配让餐厅别有韵味。 沉稳克制的磨砂黑岛台透出大气的清冷感,搭配绿植让柴米油盐的琐碎转变成一种生活艺术。
百叶窗光影婆娑,暖黄的灯光映照下的餐区传递出温暖而醇厚的就餐氛围,大理石材的桌面与现代皮质餐椅章法有致的搭配让餐厅别有韵味。 沉稳克制的磨砂黑岛台透出大气的清冷感,搭配绿植让柴米油盐的琐碎转变成一种生活艺术。
次卫
次卧空间以暖灰色调为主基调,整个空间安静又有质感,简单的装饰画点缀丰富了整个空间的层次感。
次卧空间以暖灰色调为主基调,整个空间安静又有质感,简单的装饰画点缀丰富了整个空间的层次感。
次卧空间以暖灰色调为主基调,整个空间安静又有质感,简单的装饰画点缀丰富了整个空间的层次感。
主卧以暖色调沉淀了家居的考究气质,温润的原木铺叙,浅色的地毯,稳重的装饰品,其独特的组合方式体现空灵的流动意象,润物无声,让每一次呼吸都充满自然的气息。黑色调的卫浴空间在烛光的影映下,盈满了轻松的气息,卸下一身疲惫,时光在此静止……
主卫
主卧以暖色调沉淀了家居的考究气质,温润的原木铺叙,浅色的地毯,稳重的装饰品,其独特的组合方式体现空灵的流动意象,润物无声,让每一次呼吸都充满自然的气息。黑色调的卫浴空间在烛光的影映下,盈满了轻松的气息,卸下一身疲惫,时光在此静止……
主卫
主卫
主卧以暖色调沉淀了家居的考究气质,温润的原木铺叙,浅色的地毯,稳重的装饰品,其独特的组合方式体现空灵的流动意象,润物无声,让每一次呼吸都充满自然的气息。黑色调的卫浴空间在烛光的影映下,盈满了轻松的气息,卸下一身疲惫,时光在此静止……
主卧以暖色调沉淀了家居的考究气质,温润的原木铺叙,浅色的地毯,稳重的装饰品,其独特的组合方式体现空灵的流动意象,润物无声,让每一次呼吸都充满自然的气息。黑色调的卫浴空间在烛光的影映下,盈满了轻松的气息,卸下一身疲惫,时光在此静止……
向自然探寻,生活之韵 向艺术求索,空间之灵 每一次归家,即是一场栖心旅程
10米长廊的设计,将阳台空间纳入客厅,光与气在此得到更好的流转,与自然的触碰如一首颂歌,礼赞生命中的美妙时光。同时增加了亲子活动区,小朋友拥有足够的空间休息玩耍看书。沐浴在阳光下,或闲聊或逗趣,促进不同代际之间的互动,感受家的温暖。

