橙色的城
201
作品说明
- 项目类型:办公
- 项目地点:北京市
- 建筑面积:800.0000㎡
- 项目造价:200.0000万元
- 主案设计师: 黄凯
- 参与设计师:黄凯
- 竣工时间:2024.04
- 设计机构:风亚空间(北京)陈设艺术设计有限公司
-
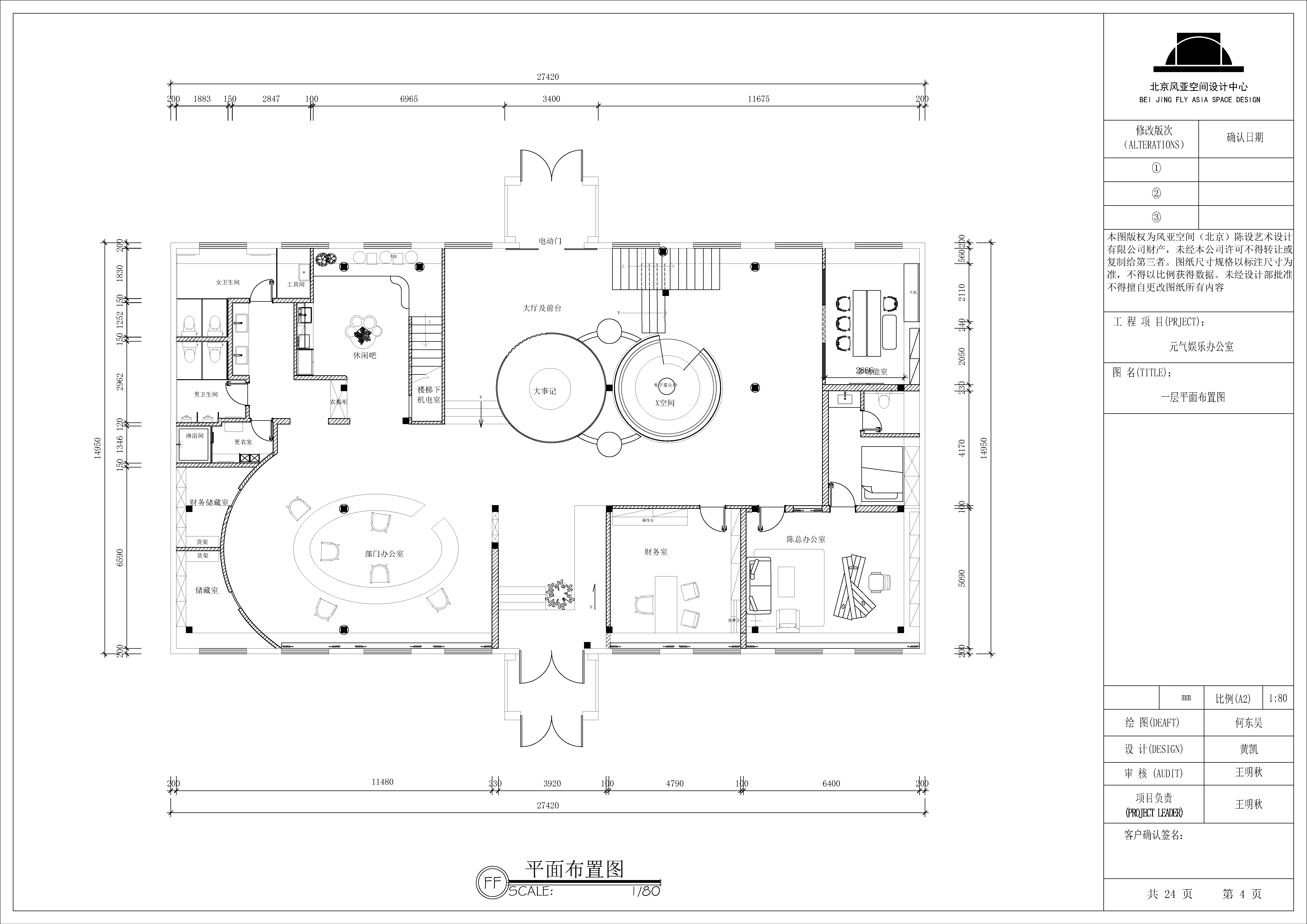
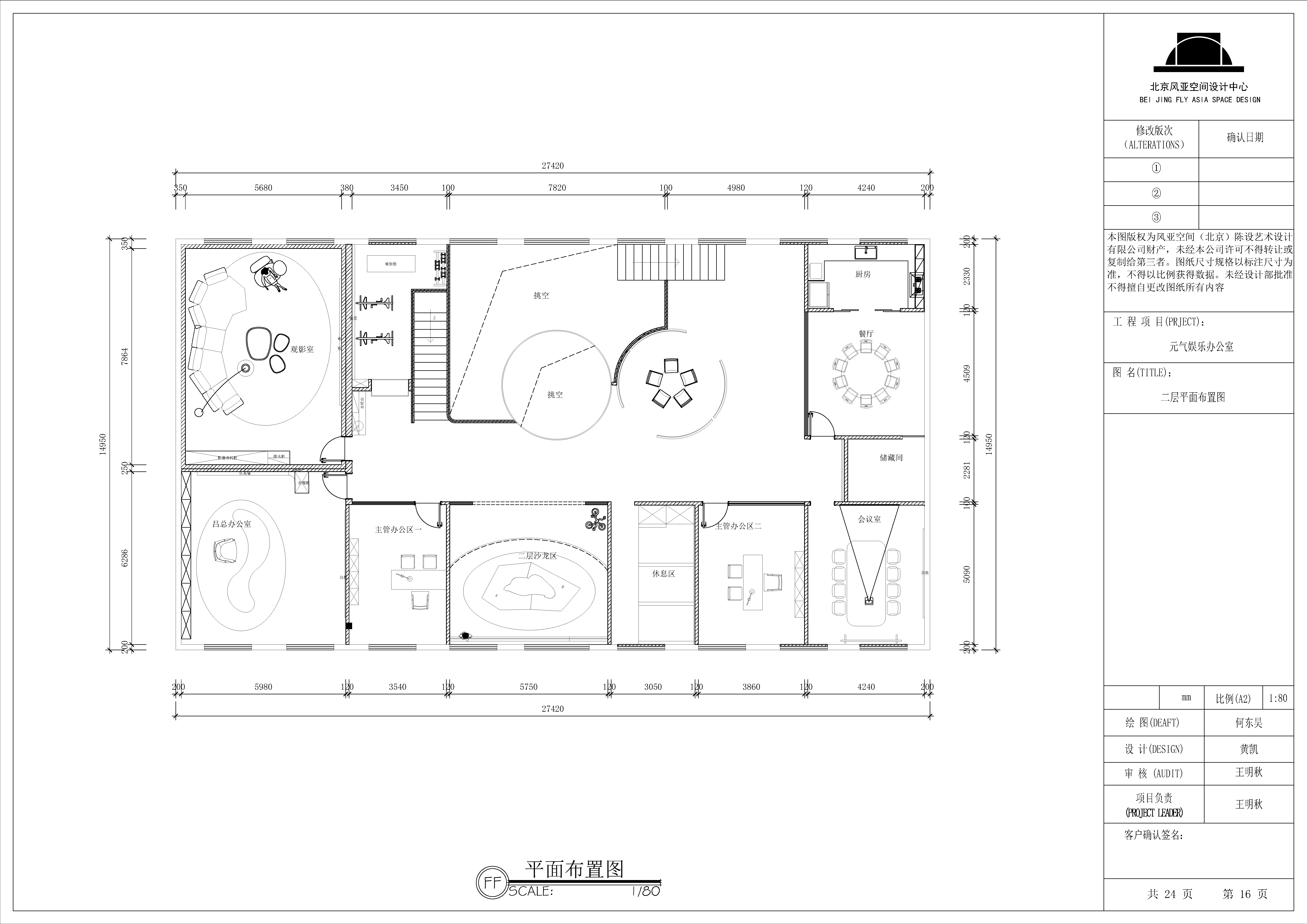
项目定位:本项目是一个在老厂房里的翻新改造的办公室项目。原本两个独立的公司打通变成一个公司,空间功能做了重新的梳理。由于老厂房的层高限制,在有限的层高范围内,借用园林的造景设计手法,巧妙地将空间划分为高低不同的四个平面高度。从公司LOGO中提取Q造型,利用错层的视觉差,把空间打造成为一个梦境场。一层主要通过玻璃穿透、折射、扩充自然光线在空间的流动;二层则通过顶面的不同造型灯带和造型灯膜来最大程度的引导、制造和放大室内光的路径,从而解决二层层高低的问题。
-
空间意境:1、提取元气娱乐的Y和Q作为整个空间的构成要素,在不同的空间不同的视角不同的材质来演绎;
2、打破固有的办公室只是办公的地方,而是一个自由有活力有有疗愈功能的城,有咖啡厅有太空舱有观影室有健身房有美术馆有餐厅有打卡拍照区,可以撸猫可以养花植;
3、由于老厂房的层高和顶面造型的限制,把一层和夹层分别做了四个平面高度来让空间有意思 -
空间布局:这是一个影视开发投资公司,公司的主体人员都是90后,而且人员数量很少。结合他们的工作习惯和工作属性,设计构思的第一步就是希望把空间打造成为一个独属于年轻族群的多元空间。除了传统的开场办公区/会议室/洗手间/财务办公室/领导办公室外,着重设计了展览馆/猫的咖啡屋/影音室/下沉式花园茶吧/冰川解压点/健身房/太空舱休眠间等复合型空间,同时每个空间都可以作为临时办公区。
-
设计选材:在空间的材质和色彩上都是采用减法,来最大程度的还原空间的尺度和自由。从墙面的白色肌理漆到亚克力到玻璃到家具的白色烤漆和橘色烤漆,都是以干净纯粹为标准的选择。色彩的规划就是橘色跳进了白色的梦境中,通过通高又穿透的玻璃和层高错位来完成一场橘色梦境乐园的仪式。
-
用户体验:1,总经理原本只是来偶尔办公,看到第一版设计方案后就扩大了自己的办公室面积同时增加独立的休息室和卫生间,变成办公室常客出勤率提高;
2、员工在办公室可以撸猫养花做咖啡,大家都很开心
0
0

认证 · 让您身份增值