-
项目定位:以木工坊为主体,附属饮品、书吧、讲座活动、心理咨询等使用功能。
-
空间意境:木方的元素穿插与整个空间,成为木工坊的超级符号。
-
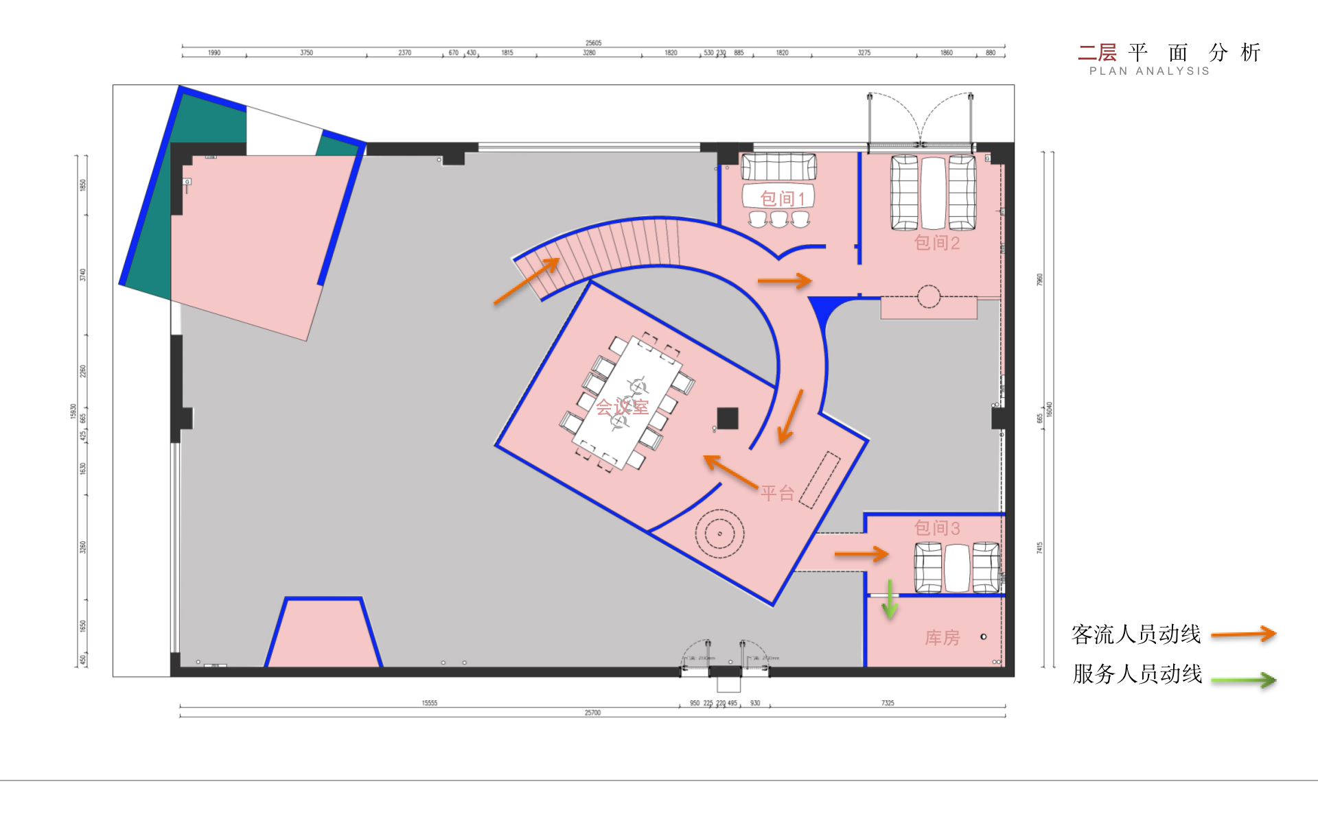
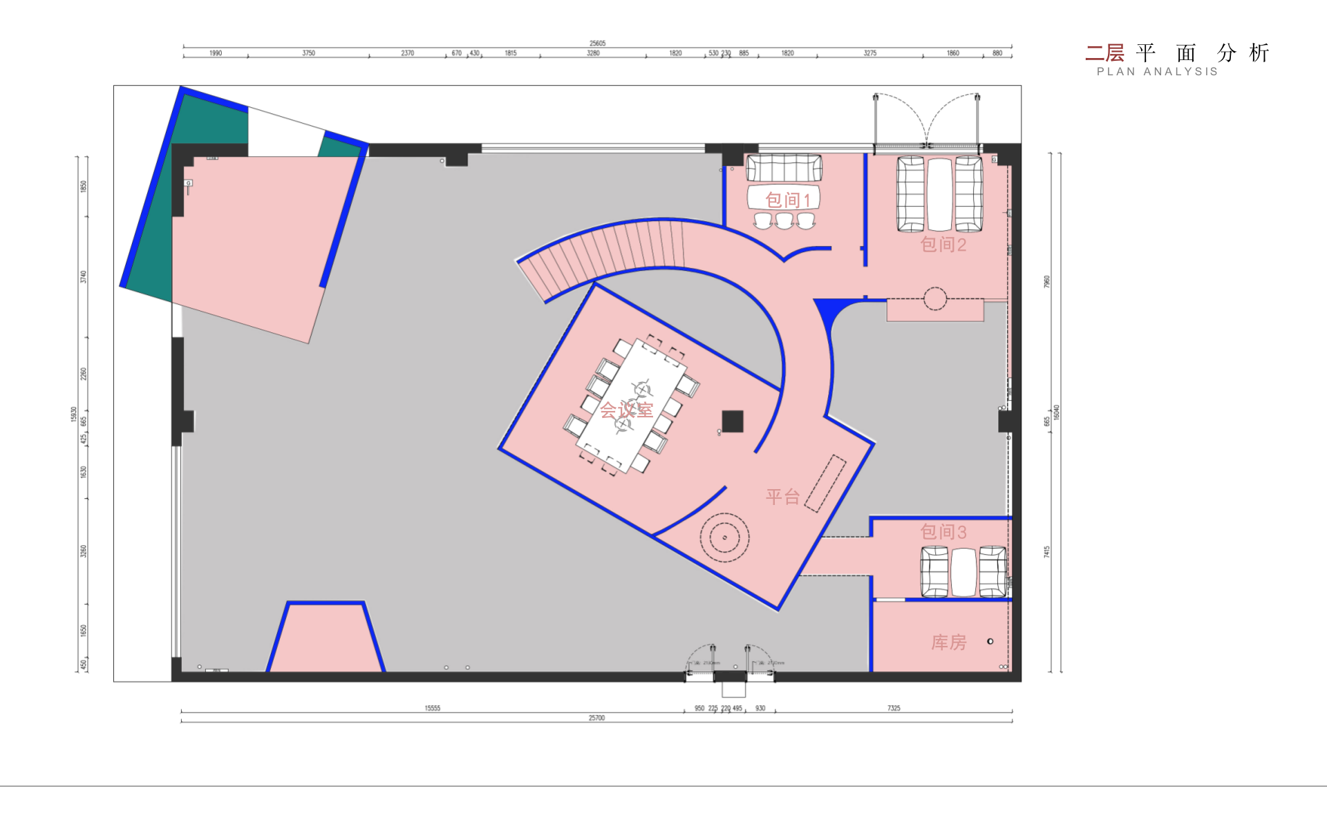
空间布局:利用挑高优势,通过搭建钢结构构建富有张力的空间感。椭圆象征沙漠的广袤无际,方块象征着绿洲和文明。由简单的几何发散出文化与山河的共荣。
-
设计选材:具有独特的设计特点。从空间上引人入胜。节约项目经费。
-
用户体验:成为当地的著名打卡网红店面,为探索空间体验引流不少客源

