集藏山海,圆融古典


作品说明
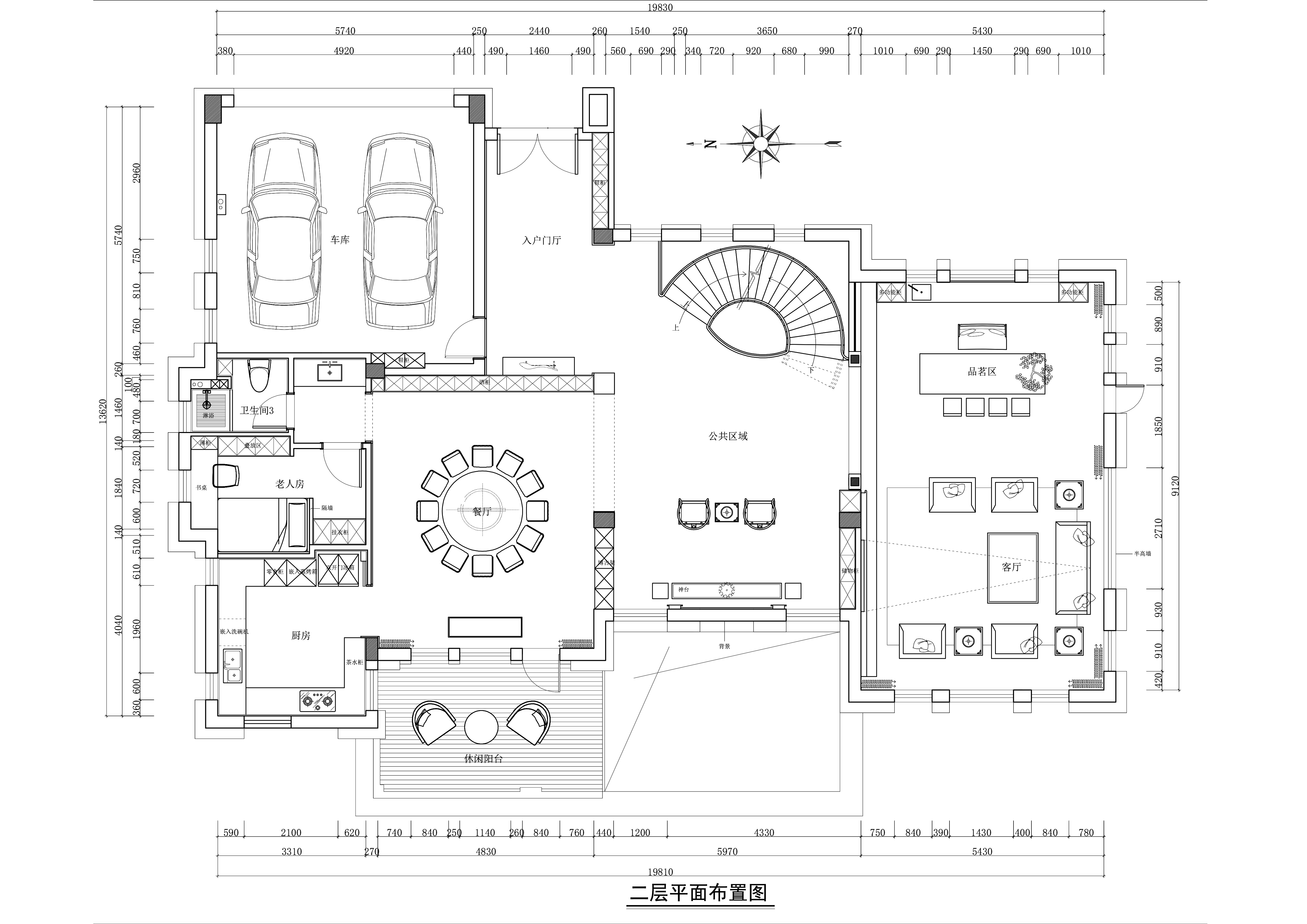
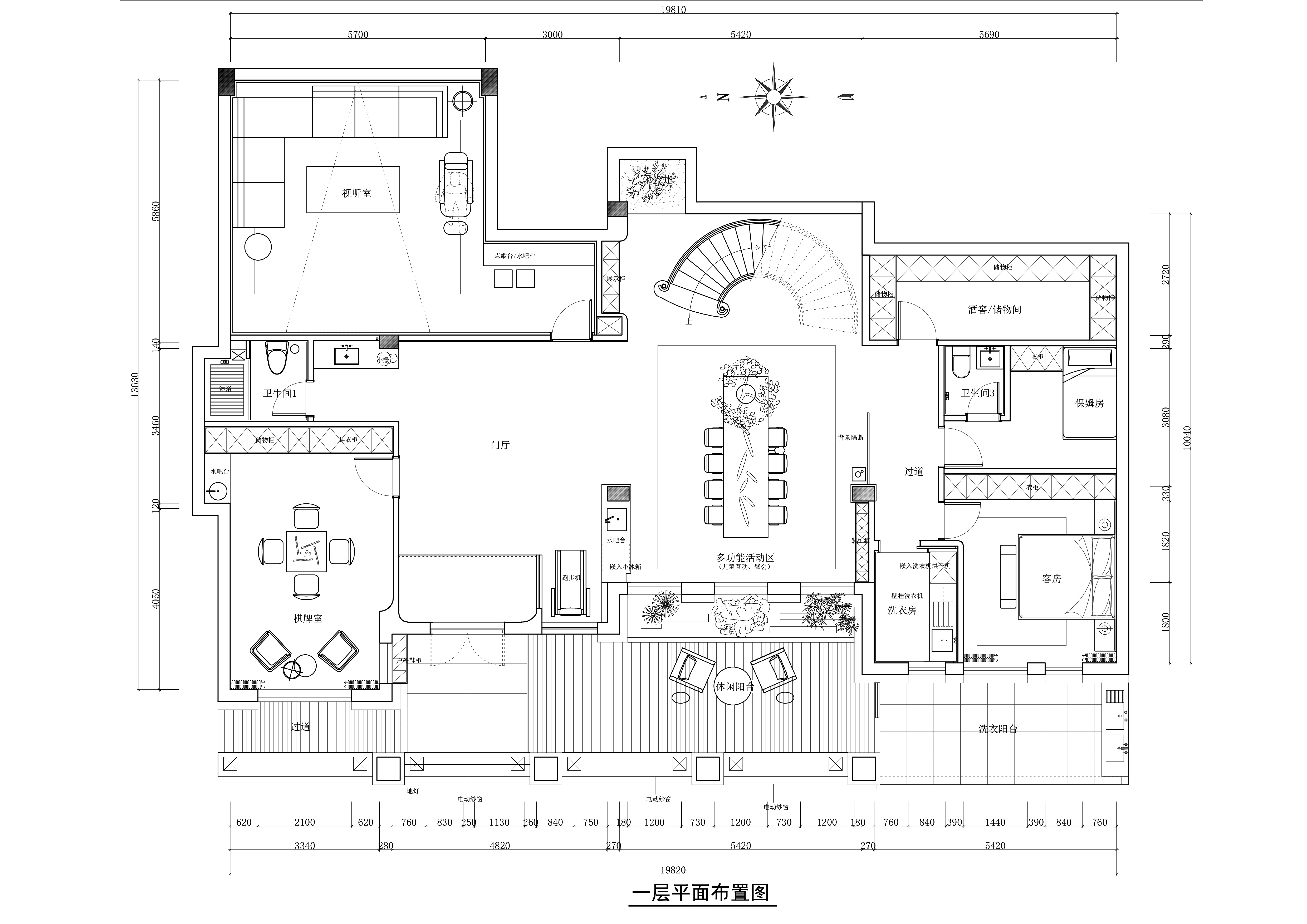
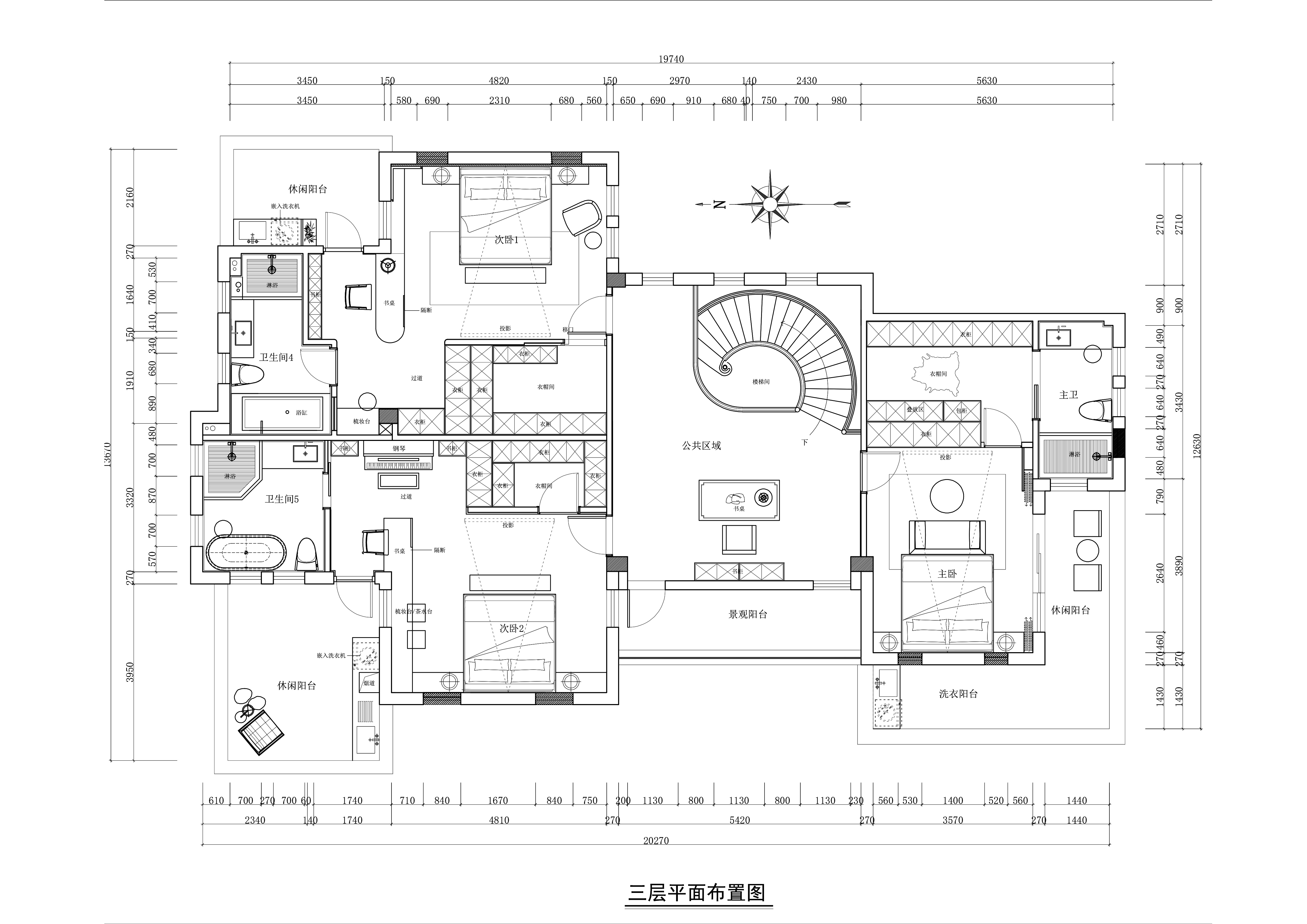
- 项目类型:别墅
- 项目地点:丽水市
- 建筑面积:680.0000㎡
- 项目造价:800.0000万元
- 主案设计师: 张卓森
- 竣工时间:2024年4月
-
项目定位:结合中国风水学,将古典诗情画意与现代生活气息糅为一体,营造一个远离喧嚣的心灵乐园、一个雅致舒适的居住空间。
-
空间意境:孩子钟爱的个性化空间与父母期望的整体布局巧妙融合,兼顾了多样化的居住需求,恰如当下年轻人对于“中式”风格的独到见解与长辈的传统认知之间的差异,各具特色,相得益彰。
-
空间布局:为充分满足男业主与女业主各自独特的会客需求,我们巧妙地将他们的会客空间进行分隔设计。此外,棋牌室特意设置了直接通往后院小路的便捷入口,既保证了私密性又增添了便利性。而三楼则专设为宁静舒适的居住区域,为业主及家人提供一个温馨惬意的休憩之所。
-
设计选材:利用了原有的红木家具,通过重新整修,焕发新的生命力,延长其使用寿命,从而减少对新资源的需求和废弃物的产生。
全屋智能系统的配套使用,则是现代科技与绿色生活的完美结合。智能系统能够精准控制家居设备,如智能窗帘、智能照明等,根据室内外环境自动调节,既保证了室内光线和温度的舒适度,又大大降低了能源消耗。
此外,全屋智能系统还具备远程控制和故障预警等功能,使得家居维护变得更加便捷和高效。 -
用户体验:用户觉得保留传统文化元素的同时,也注重现代审美和实用性。这种结合具有传统韵味,又符合现代人的审美和生活需求。用户对于这一点也给予了积极评价。

