陽和心境
237 - 项目类型:办公
- 项目地点:台湾
- 建筑面积:80.0000㎡
- 项目造价:42.0000万元
- 参与设计师:欧阳旭
- 竣工时间:2024/11/
- 设计机构:零九室內裝修設計有限公司
-
项目定位:本作品以儿童与家庭心理治疗为核心,结合五行理念与现代设计美学,打造温暖、治愈且富有情感联结的多功能空间,促进亲子关系的互动与提升家庭幸福感。
-
空间意境:采用莫兰迪色调及圆弧曲线设计,搭配班杰明摩尔乳胶漆与柔和灯光,营造出温馨且具有安全感的氛围;在公共区设计创意涂鸦墙与亲子互动角,让空间更加生动且有趣。
-
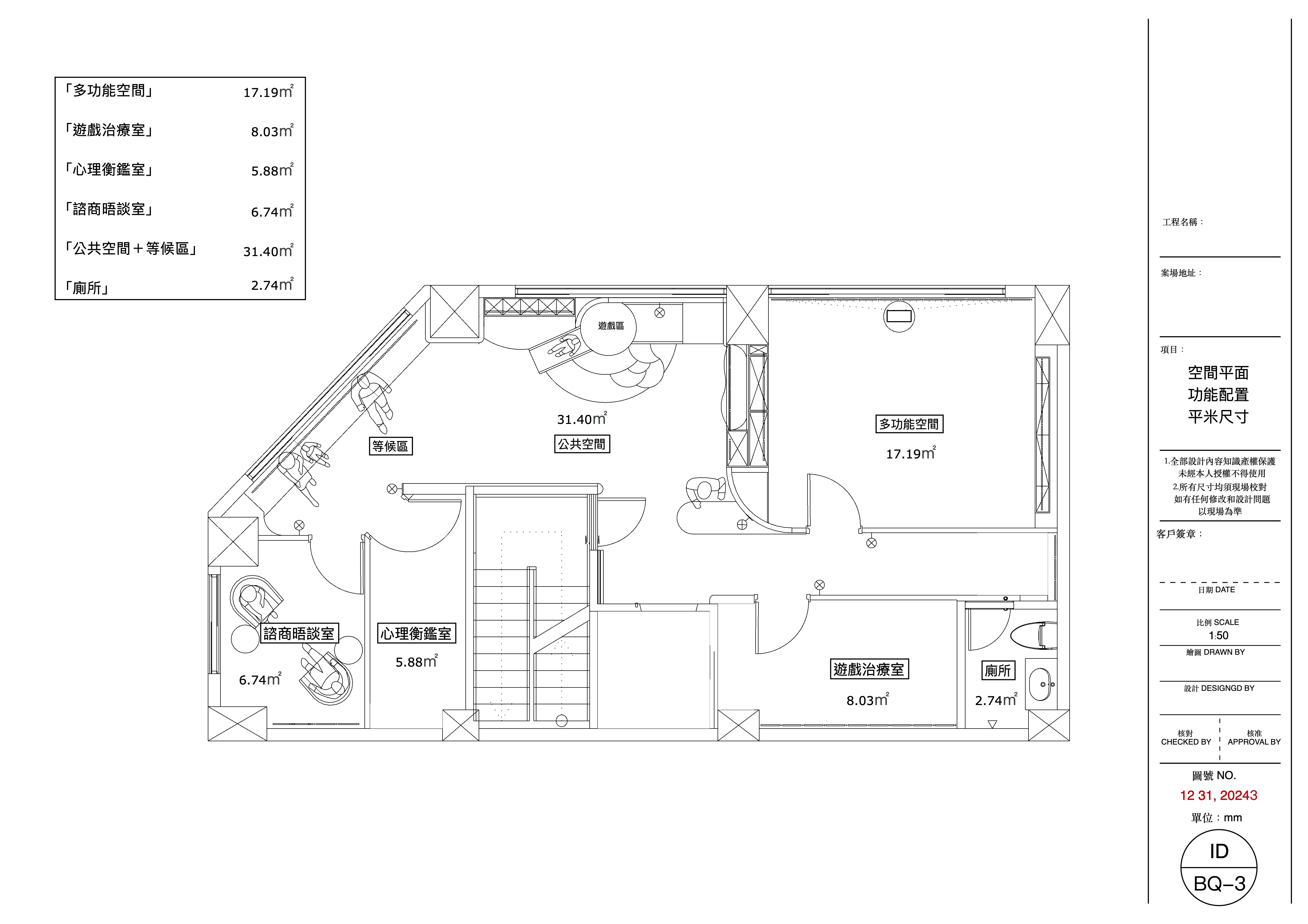
空间布局:以「动静分区」和「亲子互动」为核心,设计了治疗室、休憩区与游戏区。游戏区采用多功能涂鸦墙和互动山丘设计,促进亲子交流;治疗室以隐私性与柔光灯条引导动线,提供安静舒适的治疗环境。
-
设计选材:选用易清洁且环保的波音软片及多功能磁性美耐板,搭配班杰明摩尔乳胶漆,实现低碳环保与经济性,并具备耐刮、防污、抗菌、防霉等特性,满足高使用频率空间的需求。
-
用户体验:空间投入使用后,家长赞赏其亲子互动设计提升了家庭关系的和谐,儿童则喜爱游戏区的创意与趣味性,治疗师则认为灯光与布局设计有助于提升治疗效果。整体评价为功能性与情感连结的完美融合。
迎宾柜台设计细节说明 1. 迎宾柜台高度设计 高度设置:柜台高度设计为73公分,远低于一般成人使用的95公分至115公分高度标准。这一细节的调整,专为学龄儿童设计,确保柜台高度更贴近孩子的视线范围。 设计目的:降低柜台高度能有效拉近与孩子之间的距离,减少心理压迫感,让孩子在初次接触心理治疗时感受到温暖与亲近。 2. 与孩子互动的参与感 消除距离感:低高度柜台让孩子能轻松看到迎宾人员的微笑,并参与到与家长的接待过程中,减少「来治疗」的陌生感与疏离感。 亲子共融:柜台的设计不仅考量孩子,也充分顾及亲子的互动。柜台高度让家长与孩子能同时参与,强化亲子之间的联结。 3. 人体工学与可调设计 人体工学考量:迎宾区内的所有设计均参考学龄儿童的适合高度,从站姿到坐姿,让孩子在空间内能自然舒适地活动。 多功能性:柜台内部设计灵活,配备可调节的工作区域,方便迎宾人员根据需求调整高度,适应不同活动场景。 4. 视觉与材质设计 视觉柔和:柜台设计以圆弧形曲线为主,避免过于尖锐的结构,营造出友好、安全的氛围。 环保材质:选用抗菌、防污的环保材料,确保柜台的清洁与耐用,符合高使用频率的公共空间需求。 5. 设计的情感价值 迎宾柜台作为孩子和家庭进入治疗空间的第一接触点,不仅是功能设施,更是传递温暖与支持的起点。 这一高度的细致调整体现了设计对使用者心理需求的关注,拉近了治疗师与家庭之间的情感距离,营造出更加友善的治疗氛围。 结语 通过细致入微的高度设计,我们在迎宾柜台中体现了对儿童、青少年及其家庭的充分关怀,让孩子在进入空间的第一步便能感受到尊重与接纳。
亲子互动游戏区 亲子互动区与父母等候区采用开放式设计,创造出一个既充满互动又安全的空间。家长可以在等候的同时清晰掌握孩子的活动情况,小山丘的攀爬互动设计则象征着亲子沟通的过程,通过身体接触拉近彼此距离。在这片区域内,家具采用可移动设计,增添了空间的多功能性和趣味性,满足不同场景的使用需求。整体空间的布置不仅关注实用性,更通过细腻的设计细节传递温暖与关怀,为家长与孩子提供共同成长与互动的场所。
阅读空间不仅是为孩子和家长提供推荐书籍的展示区域,其上方还巧妙设计为档案的收纳柜。我们特别选用了意大利进口的儿童安全锁,隐藏式的锁孔设计在保障安全性的同时,也提升了空间的整洁与美观。这种设计不仅关注功能性,更注重为儿童创造一个无忧的学习与成长环境,使家长和孩子都能感受到细节中的贴心关怀。
家长等候区 家长等候区的红、黄、蓝三色椅子不仅仅是空间的一部分,更承载着一个关于人生与创造的故事。这三种颜色,是万千色彩的基础,象征着每个人独特的本源。红色代表热情与活力,黄色象征希望与温暖,蓝色则寓意宁静与思考。每个人都是由这些色彩调和而成,却又各自绽放出属于自己的独特光芒。 通过这些基础的色彩,我们希望传递这样一个理念:人生就像一幅画,每个人都可以用自己的热情、希望与智慧,在这片基础上调和出更加丰富、更加美丽的色彩。而这里的家长和孩子们,正是这幅画的主角。他们可以用自己的方式,将爱与理解调和出更绚烂的亲子关系。简单的三色,不仅让空间充满活力,也激励每一位到访者发现和创造属于自己的精彩人生。
这个空间通过巧妙运用三原色的鲜明对比,营造了一个既活泼又平衡的氛围。红、黄、蓝的原色设计不仅是视觉上的亮点,更象征着孩子的纯真与创造力。在设计中,我们将这些颜色与空间中的简约白墙和柔和曲线相结合,展现出童趣与专业的融合。 天花上的移动挂饰如同太空中的星球轨迹,增添了空间的趣味性与想象空间。它象征着孩子心中的梦想和无限可能,让他们在这里感受到自由与启发。 此外,这些设计元素不仅仅是装饰,还是互动的起点。例如,鲜艳的座椅为亲子之间的交流提供了轻松的场景,让家长和孩子都能轻松自在地融入这个空间。这样的细节设计强调了平衡与用心,也体现出对每一位来访者的关怀。
天花上的移动挂饰如同太空中的星球轨迹,增添了空间的趣味性与想象空间。它象征着孩子心中的梦想和无限可能,让他们在这里感受到自由与启发。
LED软灯条如同一条温暖的“心灵之光”,从天花板缓缓延伸至地面,贯穿整个空间。它象征着一条温柔而坚定的引导线,带领每一位到访者从门口进入,走向他们需要的地方。每一步,都像是踏上一段由光构筑的旅程。 这个设计背后有一个故事:它像一位守护者,默默在身旁守候。当你踏入这片空间时,它的光芒会轻轻包围你,指引你前行,仿佛在告诉你——“你并不孤单,每一步都有人为你照亮前路。”正如心理治疗中,我们希望给每个人提供一份安全感与方向感,帮助他们找到属于自己的答案。LED软灯条不仅是设计的一部分,更是一份陪伴与支持的象征。
谘商晤谈室入門意象 设计故事:门与光的对话 在每一扇门的设计中,我们巧妙运用了不同的颜色和形状,让每个门不仅仅是通往空间的入口,更是一段故事的开端。每一扇门都象征着这个空间的独特属性,与品牌“阳光”的主题形象相呼应。 门的颜色与形状 我们选择柔和的莫兰迪色系作为主色,让人感受到温暖与平静。每扇门的形状则根据其功能特性进行设计,例如: 圆弧形门框:象征包容与接纳,营造出安心的氛围。 鲜明的色彩区分:如若草绿、珊瑚橙,直观地帮助人们辨识不同功能空间。 光的意象 门旁的壁灯设计灵感源自“太阳”与“屋檐”。圆形灯罩象征太阳的温暖和生命力,而灯罩上方的遮板则像是一片守护的屋檐,传递出品牌“遮风挡雨”的承诺。当光线洒下时,仿佛阳光轻拂,给人带来心灵的慰藉。 设计意图 这样的门与灯的搭配,不仅强调了空间的识别性,也为整体设计注入了温暖的人文情怀。每一次推开这些门,都是一场充满阳光与希望的疗愈旅程。
谘商晤谈室 空间设计说明 1. 空间色彩分析 主色调:采用柔和的莫兰迪色系,以灰蓝和浅绿为基础色调,展现沉稳平静的氛围,同时又不失轻松愉快。 辅助色彩:白色与自然光结合,营造出轻盈开放的环境,柔化成人空间的严肃感,并融入孩子的活泼气息。 心理效应:浅绿和灰蓝象征疗愈与舒适,白色则代表纯净与平和,非常适合青少年与成人心理咨询的场景。 2. 材质与家具分析 家具风格:灰色单椅:圆润的造型提供了安全感,柔软的材质让使用者感到放松,适合青少年和成人的使用。 绿色沙发:经典纽扣设计增加空间成熟感,圆弧造型带来亲和与温暖。 材质选择:布艺椅与沙发手感温暖,耐用且易清洁,能够满足多种功能需求。 3. 空间氛围营造 光线设计:百叶窗可灵活调整自然光线,柔化光线的同时保障隐私,帮助用户在咨询过程中感到安全。 几何对比:层架的方形线条简约实用,与家具的圆润设计形成鲜明对比,平衡视觉效果,既显专业又不失亲切。 4. 适配人群 成人:沉稳色调和简洁布局,有助于建立信任感和专业形象。 青少年:柔和的色彩和家具曲线消除了压迫感,营造亲切氛围。 学龄儿童:色彩明亮但不过于饱和,保留了活泼形象,同时不会显得过于张扬,让孩子也能感到舒适。 5. 设计意图 此空间设计旨在打破传统成人咨询室的单调与压抑,通过活泼与稳重的结合,满足不同年龄段用户的需求。家具与色彩搭配能够灵活适应不同的治疗场景,让每位访客感到被理解与接纳,进而实现心理疗愈的目标。 通过这样的设计,咨询室不仅是心理困扰的解决场所,更是促进人际互动与自我探索的情感空间。
心理衡鉴室 设计故事:门与光的对话 在每一扇门的设计中,我们巧妙运用了不同的颜色和形状,让每个门不仅仅是通往空间的入口,更是一段故事的开端。每一扇门都象征着这个空间的独特属性,与品牌“阳光”的主题形象相呼应。 门的颜色与形状 我们选择柔和的莫兰迪色系作为主色,让人感受到温暖与平静。每扇门的形状则根据其功能特性进行设计,例如: 圆弧形门框:象征包容与接纳,营造出安心的氛围。 鲜明的色彩区分:如若草绿、珊瑚橙,直观地帮助人们辨识不同功能空间。 光的意象 门旁的壁灯设计灵感源自“太阳”与“屋檐”。圆形灯罩象征太阳的温暖和生命力,而灯罩上方的遮板则像是一片守护的屋檐,传递出品牌“遮风挡雨”的承诺。当光线洒下时,仿佛阳光轻拂,给人带来心灵的慰藉。 设计意图 这样的门与灯的搭配,不仅强调了空间的识别性,也为整体设计注入了温暖的人文情怀。每一次推开这些门,都是一场充满阳光与希望的疗愈旅程。
门上的珊瑚橙色,象征着温暖与能量,也是一种心境的转折。在设计上,它承载了从外界纷扰到内心平静的过渡感,像是一道柔和的光,引导访客进入治愈的空间。这一抹珊瑚橙,不仅提升了整体空间的活力与温度,更像是一种无声的安抚,给予每位到访者力量与支持,帮助他们在此重新整合内心的宁静与希望。
多功能互动空间 多功能空间不仅承载了游戏治疗的欢乐,也为电影欣赏、活动简报、卫教讲座以及团体课程提供了无限可能。在设计之初,我们便思考如何让每一场活动都能拥有专属的氛围,因此特别在空间内融入了多层次的灯光设计。 这里的灯光不仅仅是照明,更是情境的缔造者。在柔和的灯光下,游戏治疗的场景充满温馨,让孩子们感受到安全与关爱;在明亮的灯光下,卫教讲座与团体课程散发理性与专注的氛围,让家长与孩子能全心投入学习;而当灯光转为轻松的色调,观影时的空间仿佛变成了一处温暖的港湾,拉近了家人之间的距离。 我们刻意留白,让空间能够自由转化,以适应不同活动的需求。无论是探索自我、学习知识,还是亲子间的互动,每一次灯光切换,都像是一次心境的转折,让参与者沉浸其中,体验情境的多样与丰富。这不仅是一个多功能空间,更是一处承载梦想与情感的舞台。每一盏灯,每一道光,都诉说着我们对家庭与成长的深切关怀。
最终的收纳柜采用了珊瑚橙与若草绿的配色,并以黄金比例切割设计,不仅提升了整体视觉美感,也兼具高效实用性。柜体内部分区明确,既可存放玩具,又能收纳清洁用品等设备,全面满足空间的功能需求,让美观与实用完美融合。
設計說明 本空間的動線設計以流暢性、功能性及情感連結為核心,充分考慮不同使用者的需求,實現動靜分區、引導式動線及人性化的空間體驗。 1. 动静分区 动区(公共互动区域):设计于空间入口与中央,包括接待区、游戏区与亲子互动区,动线自由且流畅,方便来访者快速进入并感受到轻松的氛围。 静区(治疗及休憩空间):位于空间深处,设置独立的治疗室与休息区,远离公共活动区域,确保隐私与安静,让使用者感受到安全与放松。 2. 引导式灯光设计 在主要动线上使用隐藏式灯条,透过柔和的光线渐层,引导来访者自然而然地进入不同功能区域。 灯光强弱的变化区分出功能性与情感性的空间,例如:治疗室的光线柔和舒缓,公共区则稍明亮且活泼。 3. 功能性与流畅性 接待动线:入口区域设计宽敞的接待台与等候区,来访者进入后可直观找到相关服务,减少心理压力。 亲子互动动线:游戏区与涂鸦墙设计于中央开放空间,动线环绕游戏设施与互动山丘,方便家长与孩子一起参与。 治疗室动线:每个治疗室设有明确且隐私的通道,避免来访者因交错路径感到不安,并提升整体私密性。 4. 心理引导与情感支持 曲线动线:采用柔和的曲线设计,避免直线带来的生硬感,让使用者感受到流动与包容的氛围。 环状动线:整体空间布局形成环形动线,让使用者在空间内自由流动,减少压迫感,并自然过渡到各区域。 5. 无障碍考量 动线规划充分考虑到无障碍需求,包括宽敞的走道、平整的地面设计,以及清晰的标识系统,确保所有来访者都能轻松进入与使用各区域。 结语 这样的动线设计不仅提高了空间使用效率,还通过灯光与曲线设计为心理治疗增添了情感支持,提供来访者流畅且舒适的使用体验。
0
0

认证 · 让您身份增值