日出·印象
462
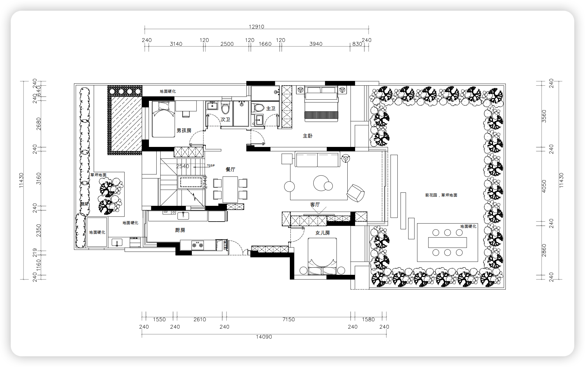
作品说明
- 项目类型:住宅公寓
- 项目地点:德阳市
- 建筑面积:128.0000㎡
- 项目造价:22.0000万元
- 参与设计师:黄晴
- 竣工时间:202405
- 设计机构:壹点空间室内设计工作室
-
项目定位:莫奈在勒阿弗尔港眺望到海面,橙红色的日出缓缓升起,霞光映照着海面和远处的海港渔村,莫奈怀着热情创作了《日出·印象》曾经激荡着无数人的内心。橙色继承了红色的热情与黄色的明亮,它代表着活力四溢、热情奔放,能够激发人们的热情和动力。本案业主追求这种积极向上的生活态度,新房设计采用以简驭繁策略,以内心的丰富作起手,创造一个看似简单,却越感受越有遐想氛围,简约而丰富的居家环境。
-
空间意境:本案在环境风格上借用印象派绘画艺术理念,用多构图捕捉和强调光和色彩的变化,主观表达业主情感与个性,让自然光和灯光相辅相成,形成一种特定氛围,使居家环境呈现出一种个性化的鲜明和生机勃勃。
-
空间布局:本案在设计布局上采用以简驭繁策略,更大可能的利用好阳光和灯光的结合,让自然参与家居的美和格调上起作用。让每一个场景生动而鲜活,仿若色彩研想室,让身处其中的人都能感受到色彩所传递的精神与力量。
-
设计选材:硬装简约强调细节,特别是艺术漆和乳胶漆木饰面形成整体的氛围底色,再用色彩造型出艺术居家氛围,居家重点放在体验感和氛围感上,以简驭繁成本不高,体验感上佳,值得推荐。
-
用户体验:业主反映便于打扫(扫地机器人就行了)软装体验感特别好,整体能让她心灵平静下来,特别有归宿感(按照业主喜欢的颜色和艺术风格选色彩和选品)。业主一家五口连同宠物都很满意。
0
0

认证 · 让您身份增值