上海炊江南国展华漕店
269
作品说明
- 项目类型:餐饮
- 项目地点:上海市
- 建筑面积:1700.0000㎡
- 项目造价:320.0000万元
- 主案设计师: 邵才志
- 参与设计师:胡爱新、刘晓委、王明肖、孙斌杰、袁瑞
- 竣工时间:2024年1月
- 设计机构:石家庄大石代设计咨询有限公司第一分公司
-
项目定位:以“文艺民俗”场景化打造差异化体验,以环境区隔建立品牌差异,80%文艺+20%民俗构建【炊江南】精致大众餐饮消费体验。
-
空间意境:“文艺民俗”场景化,相比传统农家乐的土味更显精致格调,相比商务类餐厅又更具烟火气,让人愿意走进来,兼容了大众、烟火气、精致感、文艺性等多重体验,在上海地区,形成独具一格的精致型大众餐饮消费体验。在保持上海本土民间底色基础上,融入当代感的文艺气息,文艺是精致,是格调,民俗是烟火气,既显生活品味,亦有江南的清雅与诗意。
-
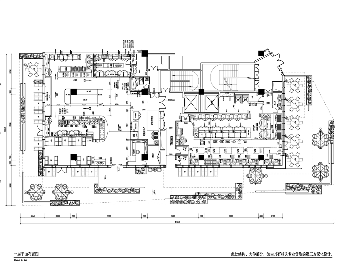
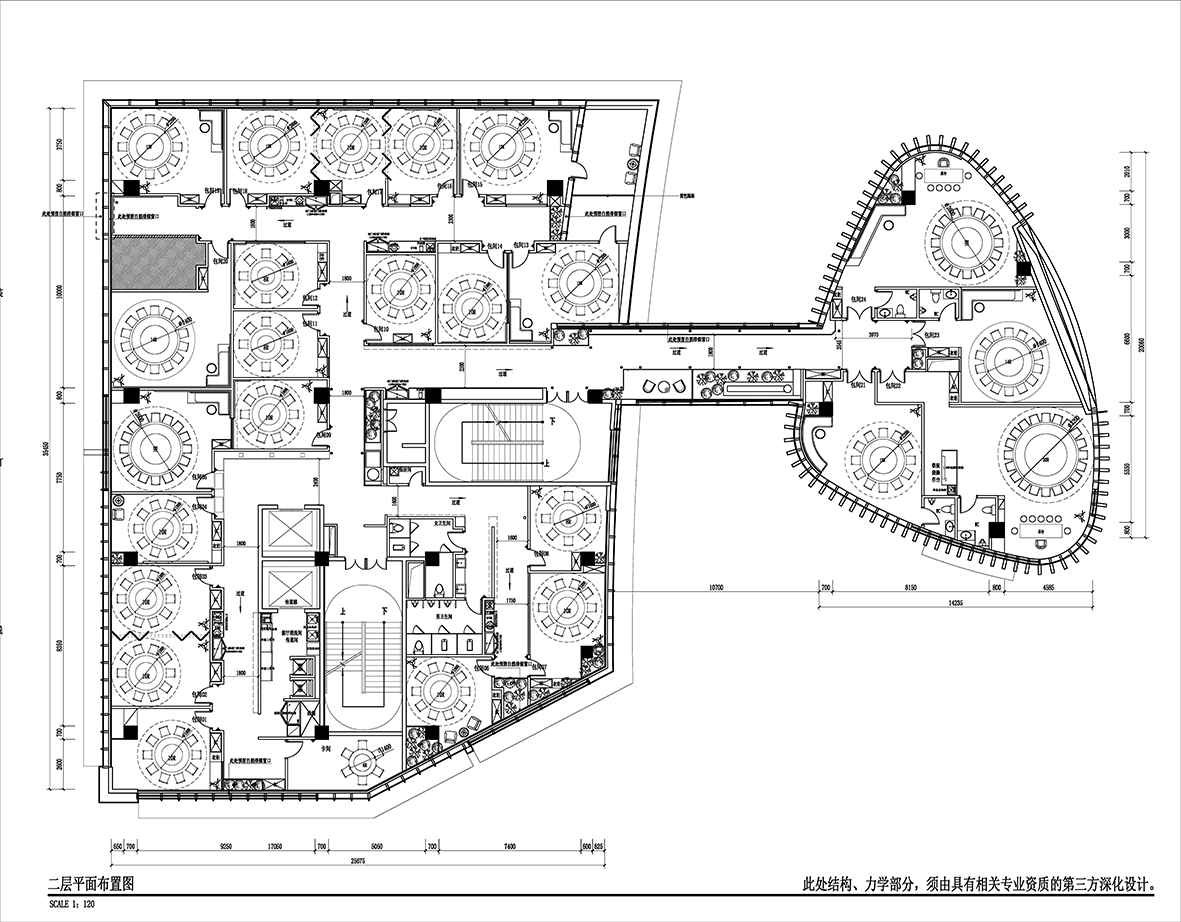
空间布局:在满足餐饮空间基本功能的基础上采用游廊式的布局手法,移步一景,进入餐厅,一眼看去不见绿瓦红墙,也无落英缤纷,仅有素净空间中深咖木饰与文艺气息,赋予空间精致有内涵的沉稳大气。聚焦于本地品质家宴、轻商务宴请、外地游客、商旅人士打卡需求,餐位设计主要以包房为主,注重打造舒适、雅致、高端的品质格调。
-
设计选材:空间内提取有江南符号的元素,如竹编、席编、老木头,老石板等自然材料进行精致化演绎,以写意概括的空间语言构建具有当代性的民俗文化体验感和设计感,营造轻松雅致的氛围。
-
用户体验:餐厅一层整个空间以明档为主,多维度创建精致烟火气的消费体验。让客人充分感受到新鲜感、精致感、特色感,以构建消费生动信任状。
0
0

认证 · 让您身份增值