乌木与象牙



作品说明
- 项目类型:别墅
- 项目地点:桂林市
- 建筑面积:700.0000㎡
- 项目造价:300.0000万元
- 主案设计师: 张抗
- 竣工时间:2024年6月
- 设计机构:内设计
-
项目定位:本案位于桂林市漓江边高端住宅小区,漓江壹号。客户35岁创二代,需要通过装修设计体现个人的生活品味与生活方式。
-
空间意境:本案在环境风格上,所有空间始终保持整体统一的黑白灰极简风格调性。
-
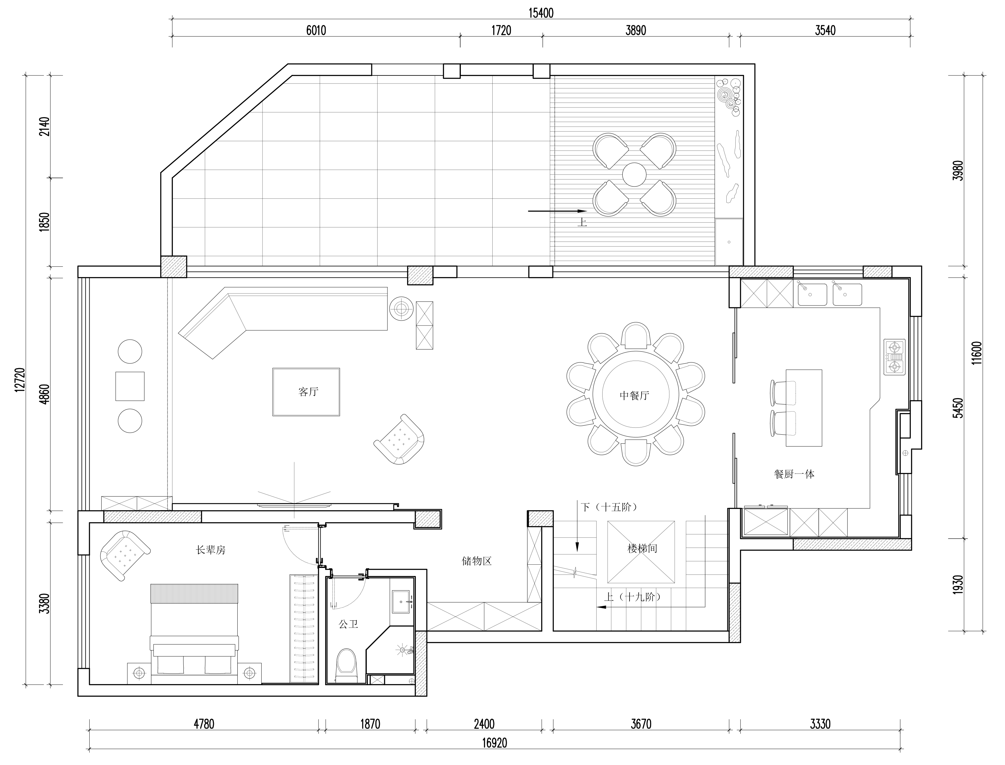
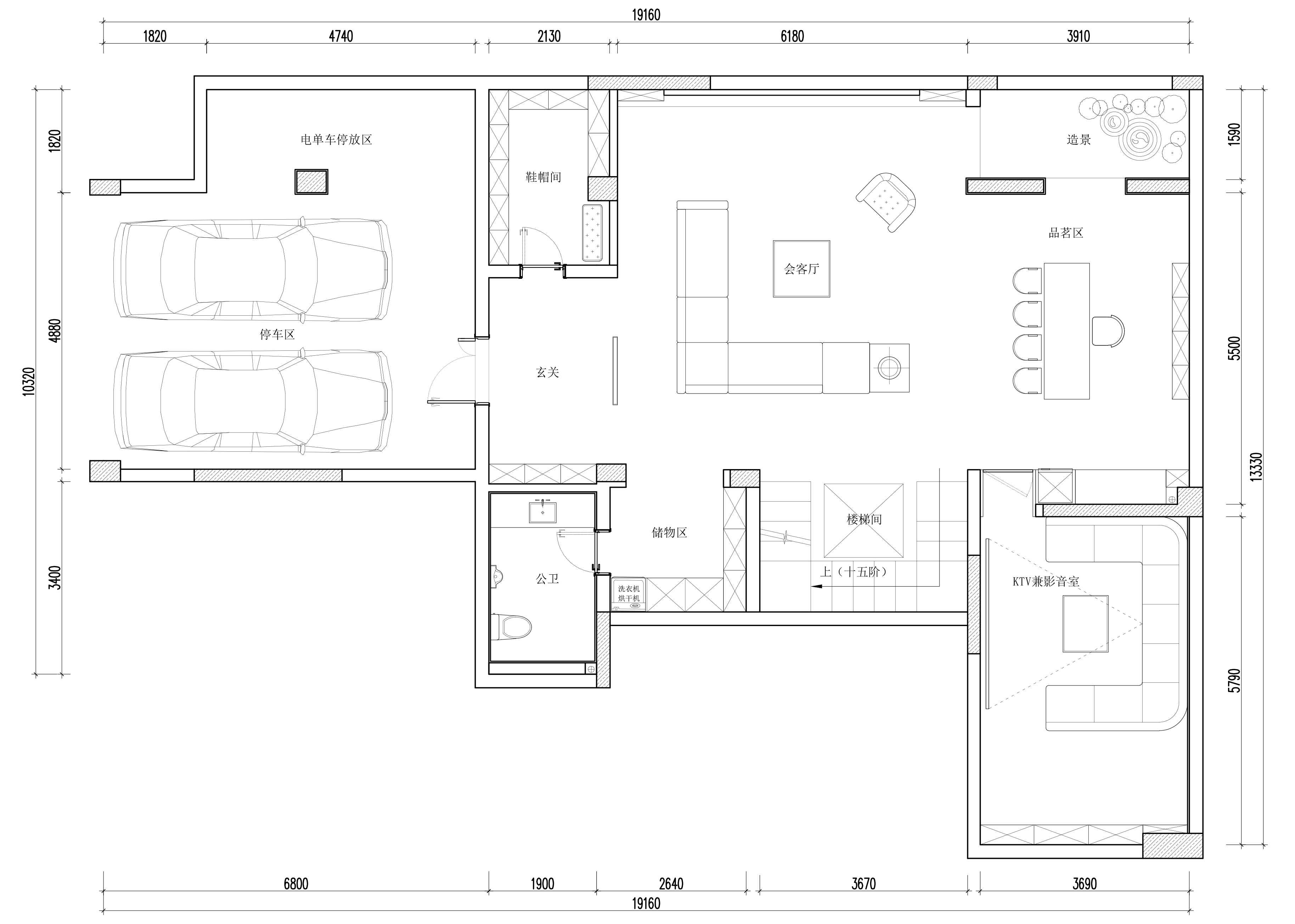
空间布局:本案最大的亮点是把原来的光线很差的负一负二楼空间设计成了中空空间,使得原始地下空间的压抑感不复存在,反而成为了整个空间最大的亮点
-
设计选材:本案,在考虑整体落地效果以及成本得前提下,用岩板代替大理石做背景墙,大部分墙面用的环保的涂料,天花尽可能的不设计吊顶,保持层高已经控制装修成本,也减少了了很多无谓的造型设计,始终保持极简的调性。
-
用户体验:在别墅的空间划分中,既满足了业主负一楼负二楼作为待客,及与朋友交流的种种空间功能需求,也使得一楼二楼作为业主一家四口享受宅家生活的私密性。整体落地调性也非常符合业主的黑白灰极简主义喜好。

