-
项目定位:都市的快节奏让生活压力越来越大,我们希望通过空间的设计让“家”变得更有“趣味”“活泼”一些。
-
空间意境:本案在风格抛弃了固有的风格限制,并没有给空间限制一种什么样的“风格”,而是希望回归生活的本质:“居住性”,“生活本该丰富多彩”,通过简洁的硬装+搭配丰富的软装,营造一种活泼,可爱,多彩的感觉。
-
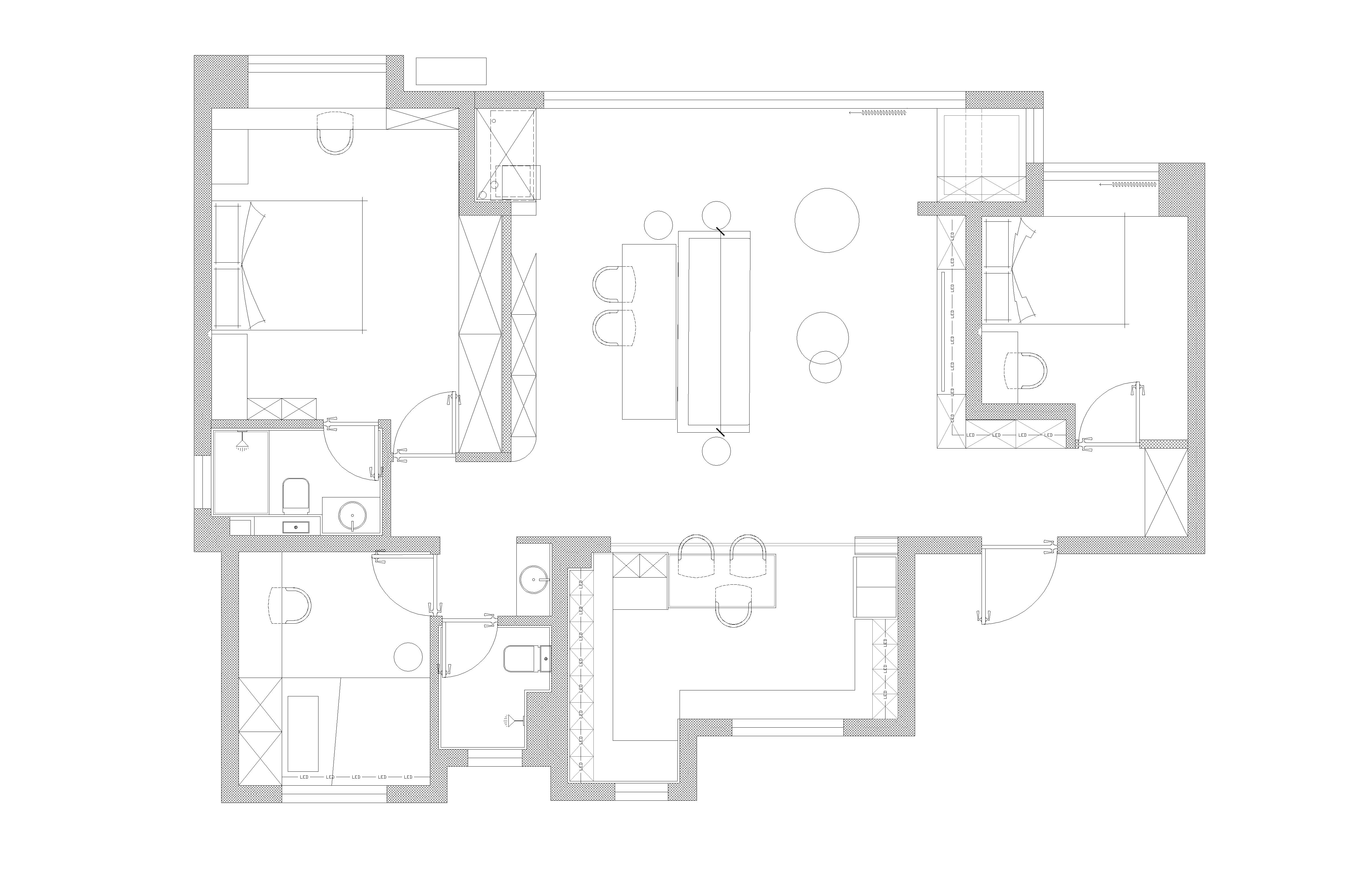
空间布局:原有房屋为四室格局,夫妻两口人居住,我们将其中一个卧室打通划给客厅,增加了公共区域的尺度感,同时设计了餐厨一体,开放式厨房,更加符合居主人的生活习惯。
-
设计选材:以往的装修大家的关注点很多都在硬装的材质收口与质感,在疫情过后的时代,人们越来越关注生活的本质,对房子的更多需求是居住的舒适性,所以我们在整个空间硬装与材料上尽可能的控制了预算,而是通过储物与软装来满足生活的本质需求,同时也营造空间的氛围感。
-
用户体验:在实际居住中,开放式厨房,餐厨一体更满足居住人的生活习惯,增加了客厅与餐厅,厨房的联动性,实际使用也非常舒服。
0
1

认证 · 让您身份增值
123