开通会员
* 不支持7天无理由退货
五大会员回报
一、五种秒生图 · 让您秒速谈单
文生图、全屋设计、线稿变精装、毛坯变精装、旧房翻新
——自研Ai、前期提案0成本,以图锁客、签单神器
二、秒生爆款文案 · 让您轻松日更
Ai秒生小红书爆款文案、专业级参赛文案
三、小程序分发 · 让您直达业主
V网站小程序支持多平台分享、高效引流
四、个人主页 · 让您专属展示
个人作品专属展示,设计师私属商务名片
五、红认证 · 让您身份增值
“行业奥斯卡”金堂奖加认证,让您增值
限时优惠,免费试用3天
金堂奖会员
399/ ¥880
终身会员2980元(不限年份、永久使用)
在线支付

在线支付安全认证

安全可靠

您的信息将完全加密

即买即用

享受更多优质会员服务

应付金额: 399

已扫码

请在手机上完成支付

点击刷新
请用微信扫码支付

支付即同意并接受

《金堂奖个人订阅服务协议》
恭喜,您已成功开通金堂奖VIP会员!
会员到期时间:2025-03-10
将于 10秒后,跳转至 秒景AI设计,立即跳转
关闭
简介
报名
记录
V网站简介
我的V网站
主页
发布作品
金堂奖
秒景AI
V网站
我的
立即红认证,享会员五大回报
您免费试用时间已到期,
立即红认证,享会员五大回报
您的体验仅剩2天,立即认证享无限使用!
您的体验仅剩1天,立即认证享无限使用!
您的体验仅剩1小时,立即认证享无限使用!
立即认证
领取三天试用期
恭喜您成为金堂奖会员立享五大回报
会员有效期截止
返回

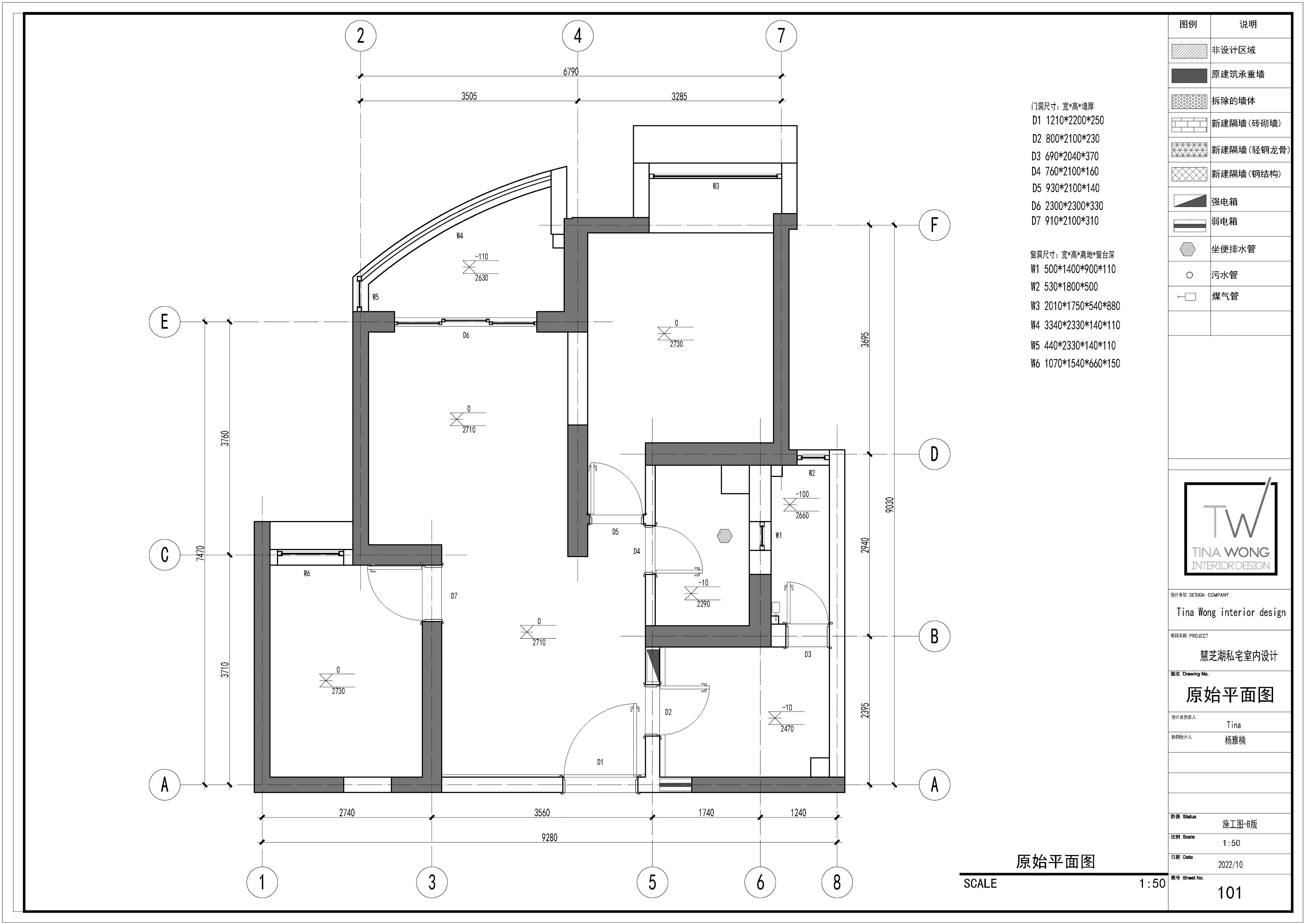
复古海派准婚房,爱人爱宠爱巢

202
作品说明
  • 项目类型:住宅公寓
  • 项目地点:上海市
  • 建筑面积:80.0000㎡
  • 项目造价:56.0000万元
  • 主案设计师: 王玉洁
  • 参与设计师:王玉洁
  • 竣工时间:2023.11.29
  • 设计机构:上海臻言室内设计有限公司

  • 项目定位:
    对居住者一家三口的实际情况与需求,通过精细化空间布局与多功能设计,最大化利用空间,打造出一个明亮、温馨、舒适且功能完备的家。设计重点包括恢复原有卫生间以满足家庭需求,实现餐厨分离以优化生活动线,增加收纳空间以提升生活品质,以及满足业主个性化需求如设置佛龛、按摩椅、大水槽等。同时,通过半高电视柜、窗洞设计、复古地砖等元素,增强空间通透感与层次感,营造温馨怀旧的氛围。整体设计旨在提升居住者的生活便捷度与幸福感,让每个角落都充满家的温暖与美好。

  • 空间意境:
    步入这个新家,仿佛踏入复古与现代交融的梦幻之境。玄关以仪式感设计开场,餐厅则展现出ArtDeco复古风情,胡桃木与黄铜家具交织出油画般的质感。客厅中,红绿撞色大胆而独特,无茶几设计让空间更显自由与艺术。
    卧室黑色基调搭配金色与红色床品,彰显个性与品味。书房以哑光黑为主,粉色滚线椅子成为亮点,既实用又舒适。厨房奶油绿清新雅致,卫生间牛油果绿与黑色腰线复古韵味十足。
    阳台更是惊喜,榻榻米、竹帘与原木色饰面,营造出轻松惬意的世外桃源。整个空间不仅满足居住需求,更融入屋主的个性与品味,复古与现代交织,生活情趣满满。

  • 空间布局:
    在空间布局上,本案设计创新点主要体现在对既有空间的高效利用与风格化重塑。设计师巧妙应对了原房屋采光不足、配电限制及功能布局不合理等挑战,特别是针对客餐厅进深问题,利用光线变化增添空间层次感;厨房改为C形布局优化动线,卫生间实现三分离提升使用效率。此外,设计师还充分利用墙面面积增设收纳空间,如玄关柜、餐边柜及书房的金属衣帽架等,既满足了储物需求又保持了空间的开阔感。阳台则被打造成一个与室内风格迥异的居心地,采用榻榻米形式结合半透竹帘,营造出轻松惬意的休闲氛围。这些创新布局不仅解决了实际居住问题,更赋予了空间独特的个性与魅力,完美契合了屋主对复古海派生活的美好向往。

  • 设计选材:
    我们精心挑选了多种材料以打造他们梦寐以求的复古海派风格。全屋下半段采用暗绿色主题色,搭配黑色线条和胡桃木色定制家具,营造出沉稳而富有质感的复古氛围。厨房和卫生间则选用了奶油绿和牛油果绿,为空间增添活泼与活力。地面铺设了模仿老上海民居地板拼装方式的三层复合实木地板,不仅形式仿古,技术先进,稳定性强,还能满足地暖要求。家具方面,我们选择了胡桃木、藤编和黄铜元素,这些材质与复古风格相得益彰。此外,我们还特别挑选了复古玻璃吊灯、ArtDeco风格的灯具、以及具有装饰性的壁纸和窗帘,为整个家增添了艺术感和生活气息。在阳台区域,我们使用了榻榻米形式,抬高的地面和半透的竹帘营造出轻松舒适的氛围。通过这些精心挑选的材料和设计,我们成功打造了一个既复古又充满生活情趣的新家。

  • 用户体验:
    入住这个新家后,每一天都充满幸福感。回到家,只要打开复古的吊灯,窝在沙发里,一天工作的疲惫被治愈。设计师Tina的用心设计,让这个家不仅满足了居住需求,更融入了我们的个性和品味。在这里,我与爱人爱宠相伴,享受着每一个美好的日子。
0
0