森与麋鹿民宿
326
作品说明
- 项目类型:酒店
- 项目地点:阿勒泰地区
- 建筑面积:248.0000㎡
- 项目造价:120.0000万元
- 参与设计师:徐珊珊,马若豪,张思婧
- 竣工时间:2024年9月
- 设计机构:魔匠德克空间设计
-
项目定位:森与麋鹿民宿位于新疆阿勒泰白哈巴村,相较于相邻的喀纳斯与禾木,白哈巴是一个更为小众静谧的村落,图瓦人世代居住于此,赋予这个中国“西北第一村”浓郁的民族风情。民宿选址在可俯瞰整个村落的山坡上,共三栋小木屋,都有着阿勒泰地区木屋特有的“恰特”尖顶。
综合白哈巴民宿市场行情与阿勒泰旅游特点,设计师将森与麋鹿民宿定位在白哈巴民宿中高端层级,从建造硬件到软装品质,都给予旅客充分的舒适感与丰富的体验感,适合超过3天以上的短期小住,更加沉浸式感受这个魅力村落。 -
空间意境:结合白哈巴村民族特色与小木屋建造特点,民宿风格整体呈现出偏复古的油画质感。
-
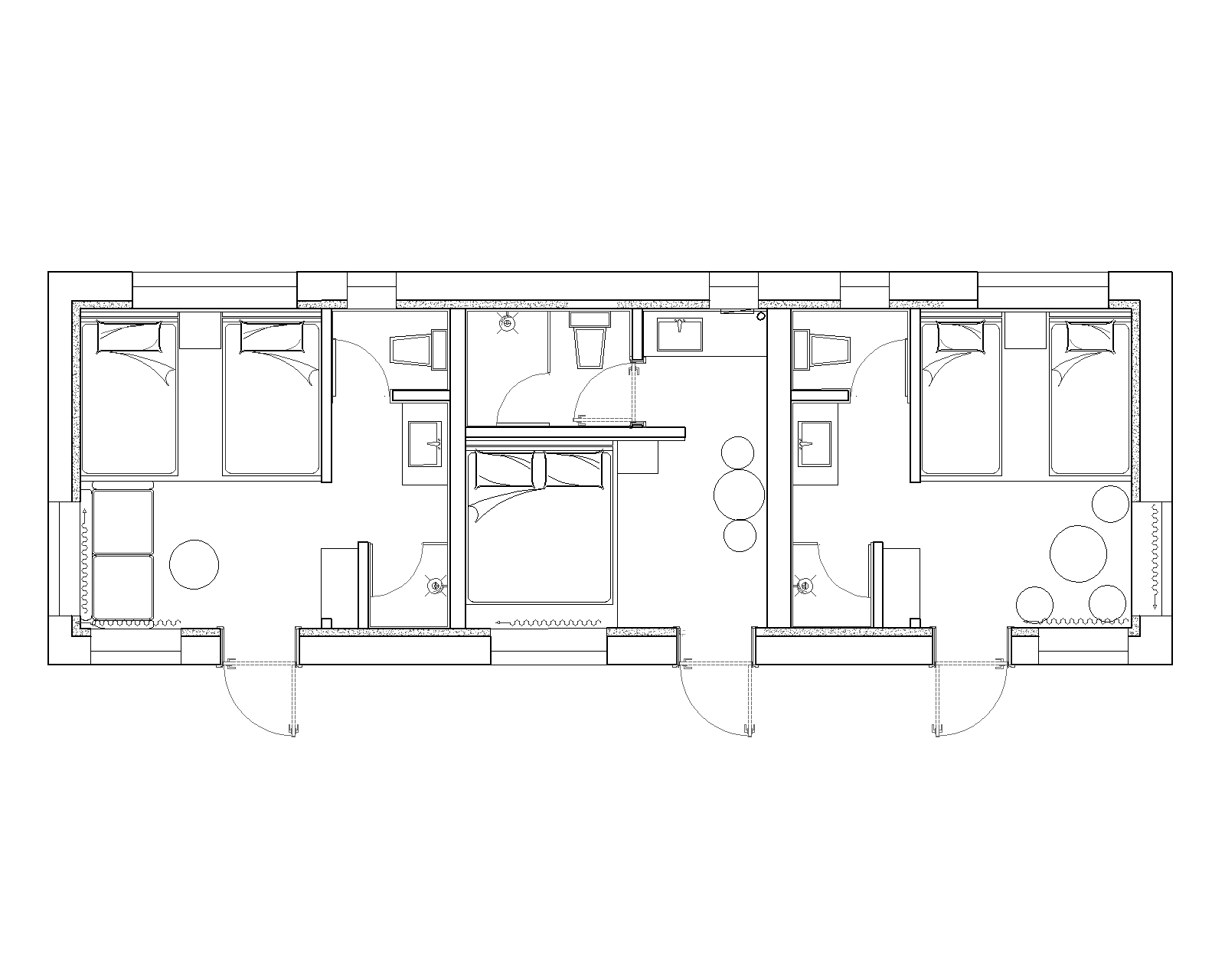
空间布局:民宿共三栋并排而列的木屋,居中木屋规划出1个公区、1间餐厅、1间客房,便于旅客办理入住手续和日常餐食休闲。两侧木屋共规划出7间客房,边户房间有着更优越的视野景观。
虽然木屋尺度不大,每间客房的面积在20-25㎡,但经过精巧的空间布局后,每间客房都拥有茶歇区和干湿三分离的卫生间,小客房不会逼仄拥挤,大客房实现了更多的休闲场景。 -
设计选材:设计师将新疆特色阿德莱斯纹样,手绘后转印装裱,成为民宿里独一无二不可复制的装饰画。
-
用户体验:因为优秀的设计与落地还原,森与麋鹿民宿首登携程等OTA平台,就获得四钻民宿的高评级。
0
0

认证 · 让您身份增值