金堂奖
金堂奖简介
参赛指南
参赛入口
委托报名
参赛记录
设计师V网站
V网站介绍
V网热度榜
作品展示
秒景AI设计
进入AI设计
操作指南
开通会员
* 不支持7天无理由退货
了解更多
五大会员回报
一、五种秒生图 · 让您秒速谈单
文生图、全屋设计、线稿变精装、毛坯变精装、旧房翻新
——自研Ai、前期提案0成本,以图锁客、签单神器
二、秒生爆款文案 · 让您轻松日更
Ai秒生小红书爆款文案、专业级参赛文案
三、小程序分发 · 让您直达业主
V网站小程序支持多平台分享、高效引流
四、个人主页 · 让您专属展示
个人作品专属展示,设计师私属商务名片
五、红
认证 · 让您身份增值
“行业奥斯卡”金堂奖加
认证,让您增值
限时优惠,免费试用3天
金堂奖会员
¥
399
/
年
¥880
终身会员2980元(不限年份、永久使用)
在线支付
在线支付安全认证
安全可靠
您的信息将完全加密
即买即用
享受更多优质会员服务
应付金额:
¥
399
已扫码
请在手机上完成支付
点击刷新
请用微信扫码支付
支付即同意并接受
《金堂奖个人订阅服务协议》
恭喜,您已成功开通金堂奖VIP会员!
会员到期时间:2025-03-10
将于
10
秒后,跳转至
秒景AI设计,
立即跳转
关闭
简介
报名
记录
V网站简介
权益
我的V网站
主页
发布作品
金堂奖
秒景AI
V网站
我的
立即红
认证,享会员五大回报
您免费试用时间已到期,
立即红
认证,享会员五大回报
您的体验仅剩
2天
,立即认证享无限使用!
您的体验仅剩
1天
,立即认证享无限使用!
您的体验仅剩
1小时
,立即认证享无限使用!
立即认证
领取三天试用期
恭喜您成为
金堂奖会员
立享五大回报
会员有效期截止
返回
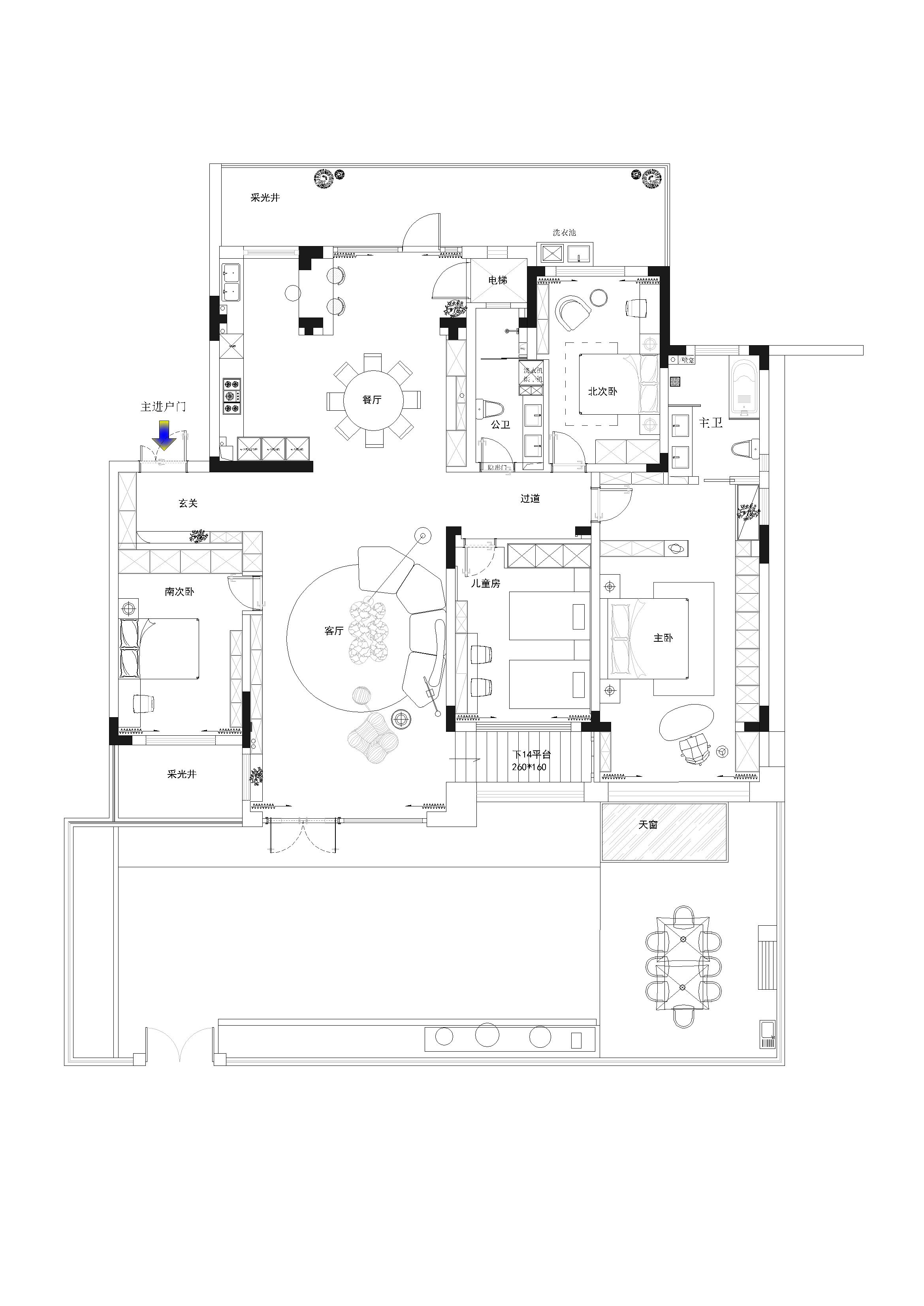
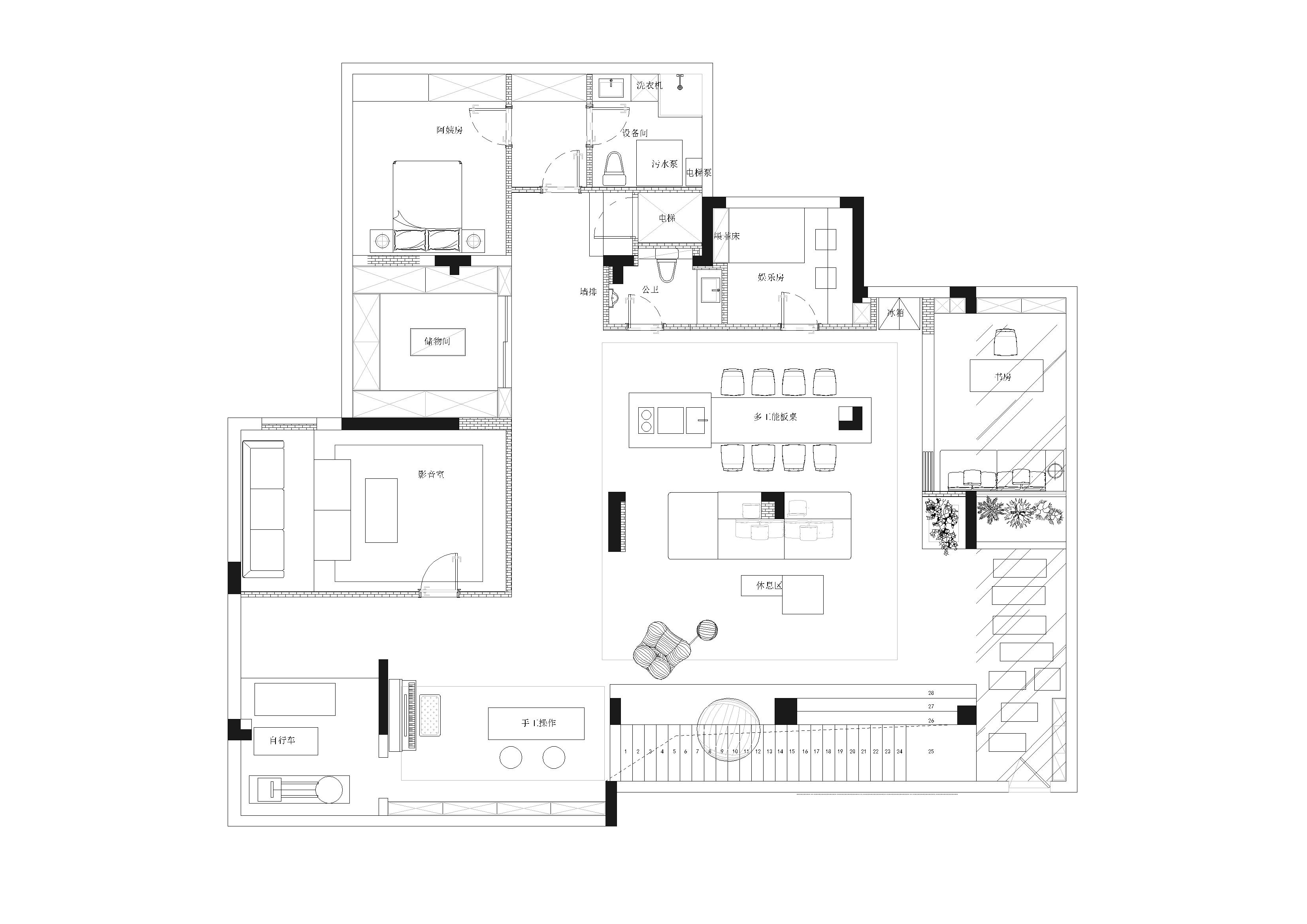
101号住宅
159
作品说明
项目类型:住宅公寓
项目地点:合肥市
建筑面积:240.0000㎡
项目造价:200.0000万元
主案设计师: 朱可
竣工时间:2023-5-10
金堂奖入围作品证书
项目定位:
以极简为理念载体,但不脱离生活。享受当下的烟火,抛却多余的繁杂。
空间意境:
将不同时期的现代理念与当代融合在一起。
空间布局:
保留了负一层的原始高度。舍弃掉利用率较低的隔层空间,提升生活与空间的品质
设计选材:
蛋壳光、原木、磨砂皮、PU、水泥构件
用户体验:
居住一年后,家里还是如设计图纸一般的干净,断舍离是一部分,完整的收纳及空间设计才是主要。
0
0
朱可
设计主理人
私信我
合肥市
工作地点
联系方式
15256046782
了解更多
易伽瑜伽
点击了解更多
301号住宅
点击了解更多
101号住宅
点击了解更多
304号住宅
点击了解更多