友好岛屿
236 - 项目类型:办公
- 项目地点:厦门市
- 建筑面积:799.0000㎡
- 项目造价:410.0000万元
- 参与设计师:陈全、王斌
- 竣工时间:2023年6月
- 设计机构:美格建筑装饰有限公司
-
项目定位:对新一代工作者而言,办公室正从“组织价值生产车间”,转变成“共同价值实现平台”。积极拥抱办公空间变革的新赛道,本案将“办公室”解读为:身份认同空间,不仅是一个灵感链接的设计现场、一个松弛社交的放映厅,也是一个自我气质的展现空间,让灵感与空间对话,让艺术“转译”品牌文字,以此实现身份认同,价值共生。
-
空间意境:(1)项目与海相邻,从空间划分、地面装饰、灯具形式到软装布置,巧妙利用了“海浪”元素,让“海风”具象为帆形结构,与环境形成呼应;
(2)尊重本地文化,在地特色建筑——闽南骑楼,在空间中以抽象的形式“重生”,成为一道闽南风情线。 -
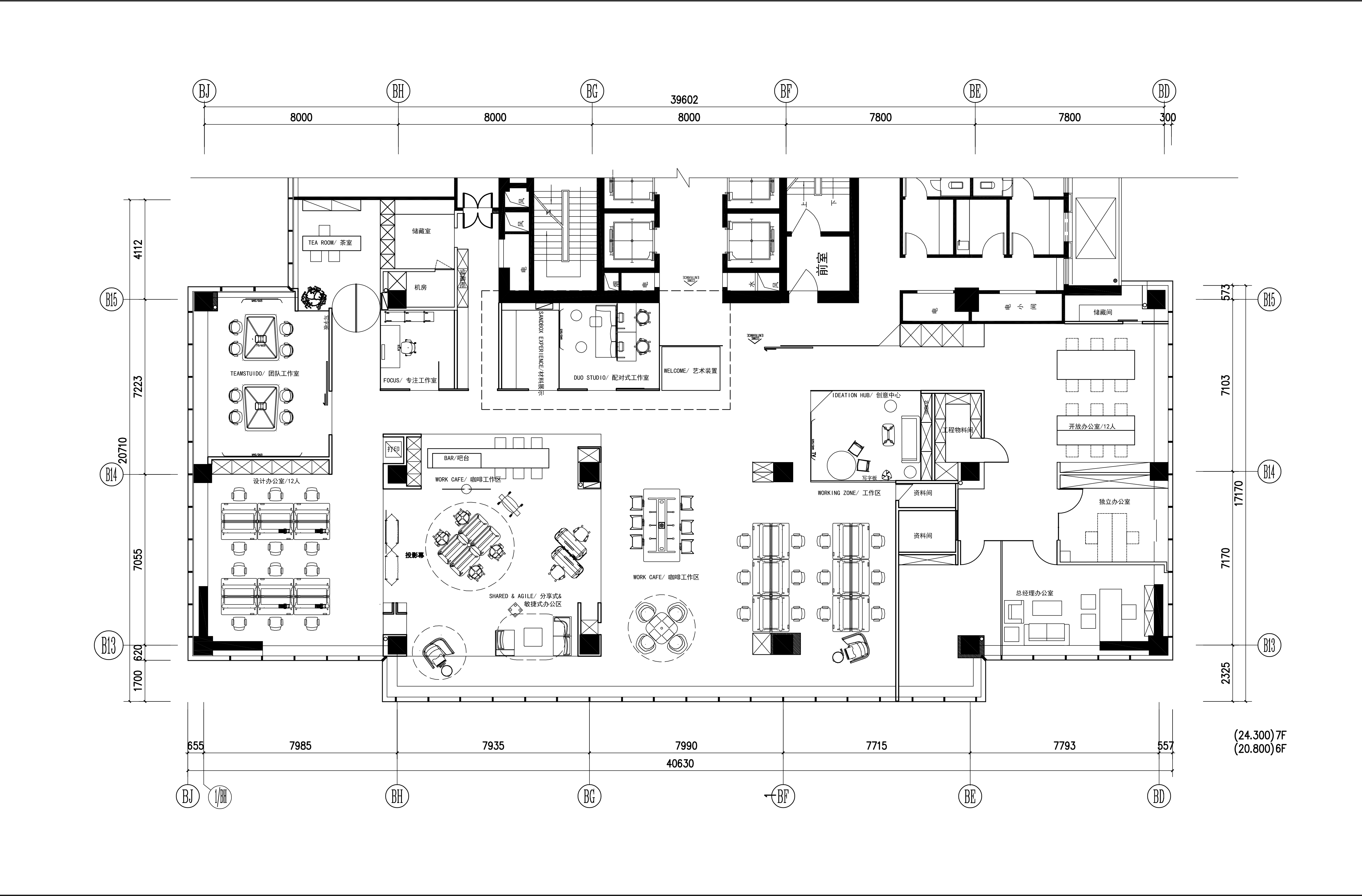
空间布局:(1)利用原建筑的结构柱子,结合“闽南骑楼”的建筑特色,呈现出的“悬浮岛”,赋予了骑楼的新样式、新功能,可办公、可休闲,是灵感创作中心,也是社交空间。
(2)通过包裹天花设施(消防管)“抬高”了视野,获得了更高的空间;顺势而为,包裹的构建也为灯具提供了支架,承载了空间的照明功能。 -
设计选材:(1)遵循“绿色办公”的理念,整个空间通过灵动的场地规划、节水净水系统等节能系统,以及后象水磨石、Gerflor洁弗乐塑胶地板、无胶式地毯、无机磨石等环保材料的使用,使办公室成为“节能减排的试验场”,让”可持续发展“充盈空间;
(2)空间使用的木饰面,以环保的水性油漆代替传统油漆,既保留了木材的天然质感,也有着自然的尊重和对未来的期待;
(3)办公桌椅选用Steelcase品牌,符合人体工学的设计,让办公更舒适、健康,同时搭配多种绿植,满目绿色自然,提升室内空气质量的同时,也成为了员工的“绿色疗愈岛屿”。 -
用户体验:工作是愉悦的、幸福的,办公空间早已告别了“工位+会议室”的冰冷模式。项目投入使用后,开放包容的办公形态、舒适健康的空间环境,既为员工提供了自由、丰富的办公空间和有温度的人文关怀,在这里获得事业成长、情绪价值,也成为了企业品牌展示的一张新名片、新窗口,设计师在这里充分展现创新力与创造力,行业伙伴在这里思想碰撞、松弛社交,打开了“友好办公”的更多可能。
整个办公空间的中心,用四根柱子搭起来一座“悬浮岛”,增强了高效性与艺术性。
遵循“绿色办公”的理念,使用后象水磨石、Gerflor洁弗乐塑胶地板、无胶式地毯、无机磨石等环保材料,让办公室成为“节能减排的试验场”。
大量的镜面,形成“镜像”,取意设计师所坚持的“观照万物,保持自省”,在虚幻中“求真”,让美学回归本真。
入口处的《下雨啦》艺术装置,是入选第十四届全国美展的作品,快乐的小女孩,成为“情绪的入口”。
镜面的运用,让视野得以延展,重构动态的平衡之美,是镜,也是境。
汉字“美”变形之后,像相机的镜框,又像一扇连着一扇的门,让“美”层层递进、循序渐进。
开阔的休闲空间,可以洽谈会客,也可以松弛社交。
符合人体工学的桌椅、空气净化系统、独立空间等人文关怀,让环境更舒适健康,办公桌椅选用Steelcase品牌,让办公更舒适、健康。
宽敞的过道,体现开放、包容和可能性,让办公室从“理性空间”,转入“青年友好空间”。
原有柱子改造成艺术品的容器,增加视觉享受。
眼前有风景,身后有伙伴,“浓淡两相宜”。
从空间划分、地面装饰、灯具形式到软装布置,巧妙利用了“海浪”元素,赋予空间自由与创造力。
通过包裹天花设施(消防管)“抬高”了视野,获得了更高的空间。也为灯具提供了支架,承载了空间的照明功能。
公共办公区的置物台与书写白板融合,方便收纳、头脑风暴。
开放型会议室疏密有章、动静相宜。
会议室的桌椅,虽外表平静,内心实则包含着生机暗涌的张力,就像一个暗涌的源泉,让灵感之力源源不绝、生生不息。
过道的绿植,多了一抹绿色盎然,让办公空间成为了员工的“绿色疗愈岛屿”。
茶室的“弧形”天花,与“海浪”呼应,用工艺造环境,也造心境。
平面图
0
0

认证 · 让您身份增值