生长之境
326
作品说明
- 项目类型:别墅
- 项目地点:厦门市
- 建筑面积:380.0000㎡
- 项目造价:350.0000万元
- 参与设计师:王斌、苏树杰、盛志飞
- 竣工时间:2024年6月
- 设计机构:美格建筑装饰有限公司
-
项目定位:尊重地域文化,项目取形闽南常见的“爬山虎”,营造了一个融合自然与闽南文化元素、充满生机与个性的居住空间,让消极的空间(如盘旋向上的楼梯)积极起来,让居者沐浴在风与阳光的舞台中,像爬山虎一样自然生长。
-
空间意境:结合海滨城市的气候特点,通过天井,把户外的阳光与空气引到家中,上接天气,下临地气,让气息流动,让视野通透,人与自然,和谐相处。
-
空间布局:(1)家,是精神的归属。以垂直交通为结合点,通过盘旋的楼梯联通各层的功能分区,并在楼梯夹层处安排阅读角,提升了空间利用率,也为业主提供了一处“精神的角落”“心灵的栖息地”,于此翻开一页书,便是翻开一页生活。
(2)空间是光的容器,本案充分利用了挑空处的层高和天井的自然采光,让人与自然产生“光合作用”,温暖的、质感的生活场景,在空间肆意洄流。 -
设计选材:一方面,考虑闽南的风俗审美,在营造“阁楼”“天井”等空间时,就地取材当地瓷砖,让建筑也能开口说“闽南话”;另一方面,考虑周围环境和景观,从大自然中”搬运“而来的天然石材,巧妙融入空间中,并使用环保涂料、黑钛钢等多种环保材料,让建筑成为有温度的家,而不是有色温的材料堆砌。
-
用户体验:“藤蔓之后是吾家”。设计空间,其实是在设计生活,正如业主所说:”当心中向往的家,从图纸变成现实,回家也多了一种满心欢喜的期待”。项目投入使用后,家的内核也像爬山虎一样,在空间中生根发芽,愈发坚实、丰富。不仅收藏了一家人的岁月,也成为了圈子的“社交客厅”,邻里、朋友、伙伴欢聚于此,是会客、互动、展示、交流、分享的“聚场”,赢得业主及业主朋友的赞赏,为闽南风格的私宅设计提供了有益参考。
“藤蔓背后是吾家”,阳光下的树影,让建筑有了四季、有了表情。
盘旋的楼梯,取形“爬山虎”,向下扎根,向上生长。
负一层的茶室视野开阔,平衡了自由、艺术与功能性。
整面墙体嵌入百宝格书架,大尺寸的茶桌,让空间更有“漫游感”。
不同于平铺直叙的直白、刻板,迂回的动线在视觉上创造了互相对望的远近上下,柔婉又庄重。
使用环保涂料、黑钛钢等多种环保材料,让建筑成为有温度的家,而不是有色温的材料堆砌。
“人有所归,心有所栖”,一方茶室,偷得浮生半日闲。
用简约线条做比例分割与层次点缀,呈现几何美学。
”骋目游心”,负一层茶室是社交的“聚场”。
楼梯的转角打造了阅读角,会客、互动、展示、交流、分享都可以在这里主动发生。
以垂直交通为结合点,通过盘旋的楼梯,联通各层的功能分区,并在楼梯夹层处安排阅读角,为业主提供了一处“精神的角落”“心灵的栖息地”。
盘旋向上的楼梯,是“古与新”的前沿体验,一边负责上下层的链接,一边担当平行空间的切割,让独立个体与整个场域达成自然的平衡。
楼梯间的原石和绿植,让消极的空间积极起来。
向上的楼梯,指引下一处风景。
客餐厅一体化流畅,无主灯的吊顶,体现着删繁就简的生活哲学。
装饰画、摆件等艺术品丰富了餐厅的语言,让艺术抵达生活。
窗外有景,室内有风,生活闲适有度。
卧室选用回归简单的材质与元素,静谧的色调让人放松心情。
充分利用了挑空处的层高和天井的自然采光,让人与自然产生“光合作用”。
露台是生活的舞台,解锁美好生活的更多想象。
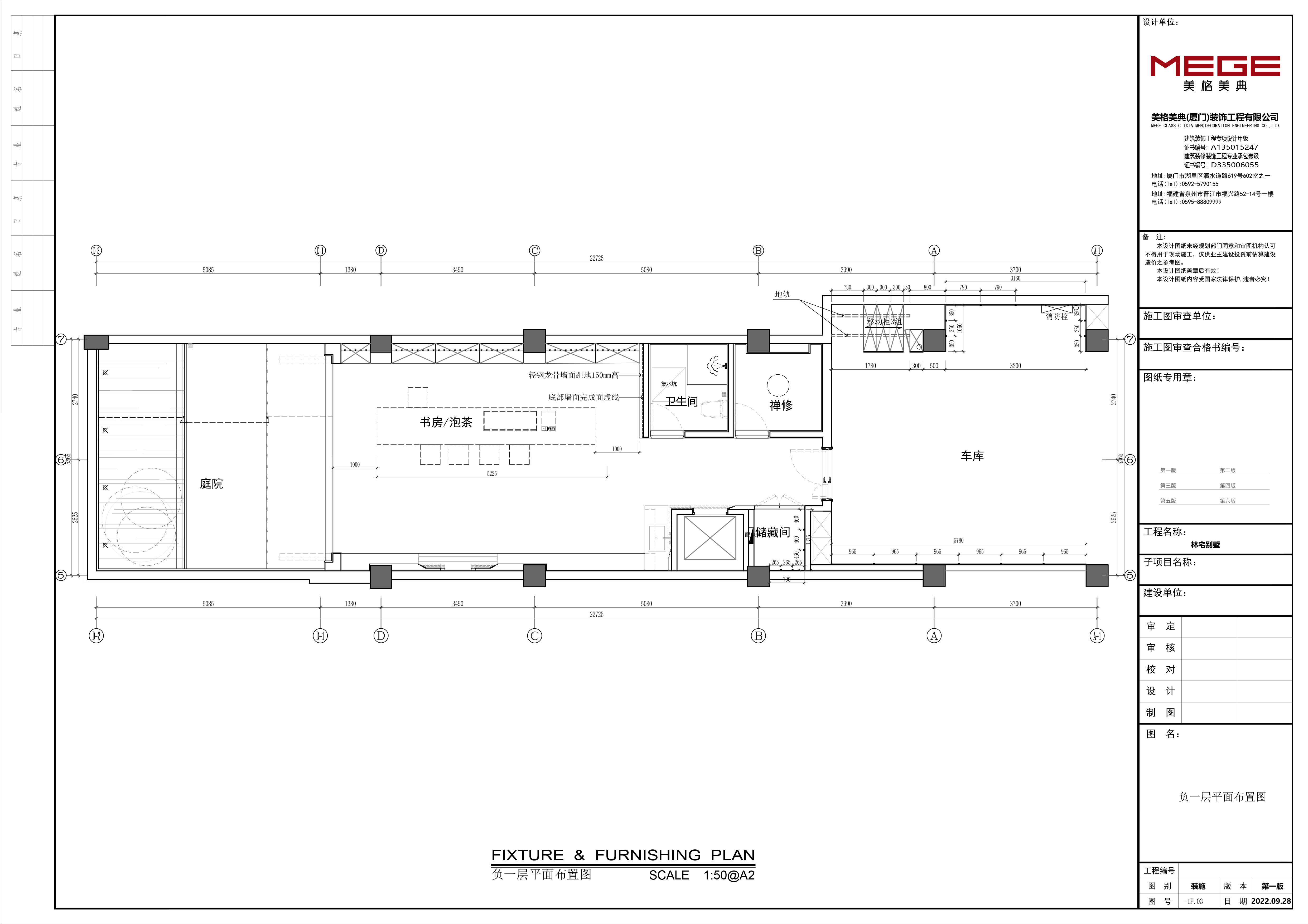
地下一层平面图
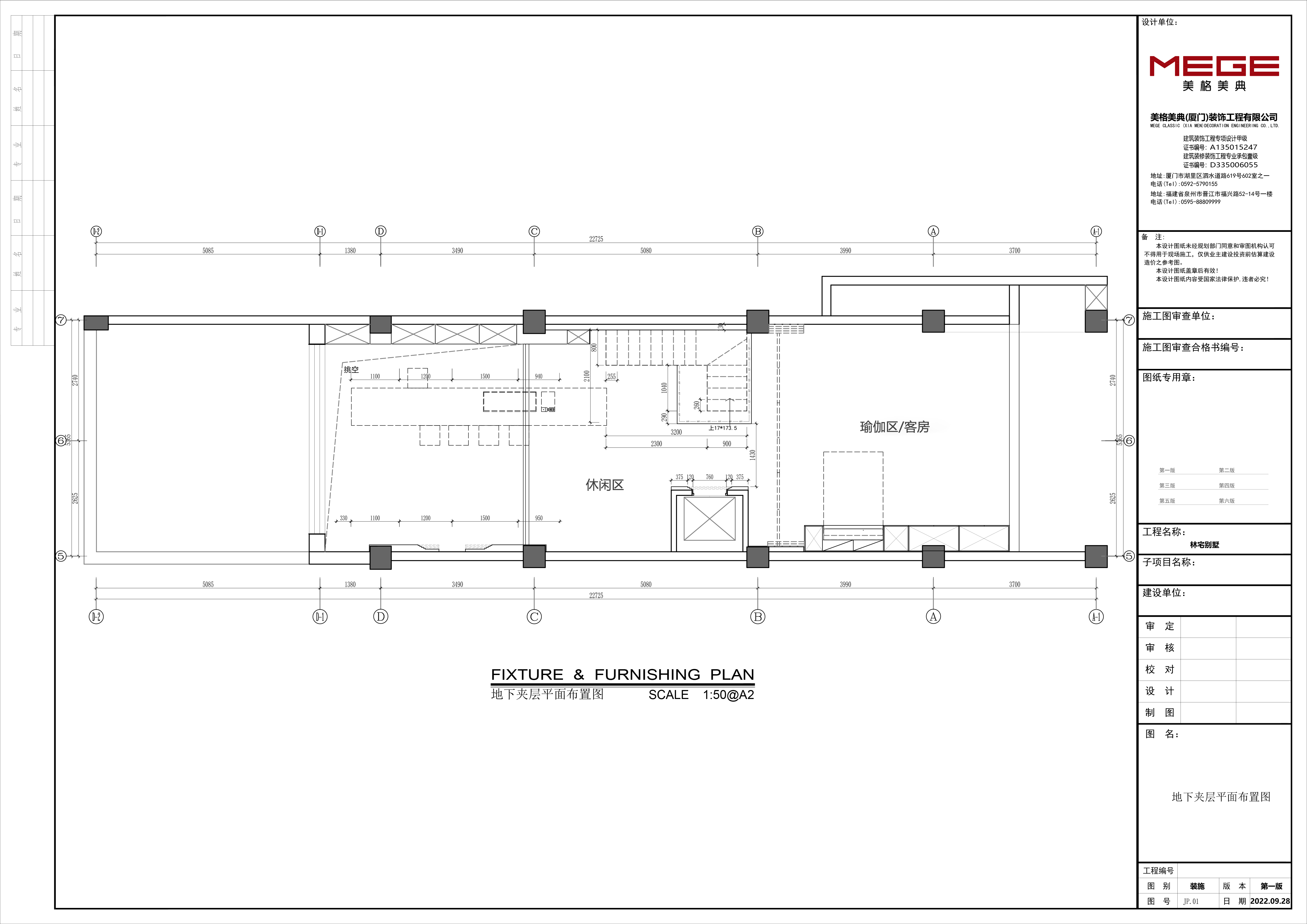
地下夹层平面图
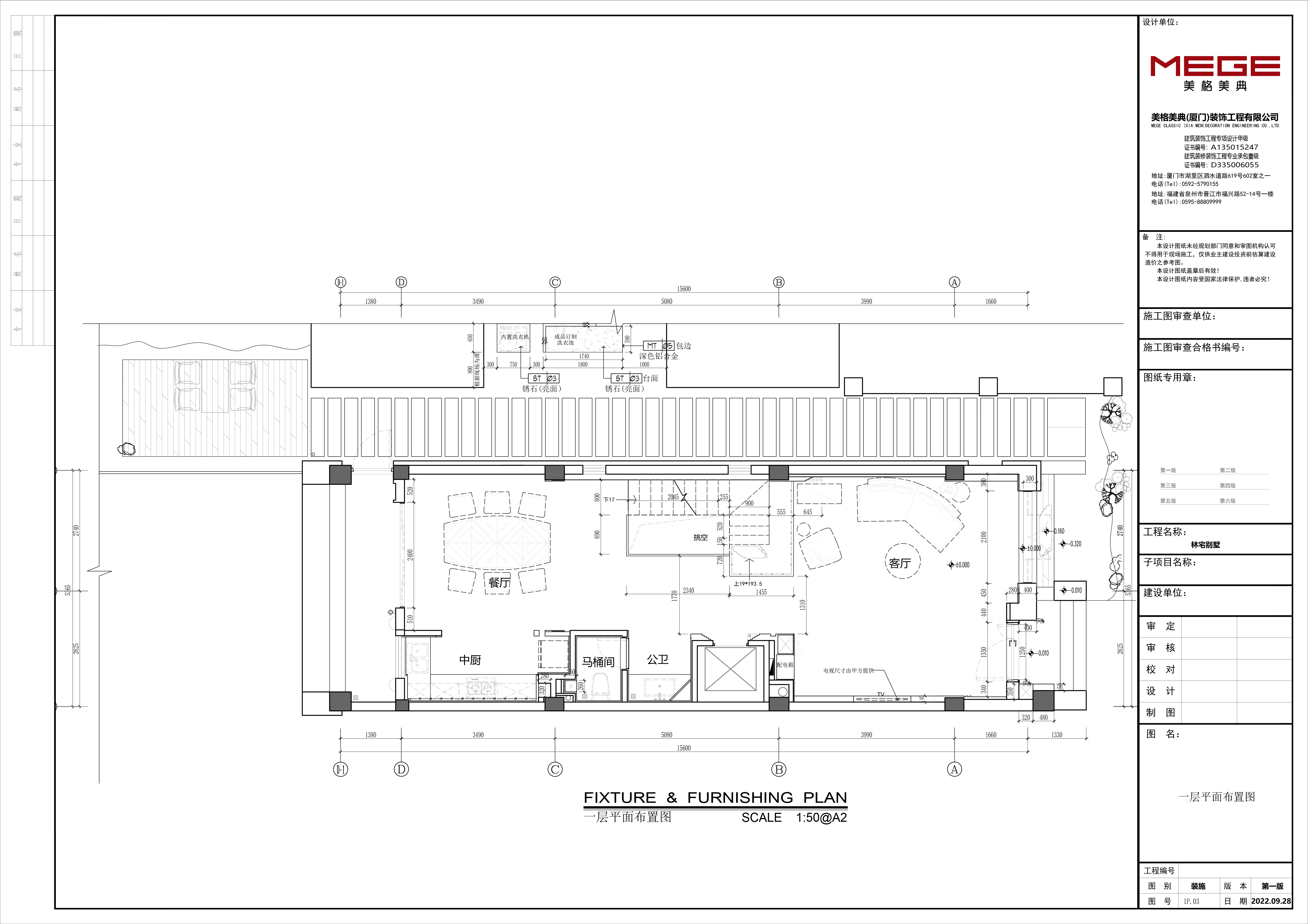
一层平面图
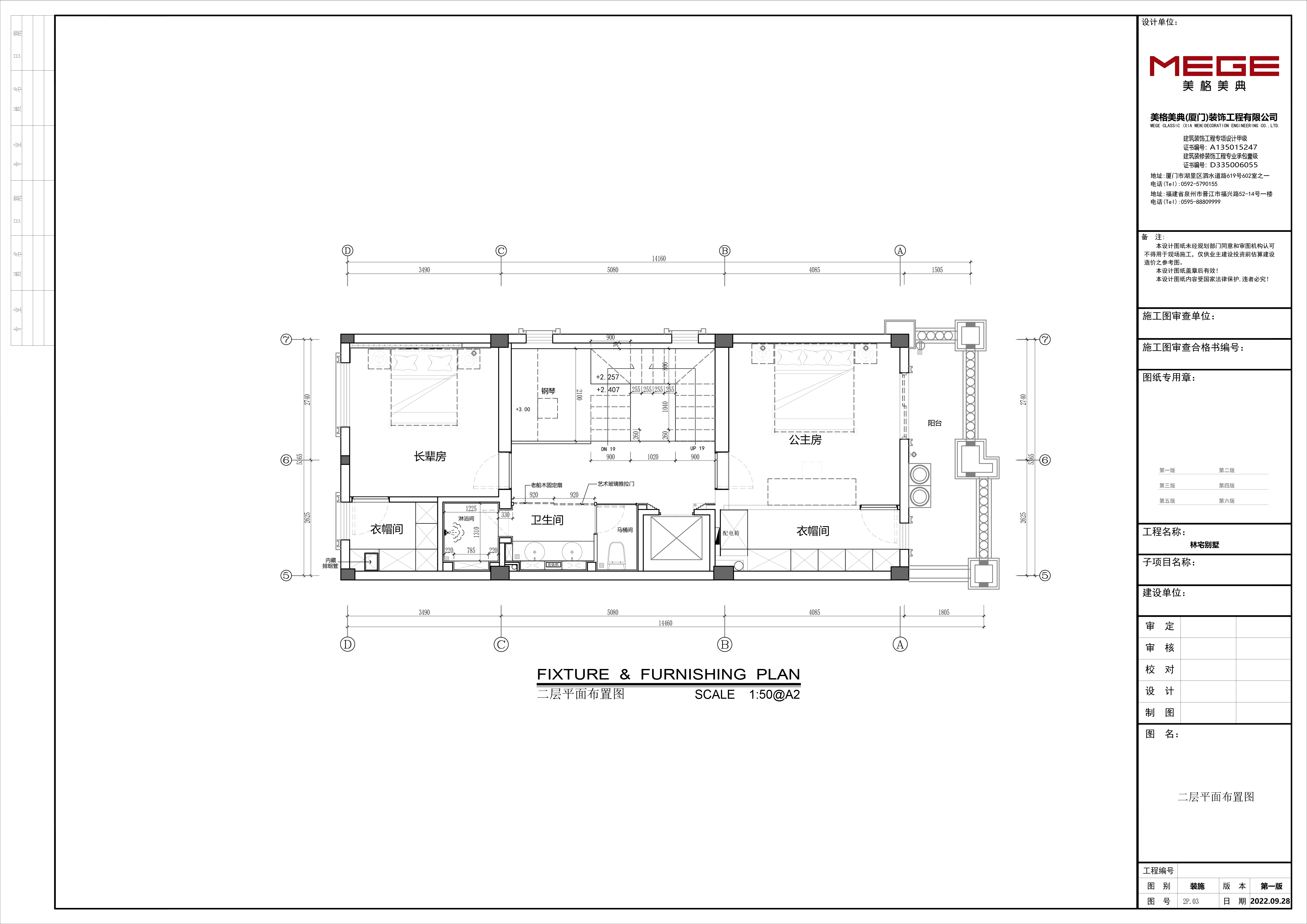
二层平面图
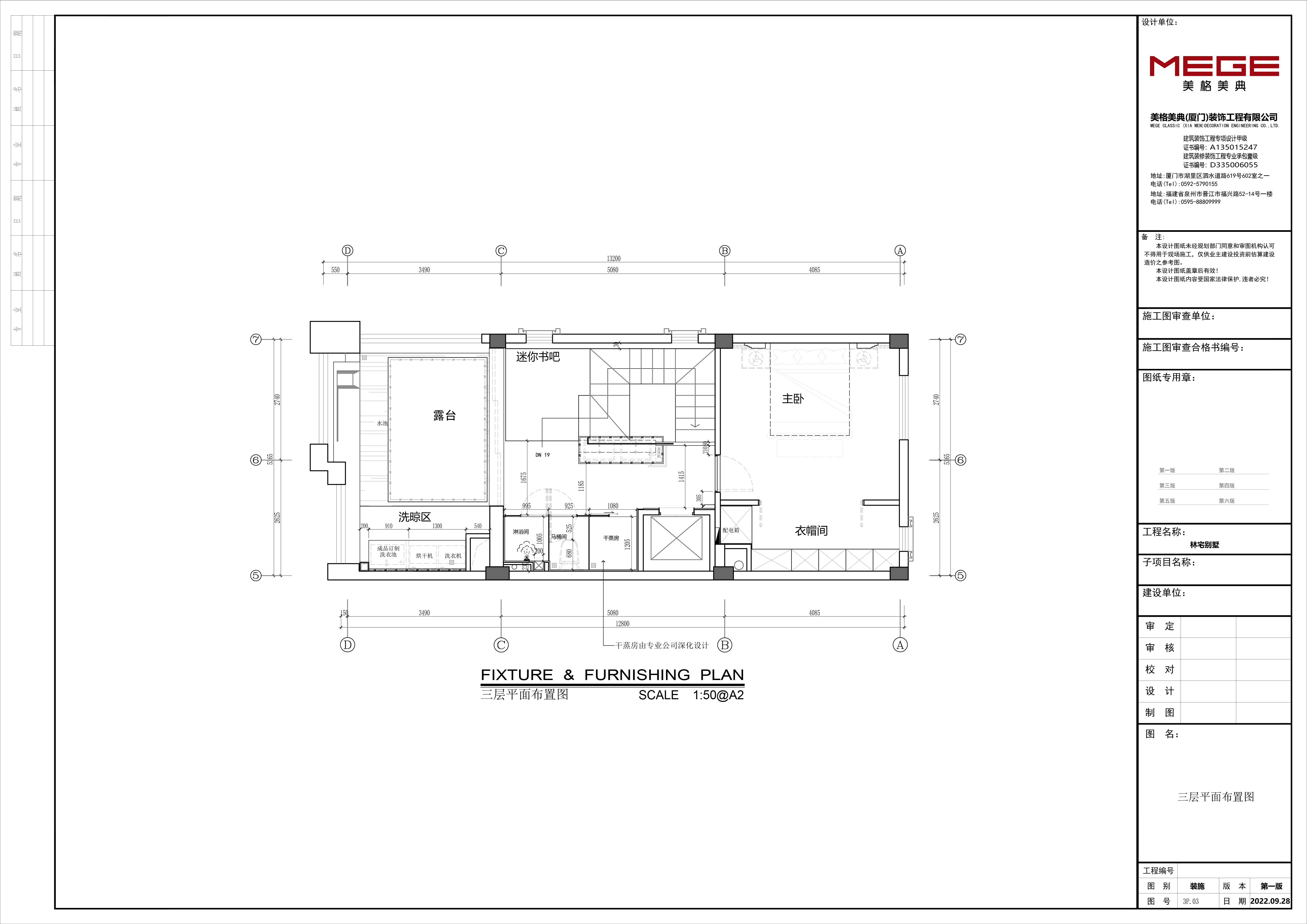
三层平面图
0
0

认证 · 让您身份增值