华府佳苑


作品说明
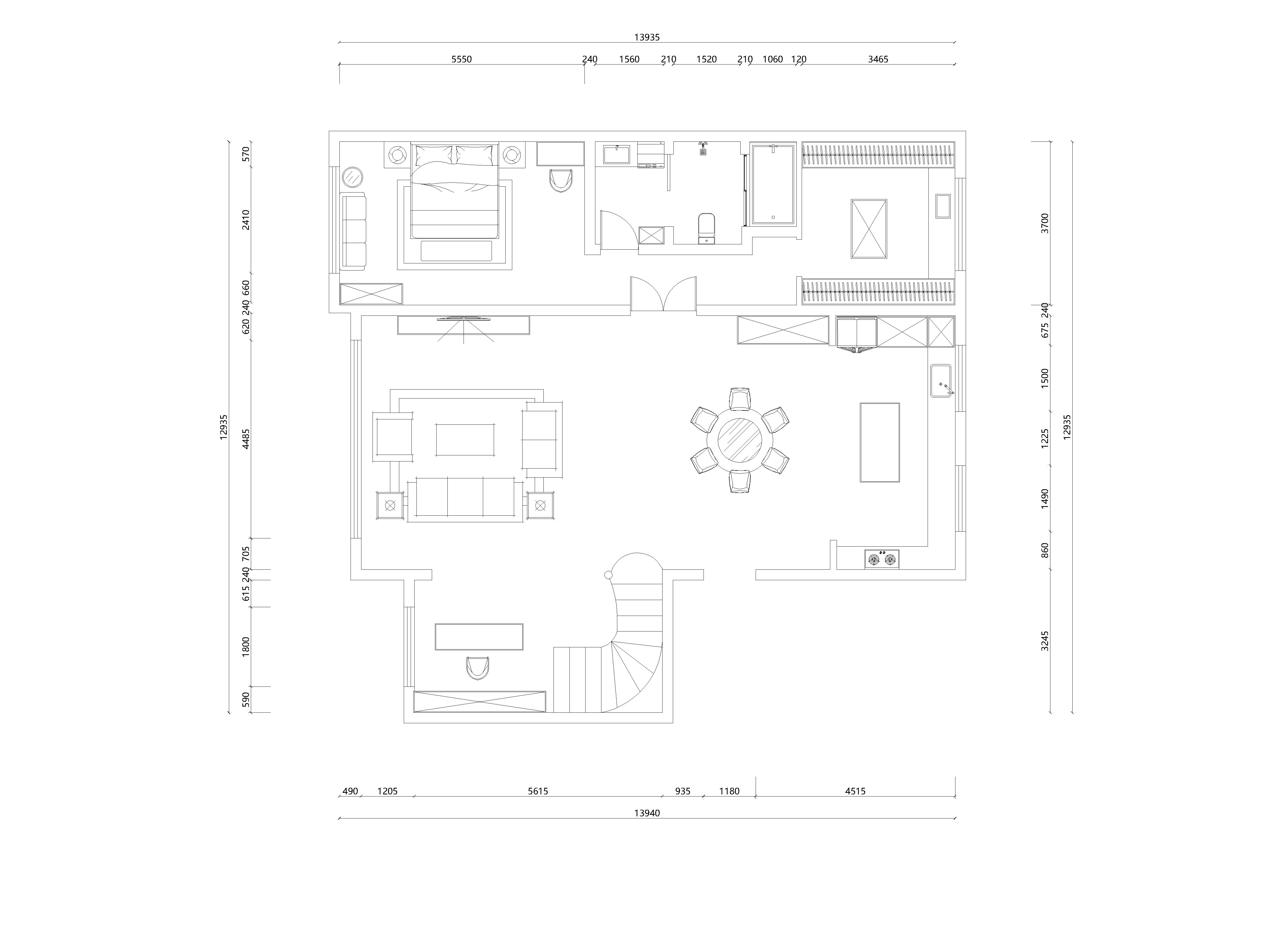
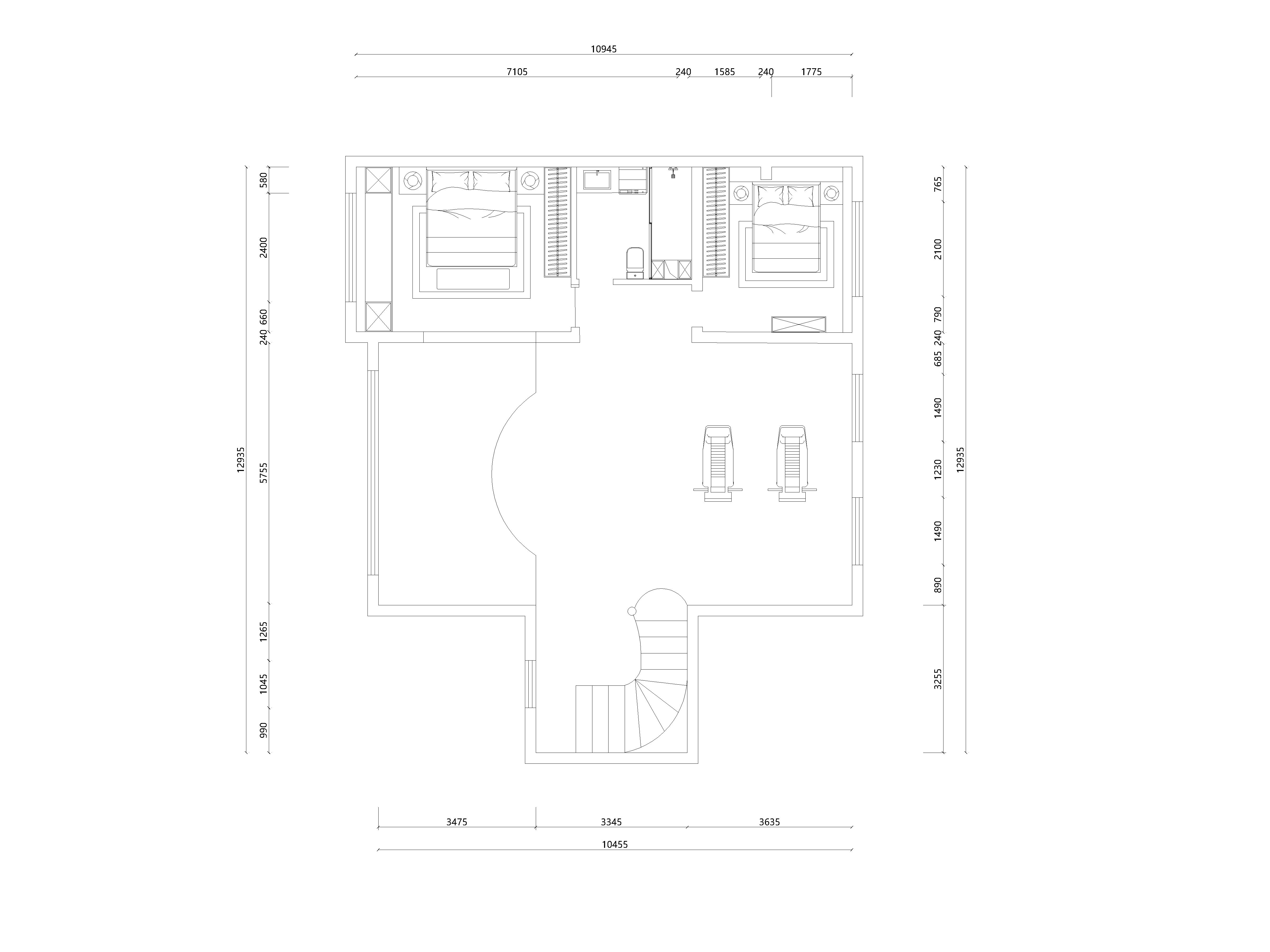
- 项目类型:别墅
- 项目地点:长春市
- 建筑面积:340.0000㎡
- 项目造价:220.0000万元
- 主案设计师: 张晋博
- 竣工时间:2024-10-20
-
项目定位:美式设计风格以其舒适、自然和传统的特点,深受现代人的喜爱。这种风格不仅注重实用性,还强调家庭氛围和历史感,使其在众多装修风格中独树一帜。
-
空间意境:美式设计风格的核心在于舒适和实用,同时兼顾传统和历史感。客厅作为家庭的核心区域,应选择大尺寸的舒适沙发和扶手椅,搭配柔软的靠垫和薄毯,营造温馨的家庭氛围。实木家具和细节雕刻,如古典造型的茶几、边桌和装饰柜,是美式风格的重要元素。。餐厅设计则强调传统的用餐氛围。选择大型的实木餐桌,搭配舒适的餐椅或长椅,摆放精致的餐具和装饰品,如花瓶、蜡烛台等,营造温暖的用餐环境。古典风格的吊灯或吊饰灯,不仅提供充足的光线,还能增添艺术氛围。
-
空间布局:美式风格的空间布局强调宽敞与舒适。首先,客厅作为家庭的核心区域,通常会布置宽大舒适的沙发,留出足够的活动空间。这种设计不仅满足了日常生活的需求,也为家庭聚会提供了充足的空间。此外,美式风格偏爱开放式的厨房设计,使厨房与餐厅、客厅连为一体,增强了家庭成员之间的互动。在硬装方面,美式风格相对简单,主要通过格局和布局的规划来实现空间的实用性。不同于法式风格对硬装的精细要求,美式风格更注重软装和家具家电的搭配。因此,在装修预算上,软装和家具占据了较大比例。
-
设计选材:美式风格的家具多以实木为主,常用的木材包括樱桃木、桃花木、松木和枫木等。家具表面常采用色泽深沉的油漆进行涂刷,并精心雕刻,突显其古典色泽和质感。家具的造型粗犷大气,同时保留优雅的曲线和对称的形状,如华丽的枫木滚边、胡桃木的镶嵌线、扭扣般的手把以及模仿动物形状的家具脚腿造型等。卧室设计注重功能性和实用舒适度。选择大尺寸舒适的床,搭配柔软的床垫和床品,使用厚实的窗帘营造温馨和私密的睡眠环境。书房设计则强调宽敞舒适的工作和阅读空间,配备大型的书架或书柜,摆放书籍、文件和装饰品,展示个人爱好和风格。
-
用户体验:1.客厅体验:美式风格的客厅通常简洁明快,使用大量石材和木饰面装饰,营造出宽敞而富有历史气息的空间。住户在这里可以享受到自在、随意的休闲时光,同时也能感受到美式风格的独特魅力。
2.卧室体验:卧室作为私密空间,布置温馨舒适,以功能性和实用舒适为考虑的重点。美式风格的卧室一般不设顶灯,多用温馨柔软的布艺来装点,营造出宁静的睡眠环境。
3.厨房体验:美式风格的厨房通常开敞,便于家庭成员之间的交流。厨房内配备有功能强大又简单耐用的厨具设备,如残渣粉碎机和烤箱等,同时也有足够的操作台面和容纳双开门冰箱的宽敞位置。
4.书房体验:书房简单实用,但软装颇为丰富。各种象征主人过去生活经历的陈设一应俱全,桌子上的茶具摆件这些装饰品为书房增添了美式风格的气息。
5.家庭室体验:家庭室作为家庭成员休息交流的中心,一般设于餐厅旁,设有电视机,沙发和座椅选择轻松明快的式样,室内绿化较为丰富,装饰画较多,为家庭成员提供了一个温馨的交流空间。

