午后微风
291
作品说明
- 项目类型:住宅公寓
- 项目地点:大连市
- 建筑面积:467.0000㎡
- 项目造价:100.0000万元
- 主案设计师: 孔祥雪
- 竣工时间:2022年
-
项目定位:微风拂过的午后,干净的家居和宽阔地板,在楼梯跑上跑下,会成为家中小朋友童年回忆的一部分。
-
空间意境:这是一个下跃三层的家, F1的会客室和厨房使用了大面积的海洋板材质,虽简单但清爽,是看一眼就忘不掉的舒服为了配合这份自然感,
家居选用了来自法国Roche bobois的blogger翠绿色沙发,蓝色和米色条纹相间来自意大利的UP5-6单椅,绿色Tradition Flowerpot吊灯,薄荷绿色的超薄钢板楼梯,它们和海洋板组合,让居住在水泥房子里的我们更加舒缓闲适。
-
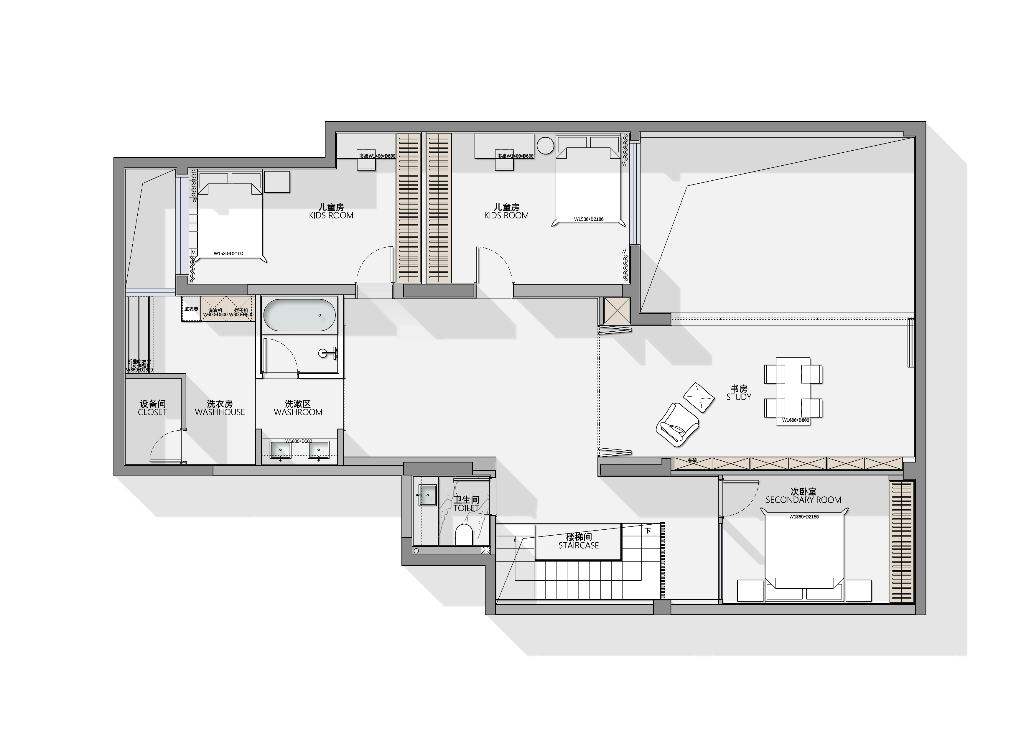
空间布局:F2是两间次卧和书房,充分利用了南北向的天光安排卧室会非常明亮。
F3是儿童游乐区和大大的休闲区,我们保留了天窗,坐在沙发上可以安静的仰望蓝天,全家人可以一起在星空下观看老电影
-
设计选材:“钢板、原木、海洋板”这个家使用的材质自然又清新。这个家的空间足够大,因此运用简单耐看的材质。不会显得臃肿,也更环保。
-
用户体验:业主很满意这个家。打开院子的推拉门,午后微风来到家中,睡醒后的阳光中漂浮着点点颗粒,如果你在这里,就会想要好好生活。
0
0

认证 · 让您身份增值