雅痞男士理发馆


作品说明
- 项目类型:零售
- 项目地点:唐山市
- 建筑面积:150.0000㎡
- 项目造价:40.0000万元
- 主案设计师: 徐磊
- 竣工时间:2023.12
- 设计机构:下上空间(上海)
-
项目定位:溶洞风格男士理发馆的设计理念源自自然界的溶洞景观,旨在为顾客营造一种神秘、宁静且独具风格的理发环境。通过模拟溶洞的自然形态,我们希望为顾客提供一种独特的感官体验,让他们在享受理发服务的同时,感受到自然的宁静与和谐。
-
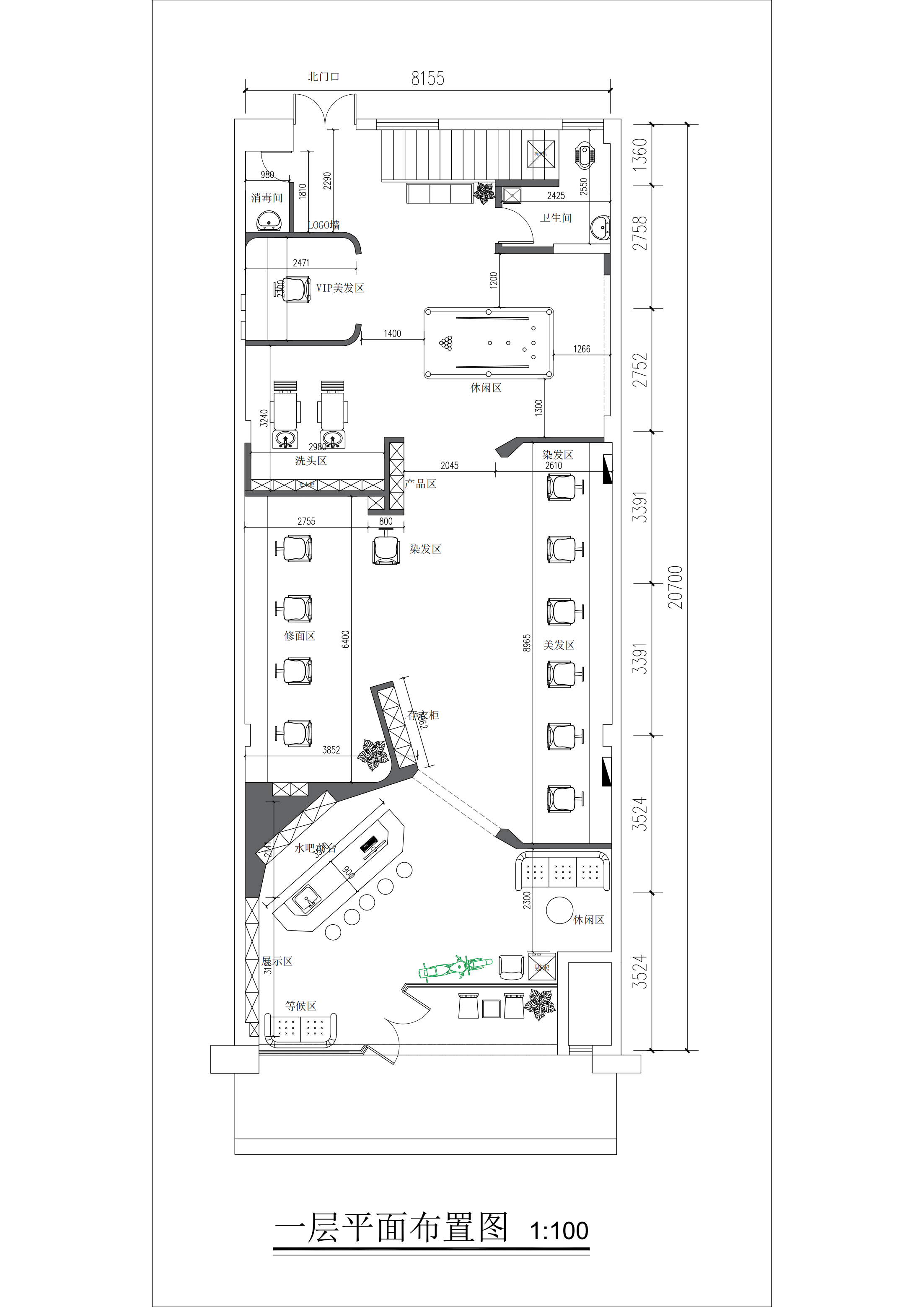
空间意境:理发馆总面积为150平方米,分为接待区、理发区、按摩区和休息区。接待区设于入口处,配有前台和等待区,提供舒适的座椅和杂志以供顾客等待时阅读。理发区设有8个理发位,每个位置之间以屏风分隔,保障顾客的私密性。按摩区设有2个按摩床位,提供头皮按摩服务。休息区设有沙发和茶几,让顾客在等待或理发后能够放松休息。
-
空间布局:室内设计采用了溶洞风格的元素,墙壁和天花板模仿溶洞的形态,使用石膏板和涂料制作出岩石和钟乳石的效果。地面采用深色大理石瓷砖,与墙面形成鲜明的对比。灯光设计采用暖色调的灯光,营造出温馨舒适的氛围。
-
设计选材:家具选择了简约而舒适的款式,包括皮质沙发和木制茶几,与溶洞风格的室内设计相得益彰。装饰方面,选择了具有现代感的艺术品和植物,增加了空间的艺术气息。
-
用户体验:此设计不仅考虑到了功能性和舒适度,还注重了美学和创新性,力图为顾客提供一种独特且难忘的理发体验。

