遇见西餐厅
148
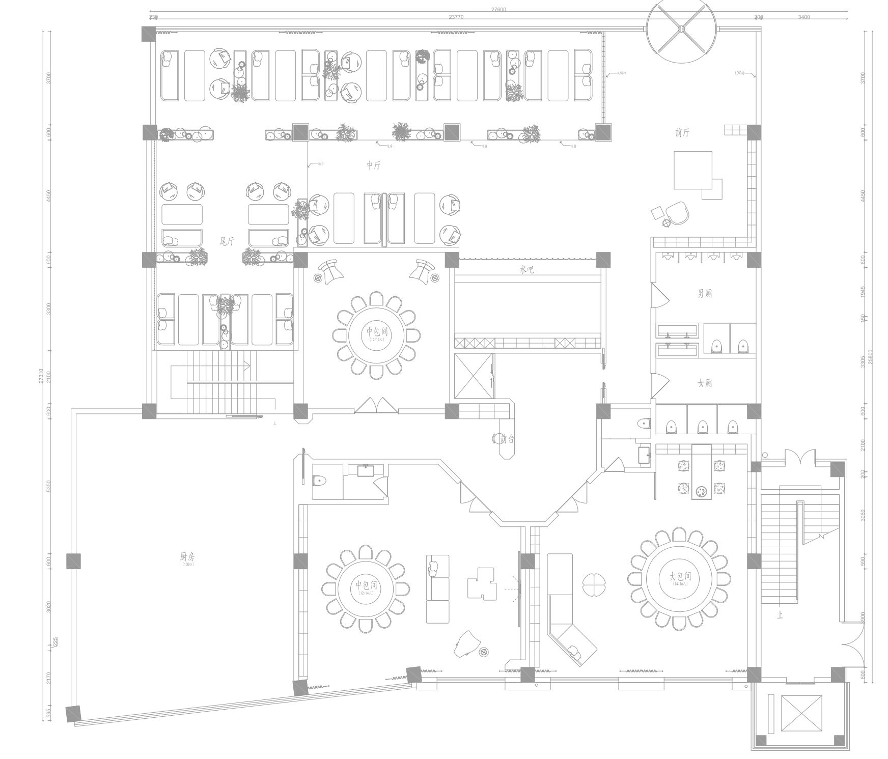
作品说明
- 项目类型:餐饮
- 项目地点:唐山市
- 建筑面积:690.0000㎡
- 项目造价:80.0000万元
- 主案设计师: 徐磊
- 竣工时间:2023.8.12
- 设计机构:下上空间(上海)
0
0

认证 · 让您身份增值