-
项目定位:该项目是一套45平米的小户型学区房,业主是精致日料的店主,目的是为陪伴孩子学习提供优质的居住环境,同时追求审美与实用的平衡。业主偏爱复古风格,对细节与色彩的敏感度极高,因此设计以“温暖、复古、精致”为核心主题,结合现代优化的功能布局,打造一个兼具舒适感与高品质生活的空间。
-
空间意境:设计注重整体环境氛围的协调,以复古元素为基础,结合现代材料和工艺,展现出经典与现代并存的美感。通过灯光、家具与软装的搭配,在空间中营造了以下亮点:
拱形窗洞和柱式设计:拱形元素作为贯穿整个空间的复古符号,与罗马柱设计相得益彰,增添立体层次感。
色彩搭配:采用温暖的米色与木色为主调,点缀深色家具与黑白图案的软装,如棋盘格花瓶和条纹床品,为复古风格注入现代活力。
细节装饰:墙面的艺术画、手工纹理的抱枕、复古灯具和手工陶瓷花瓶等装饰件,赋予空间更强的艺术性和生活气息。 -
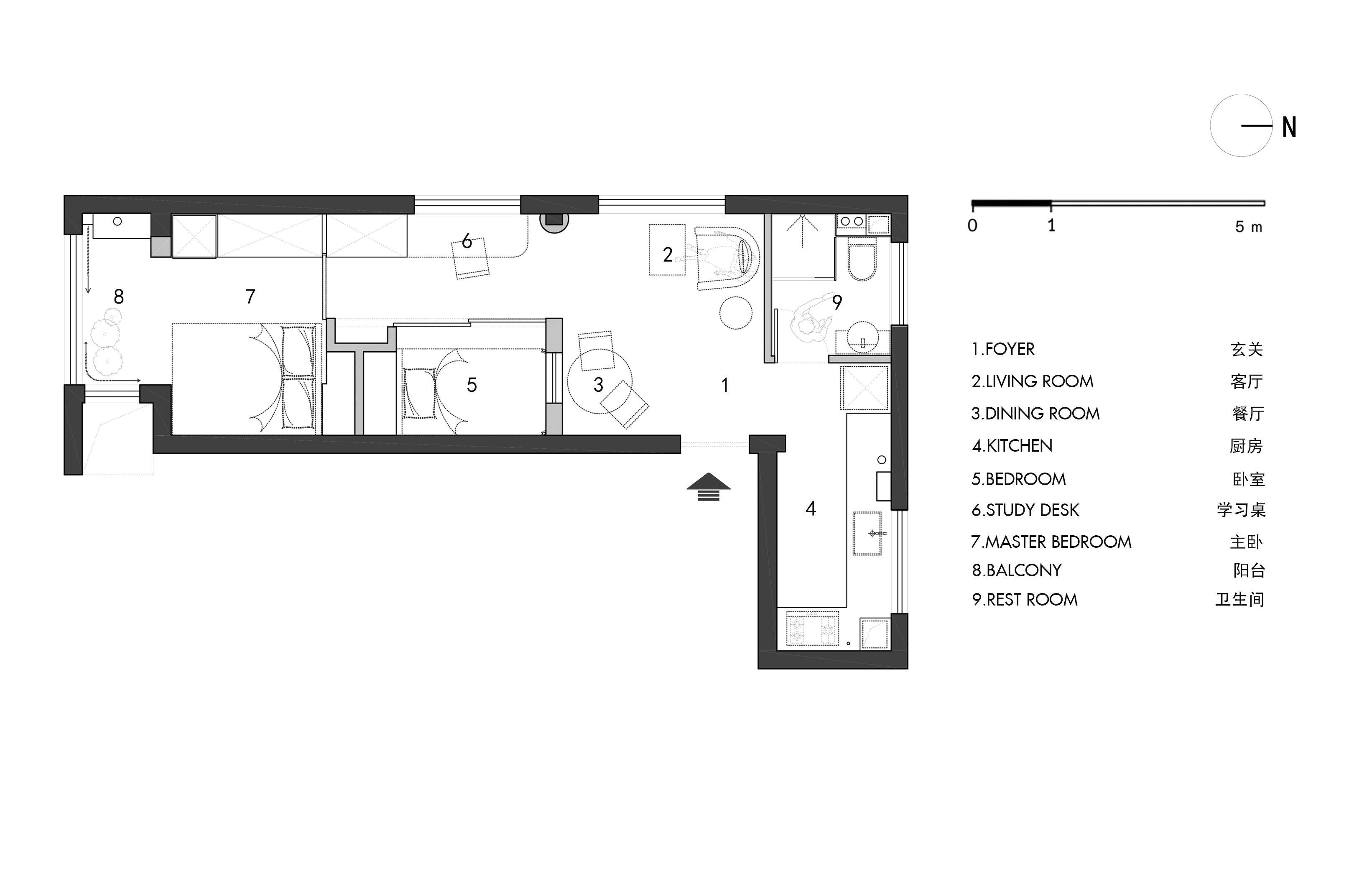
空间布局:在空间有限的情况下,本次设计重新调整了原始平面布局,为满足功能与审美需求进行了大胆优化:
开放式空间连贯性:通过移除原有部分隔墙,使客厅、餐厅、学习区形成一个开放的连续空间,同时保留必要的私密性。
多功能分区:在有限的面积中实现了学习区、会客区、休憩区和储物区的功能划分,并通过巧妙的家具布置实现空间的高效利用。
卧室与学习区的联动:主卧与学习区之间通过滑动门分隔,既能在需要时保持开敞通透,又能满足安静的学习需求。
储物功能优化:通过定制储物柜和隐藏式设计,最大化空间利用率,解决小户型常见的收纳问题。 -
设计选材:通过大品牌与本地工艺结合,选择性价比高的织物与装饰品,实现高品质的视觉效果。
-
用户体验:“满足了我的所有期待,非常满意”

