-
项目定位:本项目是一个性质为临时居停的住宅空间,强调功能性与审美的高效统一。
在空间上强调开阔且通透,我们试图忘记用轴线处理空间秩序的手法,而是把功能分区体块化,并处理各个体块之间的进退关系,使空间错落有致进而实现室内分隔的流动性和连通性。在视觉语言上选择意式极简的意向,因为它融合了极简主义的清晰和简洁,同时也借鉴了意大利传统的精致工艺和对材料的精心选择。所以我们在处理饰面时减少了复杂多余的装饰,选择使用优质、自然且质感出众的材料。以此实践在极简的形式中寻找到实现功能和审美的平衡点,达到在有限的表达中蕴含无限的可能和丰富的层次。 -
空间意境:这个住宅设计的创新之处在于它如何将空间感与现代极简主义相结合。设计师巧妙地使用了流畅的线条和简约的色彩搭配,营造出宽敞、明亮的生活空间。特别是超大洄游卫生间的设计,不仅强调了空间的实用性,同时也体现了对美学和舒适性的追求。这种设计理念在现代居住空间中较为罕见,展示了独特的创新和个性。
-
空间布局:在这个作品的空间布局上,创新点体现在有效的空间利用和流畅的布局设计。特别是超大洄游卫生间的设计,它不仅提供了充足的功能空间,还通过精心的布局增强了整体空间的流动感和开放性。这种设计既满足了实用需求,又在视觉和感官上提供了舒适和优雅的体验。
-
设计选材:设计师选择了环保材料,这不仅减少了对环境的影响,也体现了低碳生活理念。同时,材料的选择还考虑了成本效益,以确保设计既经济实惠又具有高质量。这种平衡在现代设计中非常重要,既体现了对环境的关怀,也满足了实际使用需求。
-
用户体验:“设计兼顾了美观和实用性,创新的空间布局和精选材料提供了高品质的生活体验。”
墙体采用木质和岩板的组合,以保持现代感和温暖感的平衡。
开放式的客厅区域以清晰的线条和中性的色调为特点,提供宽敞感的同时,突显出低调的奢华感。
楼梯的主体饰面选用了深灰色微水泥,这一大胆的色彩选择不仅为空间带来了强烈的现代感,也在视觉上成为了一个吸引注意力的焦点。
精选具有现代设计感的意大利传统品牌Casa Lago的Sand 沙发,强调简洁线条和舒适体验。
踏步斜置的方式让楼梯富有雕塑感
以极简为核心,通过精致的材料、考究的工艺、和有节制的色彩运用展现了意式极简的魅力。
上方的吊灯以黑色、极简的长条形式出现,与餐桌的长度方向平行,不仅充分照亮了餐桌区域,也延续了整体设计的简洁线条美学。
主卧套房融合了极简主义与流畅动线的设计哲学,通过两个主要的环形动线,打造出一个既私密又开放的空间体验。
卧室的环形动线,确保睡眠区域的私密性与便利性兼得。主卧的墙面和顶面采用了肌理艺术漆并且与地板的交接处采用无踢脚线处理,这不仅体现了严谨的工艺,同时也保持了空间线条的整洁和连贯。
超长的双盆洗手台与梳妆台被设计成等长并面对面的布局,它们分别采用了纯白材质和木质桌面,形成了一种材质上的对话。这两个区域通过长条镜面和通高镜面相互映照,实现了一种空间的无限延展感,同时也为使用者提供了极致的便利。
马桶间与淋浴间两个区域的格局尺寸被设计成完全对称,并通过对称美学,带来了一种平衡的视觉享受。
嵌入式玻璃扶手的使用保持了空间的通透感,破解了黑色可能带来的沉闷感。透明的玻璃扶手在搭配上黑色主体时,使得楼梯间在视觉上更为轻盈和飘逸,与极简主义的理念相辅相成。
我们尽量将自然元素融入到室内,无论是通过自然材料的使用,还是通过窗户引入自然光线,都让居住者能够感受到自然的温暖和舒适。
所有的设计决策都围绕着如何在有限的空间里,实现功能的最大化与审美的最优化。
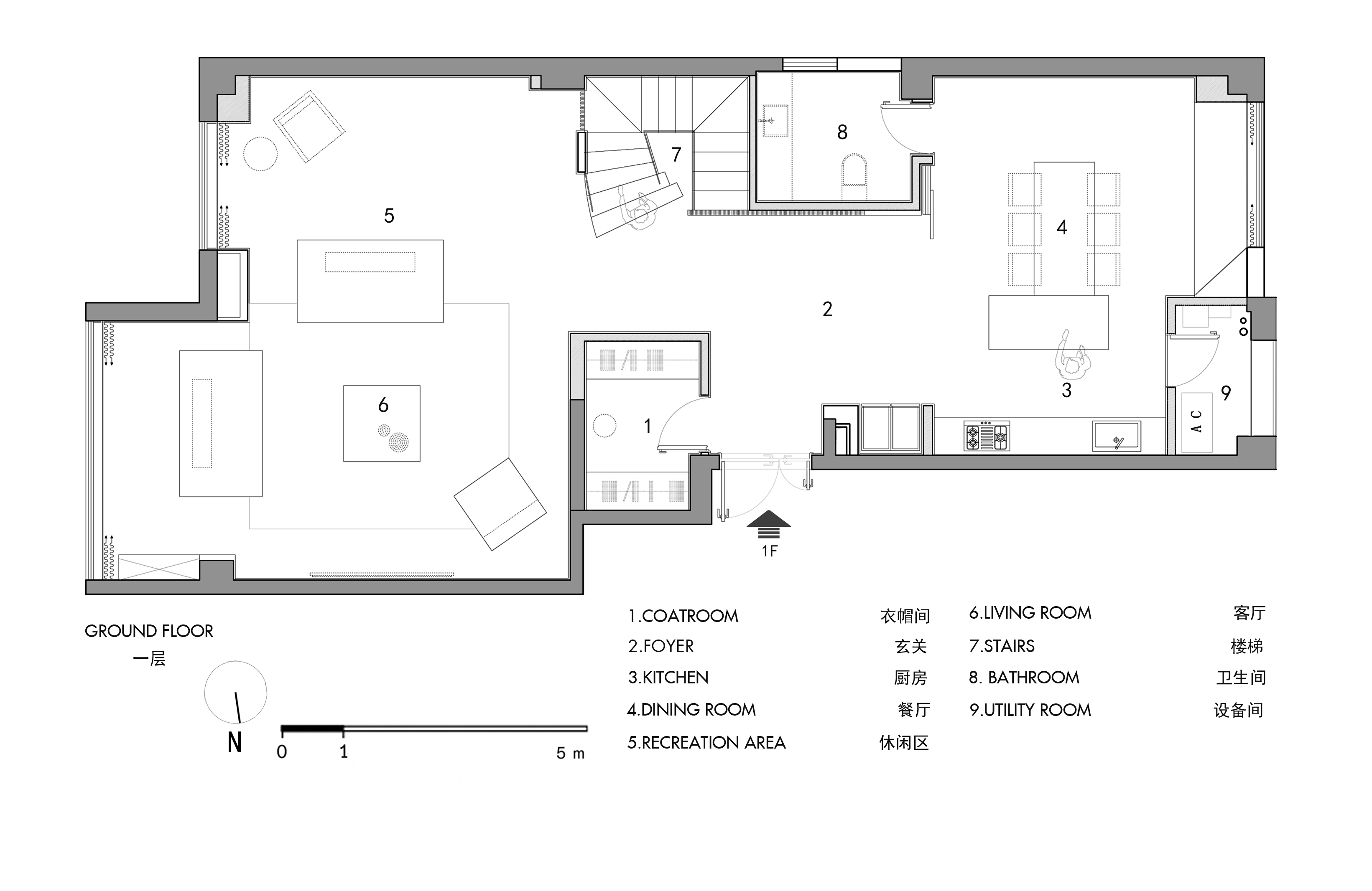
一层平面
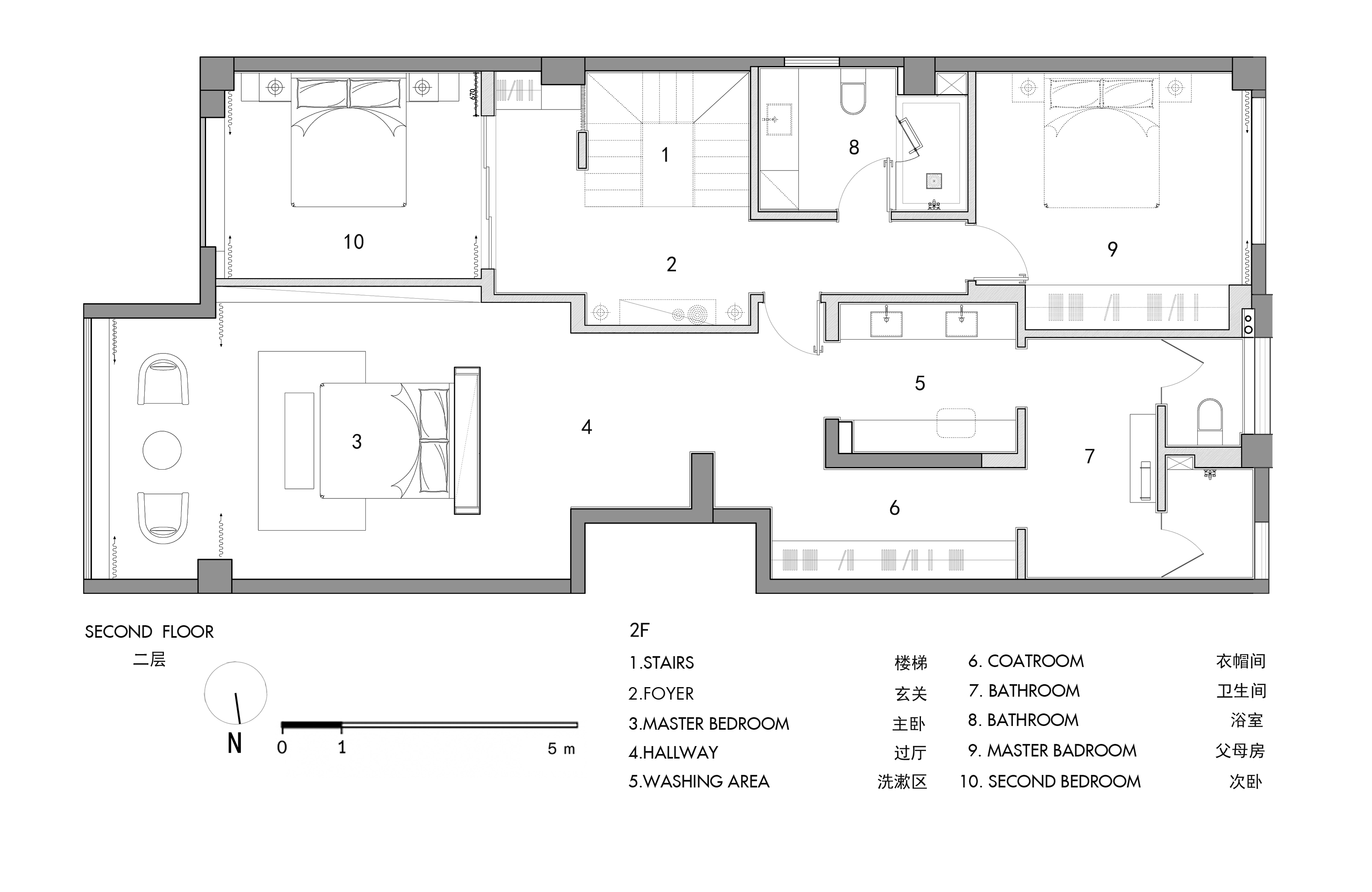
二层平面
0
0

认证 · 让您身份增值
558