基准方中中国总部项目



作品说明
- 项目类型:商业照明
- 项目地点:成都市
- 建筑面积:270000.0000㎡
- 项目造价:800.0000万元
- 参与设计师:黄洲、杨光、谭海粟、胡益凡、李连涛、雍自康、余鹏
- 竣工时间:2024年4月11日
-
照明设计说明:1.项目介绍
基准方中·天府匠芯总部基地位于成都青羊总部经济区核心区地处光华大道与成飞大道交汇处,项目总占地约68.6亩,总建筑面积27.1万平米,涵盖办公、商业、店、运动中心、艺术中心等高附加值复合业态。作为城市级综合产业发展高地,项目集基准方中20余建筑设计积淀之大成,凸现建筑艺术之美,遵循共享、交互、开放的设计理念,打造理念先进、特色著、产业聚合度高、发展动能强劲的现代化产业经济领航标杆。
项目分为南北两区,功能各侧重。
北区: 创新型自用办公与甲级写字楼,建筑语言现代简洁且富张力。北区功能主要为办公、商业。负一层设有艺术中心;一层为商业;二层为办公大堂,会议中心,报厅,企业展厅;顶层设有花园办公区。
南区:品质生活商业配套,显成都烟火之气。南区主要功能为酒店、商业、餐饮,运动中心、办公等。
作为一家建筑设计企业的总部,将照明艺术融入建筑空间,并增强各专业学科显得尤为重要,让照明成为建筑不可分割的一部分。将“天圆地方,日月同辉”这一设计理念,利用光来进一步凸显其视觉形态,我们称它为光的形态,它将唤起使用者的情感。“璀璨星辰耀明月,天圆地方定乾坤”,让人仿佛置身于宇宙,天地之间仰望日月同辉、星辰环绕之奇观,感受自然界中的光色变化,基准红、火星橙、大气蓝…
为了确保照明设计与建筑、室内、景观的和谐统一,将功能美学真正融入主体专业中去,照明设计团队与多个专业团队紧密携手,从设计创意到实际落地,始终将建筑、室内、景观照明作为不可分割的整体进行考量。与此同时,关注节能环保与可持续性对建筑科技技术上的提升,通过与智能化团队联手,实现了对灯具的精细调控,不仅有效降低了能源消耗,更提升了整个照明系统的现代化智控水平。
2.照明设计理念、方法等的创新点
在基准方中总部大楼的照明设计中,我们更加注重结合德系建筑风格品质的塑造,突出高品质的光环境。通过以功能为核心的“功能美学”设计手法,呈现秩序感、理性化的空间美感,再赋予诸多亮点的点缀,实现了照明的整体统一。
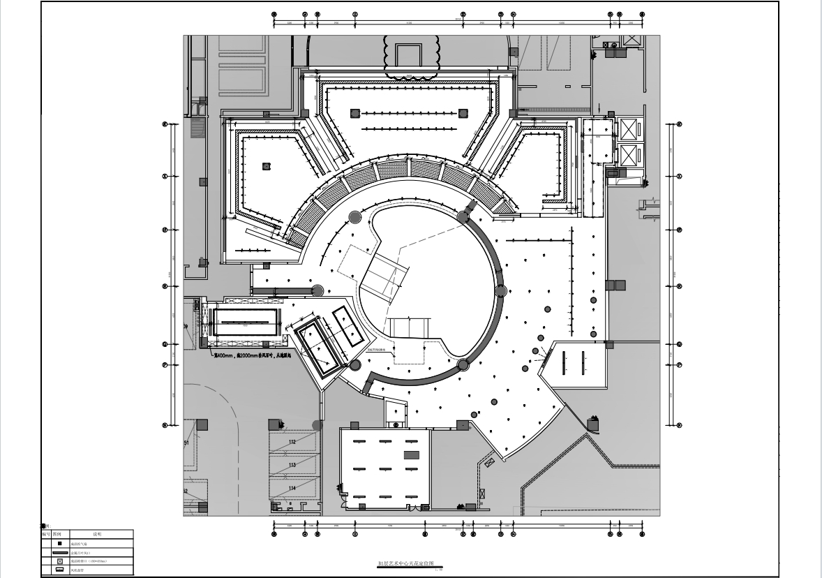
其中接待大堂的设计是最大的亮点之一。我们与建筑师深入探讨灯光方案,了解建筑师对灯光效果的构想与期望。我们在顶部设计了直径7M的极简采光圆洞,设计灵感来源于罗马万神殿的穹顶圆洞OCULUS,同时与大堂方正的空间形态,形成具有中国传统文化中“天圆地方”的格局, 体现出企业对文化兼容并包含对设计不断追求的企业精神。洞口上部覆盖16cm厚的超透亚克力作为大堂屋顶天窗材料,亚克力顶部同时作为浅水池,成为办公总部空中景观中重要组成部分。在天气晴朗时,阳光透过洞和水形成水纹光斑洒向室内,伴随着太阳的移动,波光盈盈,自然界的光影开始游走于大厅之中,形成独具建筑神性场域,带来了一种明亮而静谧的空间氛围。再结合“天圆地方”的设计理念,形成别具一格的照明设计想法衍生——璀璨星辰的轨迹、地球外部的大气层,蕴含着宇宙观、自然界中的思维启发,也承载着公司的企业文化精神和对人居环境美好生活的向往。我们称它为光的形态,它将唤起使用者的情感。“璀璨星辰耀明月,天圆地方定乾坤”,让人仿佛置身于宇宙,天地之间仰望日月同辉、星辰甩尾之奇观,感受自然界中的光色变化,基准红、火星橙、大气蓝…
3.照明设计中节能措施
整体照明设计中灯具根据空间不用的使用性质,通过多种智能照明控制实现照明场景控制做到“按需分配”,结合四季日照及自然采光因素,上下班高峰期因素,周末及节假日,展览展示,政企接待等一系列用光场景需求,真正做到一年四季365天全生命周期照明计划。例如接待大堂采用DALI+DMX512的控制方式,实现了分季分时段的多模式使用;公共区及办公区均采用楼宇时间控制+红外感应控制,实现了多时段的不同管理模式等等。
4.设计中使用了哪些新技术、新材料、新设备、新工艺
项目上采用多种新型智能照明控制方式结合的形式(KNX、DALI、0-10V、DMX512、感应等),针对不同空间的使用功能,给出了不同的控制方案。
灯具采用Gaussian高斯光学系统,有效抑制杂散光,照明光斑更加清澈圆润。显色性均>RA90,UGR<9,远小于商办照明UGR<19标准,有效提高视觉舒适度。同时球形遮光罩防漏光设计,在调节至任意角度情况下均不漏光,整灯光通输出效率提升5%以上,也可以避免灰尘及蚊虫进入到室内。可调角射灯自带40°调节角度,照射范围更广,同时刻度标识设计到灯具腔体内,便于安装调试标准化。办公线条灯、平板灯均采用无缝拼接方式,光源采用一体化硅基板镶嵌点阵LED光源,出光更加均匀柔和,有效降低眩光对办公空间的影响。磁吸轨道灯具均采用自回弹装置、防变形卡扣结构设计、无边嵌入是超厚轨道设计、加厚铜条导电、单灯旋钮调光等。
5.照明设计中使用了哪些环保安全措施
项目选择光效>80lm/W的 LED 高效节能的光源。LED 灯能耗低、寿命长,相比传统光源如白炽灯、荧光灯等,能够大幅降低能源消耗,减少能源浪费和碳排放。同时,LED 灯不含有汞等有害物质,对环境和人体健康更加友好。
合理选择灯具每一个点位的具体位置、角度和防眩措施,避免光线直接照射到人的眼睛,产生眩光。
灯光也采用智能照明控制系统,根据不同的场景模式和人员活动情况,调节灯光的亮度、颜色和开关状态。业主可根据现场实际需求自动调整照明参数。智能控制系统还可以实现远程控制和集中管理,方便用户的使用和管理,提高照明系统的节能效果和安全性。

