北京壹号酒庄——京城府酿酒文化的璀璨殿堂


作品说明
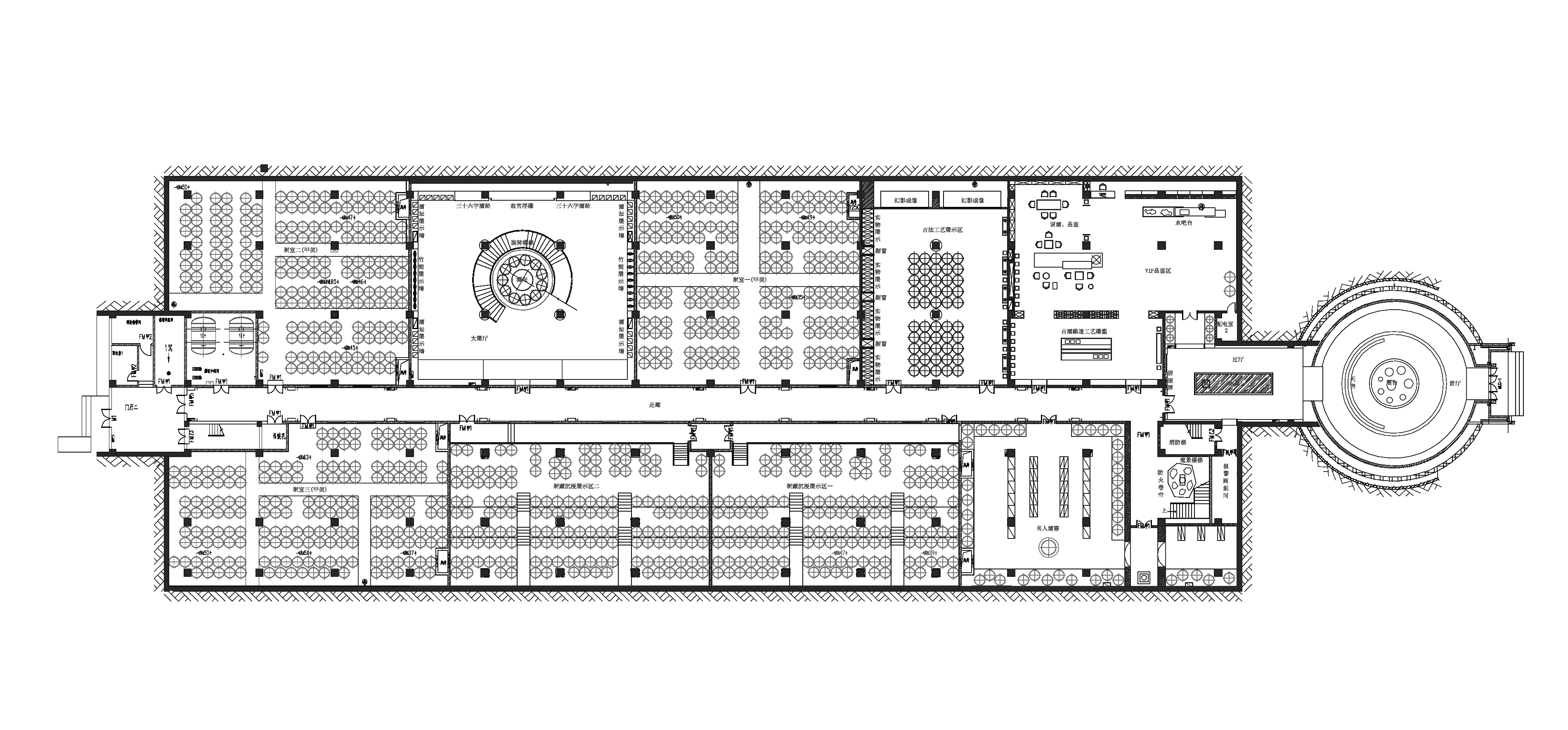
- 项目类型:零售
- 项目地点:涿州市
- 建筑面积:11000.0000㎡
- 项目造价:9800.0000万元
- 参与设计师:张楗波、陈奕含、张凯、王志鹏
- 竣工时间:2024-12-1
- 设计机构:北京大木博维建筑装饰设计有限公司
-
项目定位:在历史与现代交织的城市中,隐藏着许多诉说着文化的故事。京作壹号酒窖,便是这样一处将京城历史、府酿文化与艺术体验完美融合的综合性场所。它不仅是一个藏酒的空间,是时间的见证者,是文化的传承者,是艺术与生活的完美融合,更是京城府酿酒文化博大精深的缩影,是每一位热爱京城文化、追求高品质生活访客的必访之地。在这里,每一瓶酒都承载着故事,每一块石头都诉说着历史,每一次驻足都能感受到岁月的温柔与醇厚。在这份独特的氛围中,品味生活,致敬时光。
-
空间意境:“非必丝与竹,山水有清音,酒香醉人心”
自然与建筑的和谐共生:以《山》《水》《亭》《松》《石》为核心元素,通过自然与人文的深度融合,京作壹号酒窖的设计灵感源自大地深处的神秘与宁静,设计师巧妙利用地形地貌,将酒窖嵌入环境之中,仿佛是大自然本身的一部分。外部采用原生石材与植被覆盖,既保持了原有的生态平衡,又赋予了酒窖一种古朴而不失尊贵的气质。步入其间,仿佛穿越了时空隧道,来到了一个远离尘嚣的世外桃源。 -
空间布局:科技与传统的完美融合:在尊重自然的基础上,将室内与室外空间进行一体化设计,京作壹号酒窖引入了先进的温湿度控制系统与智能管理系统,确保每一坛白酒都能在最适宜的环境中缓慢成熟,锁住最佳口感。通过精心设计的照明与通风系统,营造出既符合现代审美又不失古典韵味的空间氛围。在这里,科技与传统不再是矛盾体,而是相互成就,共同守护着这份珍贵的液体遗产。
-
设计选材:针对酒窖潮湿及高防火等级的特点,在设计选材时着重考虑了防火、防潮、密闭性、环保及耐久性等多个方面。通过精心挑选和合理搭配,我们旨在打造出一个既安全又环保、既耐用又易于维护的洞室空间,以满足不同应用场景的需求。
防火性能:国家权威机构认证、具有高等级防火性能的材料,A级不燃材料。
防潮与耐水性:鉴于酒窖通常处于潮湿环境中,材料的防潮与耐水性同样不可忽视。选用经过特殊处理、能够有效抵御水分侵蚀的材料,如防水涂料、防潮石膏板以及具有优异防水性能的混凝土添加剂。这些材料不仅能有效隔绝外部水分,还能防止内部水汽凝结,从而保持洞室内的干燥环境。
密闭性与气密性:良好的密闭性和气密性对于维持洞室内环境的稳定至关重要。选用密封性能优异的材料,如高分子防水卷材、弹性密封胶以及气密性门窗系统,确保洞室在潮湿环境下依然能够保持空气质量的稳定,同时防止有害气体或微生物的侵入。
环保与可持续性:在追求高性能的同时,更要高度重视材料的环保与可持续性。优先选用在生产、使用及废弃处理过程中对环境影响较小的材料,如再生材料、低VOC(挥发性有机化合物)涂料以及可降解的密封材料。这些材料不仅有助于减少施工过程中的环境污染,还能在洞室长期使用过程中保持室内空气质量,保障人员健康。
耐久性与维护性:考虑到酒窖的使用年限较长,材料的耐久性和维护性同样重要。选用经过长期实践验证、具有优异耐久性的材料,如耐腐蚀的钢材、高强度的混凝土以及耐磨损的地面材料。同时,这些材料应便于日常维护和清洁,以降低长期运营成本。 -
用户体验:艺术收藏与品鉴的殿堂:除了作为府酿白酒的储藏空间,京作壹号酒窖更是一个集艺术收藏、文化交流与高端品鉴于一体的多功能场所。酒窖内部设有艺术展示区,定期展出国内外知名艺术家的作品,让每一次品酒之旅都成为一次视觉与味觉的双重盛宴。

