-
项目定位:简洁明快是本案的主要特点之一,设计师更加注重对室内空间的充分利用,家居装饰上采取精致主义,摒弃所有与生活习惯不契合的元素。
-
空间意境:色彩的搭配上遵循时尚简约的潮流,用清爽的氛围营造最舒适的视觉体验。
-
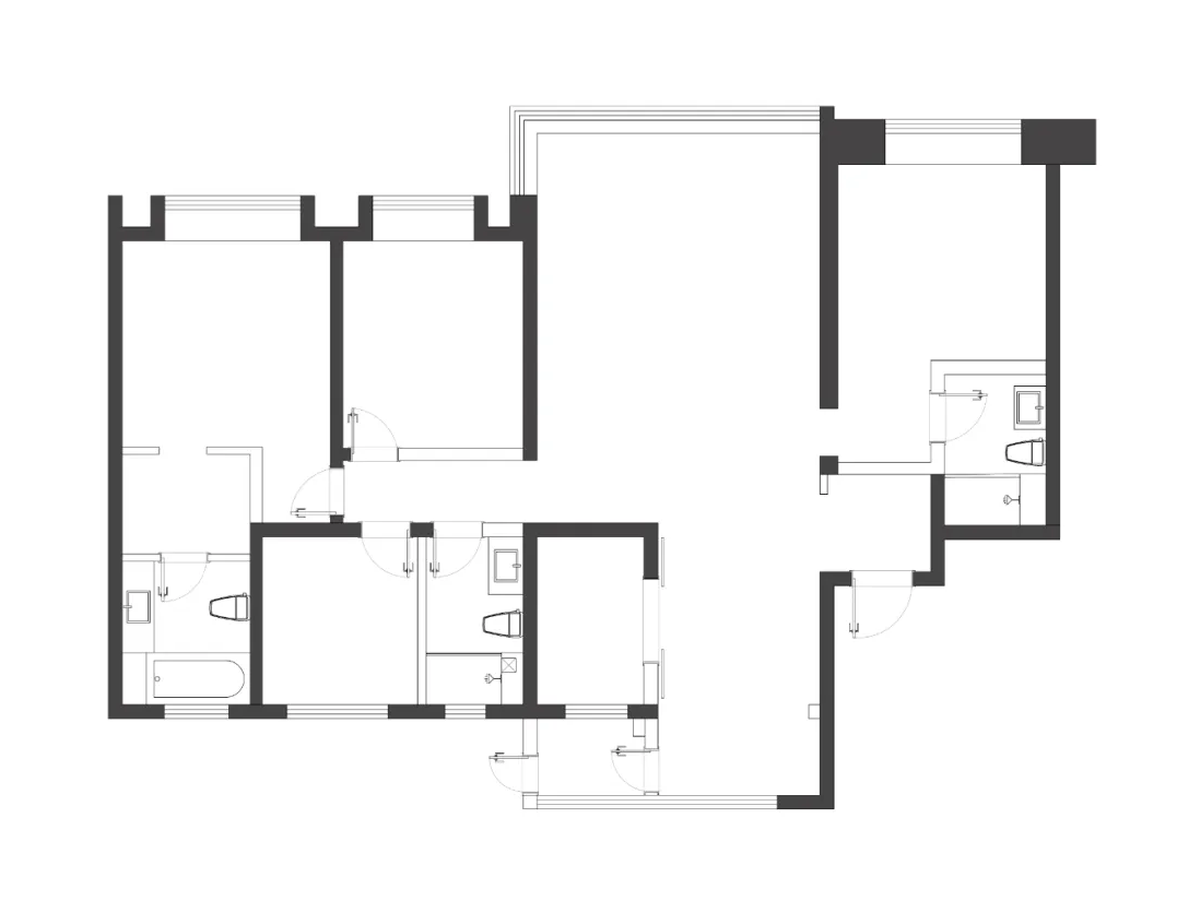
空间布局:拆除原厨房部分墙体,增强餐厨之间的功能联动;对主卧空间进行整合,优化套间功能,提升居住体验感。
-
设计选材:硬朗石材和环保木材的搭配保持清爽视觉
-
用户体验:用户觉得入住后体验感很舒心,开阔的空间布局让心情舒畅。
客厅墙面注重线条感,用石膏线让整体居室更具设计感且不单调。开阔的沙发单品让休闲区得以延伸。
客餐厅统一的色调,在造型设计上有着不拘一格的时尚表现,展现出居住者独有的居家品味。
开阔的落地窗,利用自然的光线为空间增色,形成多变的家居环境。
空间是简约的,但设计细节是丰富而有趣的。功能性的设计细节,让空间可以被慢慢地挖掘和品味。
以咖色和白色为主,石材的硬朗和木纹肌理的柔和形成了视觉反差,干净纯粹中又蕴含几分治愈感。
简洁明了的装修方式是一种对生活返璞归真的生活态度。个性独特的软装赋予居家氛围特质。
开放式的客餐结构,精简的设计理念,一体化的居住概念更具空间感,也大大增加了生活上的便捷。
餐厅利用原厨房一面墙体延伸做石材岛台,“双口字形”墙体结构,一方面可以是餐桌功能的延伸,另一方面则辅助阳台洗烘区的完整。
餐边柜材质与定制餐岛一致,在视觉上高度和谐。足够的进深搭配隔板能够充当一个简便的早餐和西厨区。
中厨地柜抬高10公分,给扫地机器人留够操作空间,避免卫生死角。
打造洗烘一体功能阳台,分担其他区域的功能压力。
卧室整体色调采用灰色和木色的结合,同色系的靠背和背景墙配合得天衣无缝,使整个空间更加和谐统一。
经典的黑色哑光悬空床头柜增加了卧室的质感,一把极具创意的化妆凳则突出了设计感。
次卧承载着老人的睡眠功能,双床的设计避免互相打扰,行动更加自由。
卫生间没有复杂的颜色,出去必要的功能性布局外,没有多余的摆件和装饰品,实用至上的理念让空间完全服务于生活。
拆除原厨房部分墙体,增强餐厨之间的功能联动;对主卧空间进行整合,优化套间功能,提升居住体验感。

