欢喜



作品说明
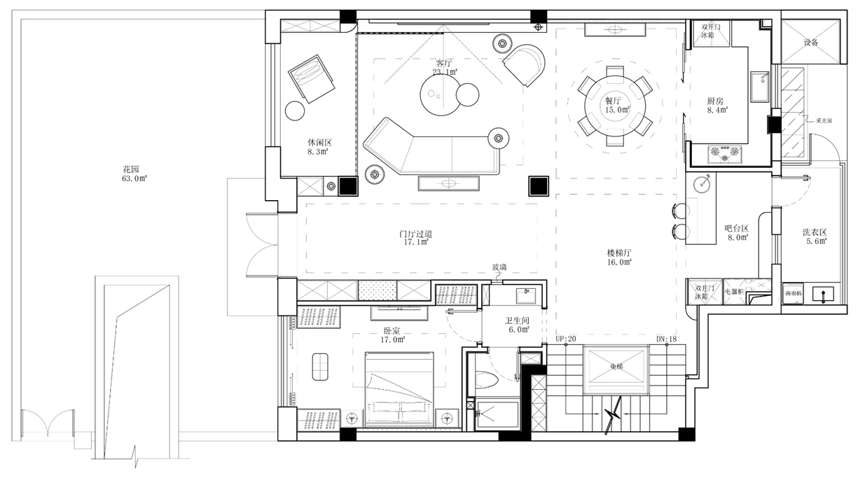
- 项目类型:别墅
- 项目地点:上海市
- 建筑面积:500.0000㎡
- 项目造价:1000.0000万元
- 主案设计师: 金园圆 郭杨宜
- 参与设计师:金园圆 郭杨宜
- 竣工时间:2023.12.31
- 设计机构:风起时设计
-
项目定位:有时候,一幢美好的房子就像一场梦幻般的舞台剧,
生动地描述着主人对生活的热爱的程度,对于家人的关爱和孩子的用心呵护。
关于家的遐想,是理想生活的方向。
-
空间意境:我们希望通过改造后的空间,三餐四季的仪式感,顺着柔光曲径,直抵身心。
实用与美学的趣味契合,打造了富有生命力的烟火气。 -
空间布局:用感性认知去沉浸式体验空间的理性氛围,以洋红色点缀作为情绪的高光色彩,
在整体米色空间中,不会喧宾夺主,却能创造一种迷人的韵味,
创造性地与整体空间融合,温润中注入现代感与生命力,
平衡了整体色调冷暖,纯粹又有深意,盛放的玫瑰,知性且恬静。
微风不燥,阳光正好,将一寸一寸的阳光揉进欢喜不断的生活里
12月2日,色彩权威机构Pantone潘通正式发布了2023年的年度流行色彩,给了个霸气的名气——18-1750洋红万岁!
一个充满希望和活力的高级色,
一种源自红色家族的自然色调,
它活力四射,力量满满。
洋红万岁代表着勇敢和无畏,
它是一种带给人力量的颜色,
它的活力让人们感到更加快乐,变得更加乐观。 -
设计选材:壁炉,一种法式优雅的浪漫和优雅,弧型圆边的设计弱化边角,让壁炉与墙面顺然一体的设计,冬天来了,一家人围炉而坐,泡上一杯热茶,读上一本书,没有什么比这更惬意的事情了图片改造了原建筑原本结构,拿掉了部分楼板,休闲会客区做了挑空跃层设计,让原本层板受局限的b2层在空间高度上得到了纵向延伸,b1层与挑空区增设了圆形小眺台,增添了空间互动趣味性以及空间结构的丰富视觉效果。
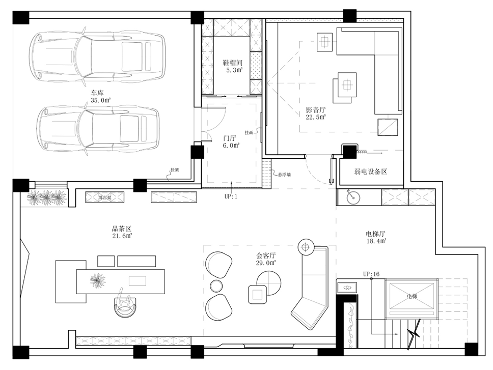
作为整体空间的视觉中心——挑空休闲区,能带动整个空间的别墅尺度及空间感,挑高的墙面设计使得空间东线更加流畅,浅色的基调诠释家的温度,洋红色为整体素雅的空间增添令人兴奋的艺术感,为空间注入活力与能量。图片茶室,男主人最喜爱的地方,木头和大理石的搭配完美和空间融合。我们把原本昏暗潮湿的地下室通过天井及改造后的挑空区引入自然光线,加以绿植造景的点缀,把自然搬到家中,延展出空间的使用场景……抬高了门厅区域地面,确保车库入户的地面高差一致,确保使用安全,利用木饰面材质界定空间区域感,强化空间属性。
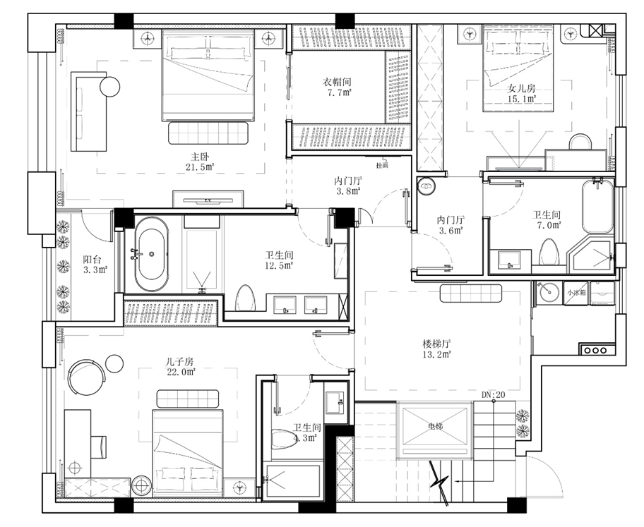
书房,女主人的小天地,空间以原木色和米白色相映趣的瞬间,在朴实的岁月里筑起温暖的家庭时光,为了增加跨层的互动性,我们在采光井角落里设置了一个可以互相交流的平台,增添了空间使用的交互性乐趣。
开放式的设计拓宽了公共空间的范围,利用原机构的柱子做了刻意展示区,加以艺术品的加持装置,使柱子融入解构造型设计中且无违和感。
最大限度平衡原始承重结构与宜居空间的尺度需求,完成内部架构的体系与框架,通透的内部空间,良好的采光与通风系统,建立与屋主同频的情绪连结。
一处角落,素简润泽、一缕阳光,温暖肆意、一个简单的环境,自在有趣,与精心布设的空间布置形成对话,可以居一慵懒的下午茶,亦或是沉浸书籍的熏陶,慢度日常。
餐厅创造与享用一日三餐,搭配与品味美食的过程,就像是人与空间的互动,空间中的各类元素,如家居、灯饰与器皿的搭配则形成一到精神美食。
每个孩子都应该拥有属于自己的趣味同年,可爱的粉色空间,都在叙说一个女孩天真烂漫的童话梦想… -
用户体验:用男孩子最喜欢的灌篮高手为主题展开设计,以蓝色和灰色作为搭配,层次分明突出人的感官与体验为空间主体,在生活中寻找快乐,简约艺术派的实践者........

