月季花园
281
作品说明
- 项目类型:住宅公寓
- 项目地点:杭州市
- 建筑面积:330.0000㎡
- 项目造价:240.0000万元
- 参与设计师:李剑、陆苏萍
- 竣工时间:2023.11
- 设计机构:力设计
-
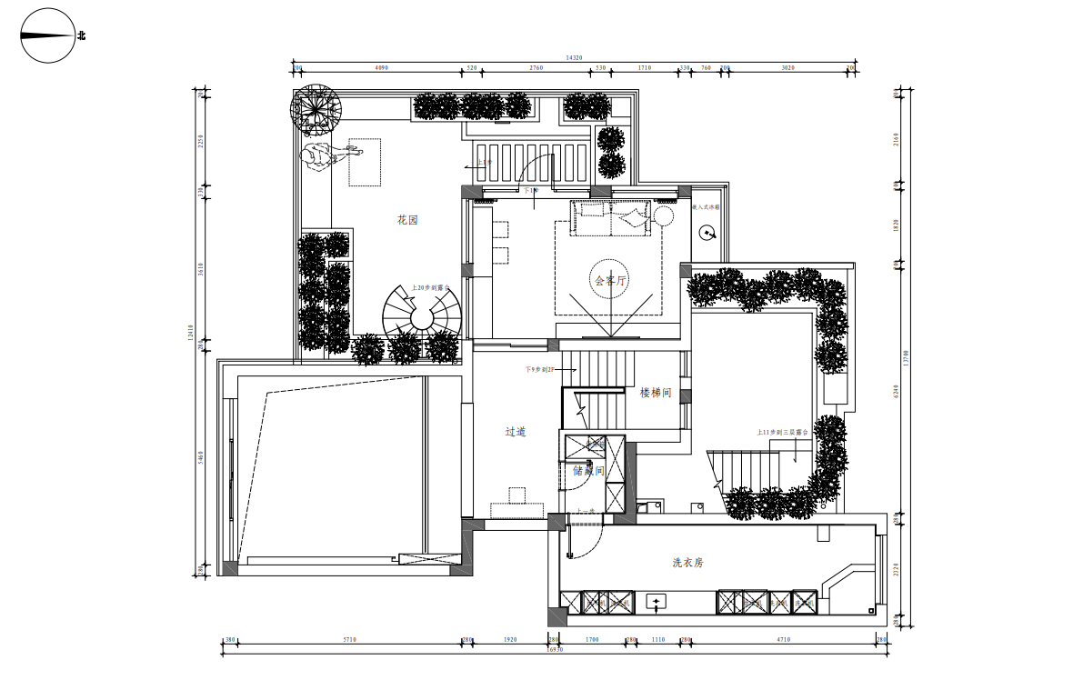
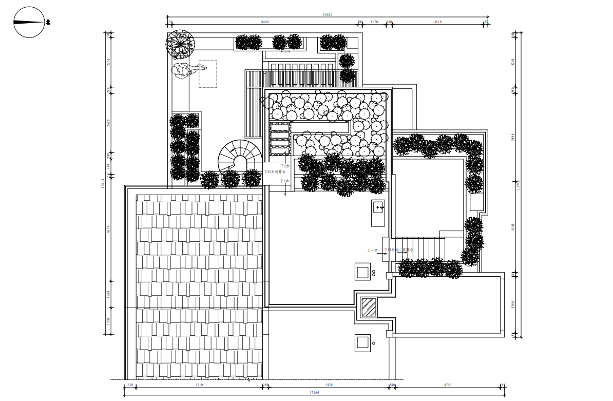
项目定位:本案定位为一座融合自然与艺术的“绿意之家”,它不仅仅是一个居住空间,更是一个承载家庭情感、品味和自然热爱的艺术居所。设计灵感来源于屋主一家对自然和诗意生活的深刻追求,尤其是对生活中绿意和阳光的渴望。通过巧妙的空间布局和自然元素的融入,本案成功打造了一个可以让家人感受到自然生长、宁静和自由的“假期之家”,同时也通过空间和功能的巧妙安排,让每个家庭成员都能找到属于自己的私密空间和互动场所。屋顶花园的存在,以及与大自然紧密互动的空间设计,使得该住宅成为现代都市生活中的一片绿洲,既充满生机,又与外界保持着独特的联系。
-
空间意境:本案在环境风格上的创新点体现在“绿光森林”岩板的运用以及自然元素的高度融合。空间通过大弧顶和绿意盎然的“绿光森林”岩板作为设计的视觉焦点,营造出鲜明的自然氛围和生机感。特别是在玄关与公区的设计上,绿光森林岩板点亮了整个空间的基调,使得自然的气息贯穿始终,给人一种舒适、清新、自然的感受。顶跃住宅的设计打破了常规封闭式布局,通过挑空空间和大弧顶的设计,让自然光最大程度地渗透进入,增强了空间的通透感和自由感,打造出具有现代感、艺术感和自然感的综合空间。此外,空间设计还融入了植物景观和自然采光,特别是与屋顶花园的互动,使得每个区域都能够与外界自然环境保持紧密联系。阳光透过玻璃窗洒入室内,屋外的月季花园和微风交织在一起,整个环境呈现出一种诗意的自然景象,充分体现出设计师对于自然美学的独特理解。
-
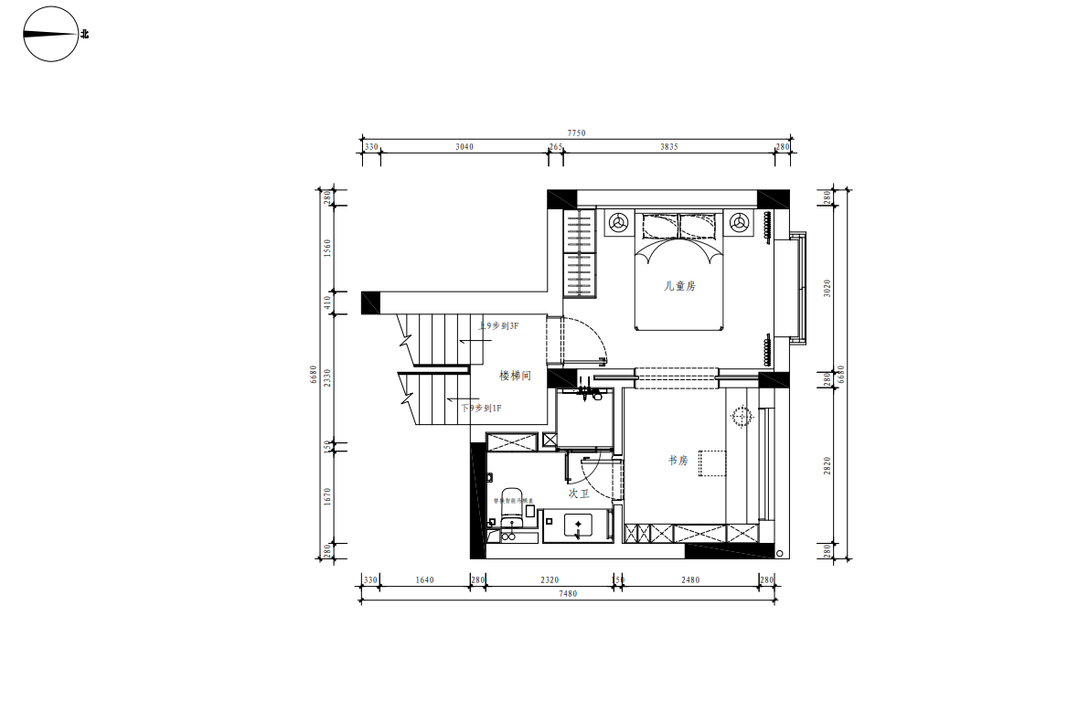
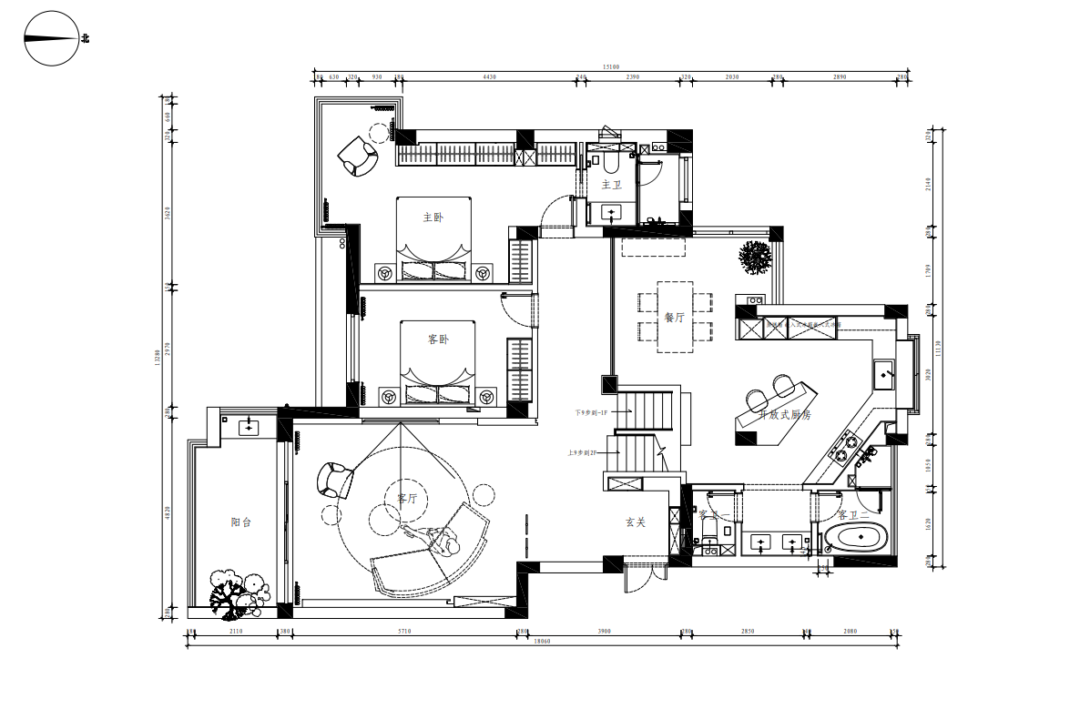
空间布局:空间布局的创新点体现在多层空间的互动性和层次感的提升。设计师利用四层顶跃户型的优势,通过挑空区的设计和合理的空间过渡,创造了一个开阔且充满变化的空间感受。通过巧妙的垂直空间布局,设计师不仅有效地解决了层高的问题,还使空间呈现出一种流动感和层次感,打破了传统单一空间的界限。在公共区域,设计师使用了下沉式厨餐厅和绿色岩板中央岛台,通过巧妙设计将不同功能区域相互连接,同时不失空间的开放性和互动感。此外,设计师还在客厅和餐厅之间通过开阔的通道和大弧顶形成了视觉上的贯通,创造了流畅的动线和亲密的空间感。对于家庭成员的私密需求,设计师为女孩房设计了一个独立的夹层空间,既保证了隐私性,又保留了一定的开放感,为孩子的成长创造了更多的空间可能性。
-
设计选材:在选材上,本案注重自然环保和低碳经济的理念。设计师选用了“绿光森林”岩板这一环保、耐用的材料,既解决了视觉效果的需求,又降低了对环境的负担。岩板材质具有很好的稳定性和耐用性,不仅在视觉上营造了清新自然的氛围,也减少了材料的更替频率,符合低碳设计理念。另外,实木、天然石材等材质的运用,不仅美观,还具有良好的环保性能。这些材质的自然纹理与空间中其他设计元素的结合,创造了一个既环保又充满自然气息的居住空间。此外,在空间布局中通过合理的功能分配和空间利用,避免了过度的材料浪费,达到了既高效又环保的设计目标。
-
用户体验:投入使用后,业主对该空间的评价极为积极,特别是在居住体验上,空间的通透感和与自然的紧密联系使得他们感受到了不同寻常的放松和愉悦。屋主表示,每天回到家中,都会因为绿光森林岩板带来的自然气息而感到宁静与舒适,家成了一个远离都市喧嚣的绿色庇护所。在空间的功能性上,屋主也非常满意。特别是藏书区的设计,通过定制展示柜有效解决了大量书籍的收纳问题,同时还提升了空间的艺术感和秩序感。女孩房的私密性和独立性也得到了屋主的高度认可,女儿在这个空间里拥有更多的自由与成长空间。顶层娱乐起居室成为家人和朋友们聚会、交流和休息的理想场所,业主表示,他们常常在这里度过温馨的时光,享受与家人和朋友的亲密互动,同时也能欣赏到外部花园的美景和自然风光。总体而言,本案的设计成功地将自然与艺术结合,创造了一个既充满生机又充满诗意的生活空间,业主的生活质量得到了显著提升,空间的功能性和美学价值得到了完美平衡。
0
0

认证 · 让您身份增值