遇见“乌托邦”



作品说明
- 项目类型:住宅公寓
- 项目地点:金华市
- 建筑面积:300.0000㎡
- 项目造价:160.0000万元
- 参与设计师:李剑
- 竣工时间:2024.09
- 设计机构:力设计
-
项目定位:本案位于浙江武义,设计理念源自“假期”这一主题,旨在为业主创造一个既能逃离都市快节奏生活的压力,又能回归内心宁静的度假氛围。设计将家塑造成一个“真实世界的乌托邦”,这里不再是一个单纯的居住空间,而是一个可以让人在繁忙生活中得到精神放松和心灵疗愈的避风港。通过精致、功能分明的空间布局,以及细致的细节设计,项目定位为一个温馨、放松的度假式居住环境,不仅是生活的空间,更是身心放松的地方,陪伴业主在日常生活中找到平衡。
-
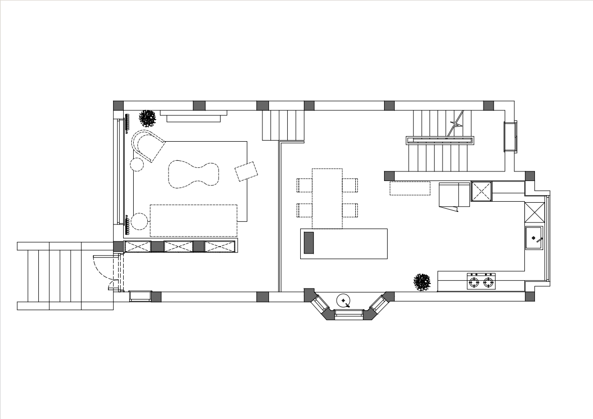
空间意境:作品在环境风格上的创新点在于其“度假”氛围的打造和自然元素的巧妙融合。设计师通过精心挑选的复古气质镂空栏杆、淘来的中古矮柜、手工实木单椅等家具,营造出一种田园风情的自然宁静感,符合“假期”主题。客餐厅区域没有电视,而是通过大理石壁炉、主人喜欢的艺术画作和精致的摆件,营造出一种放松且富有艺术氛围的空间。在材料上,棉麻、实木、大理石等天然纹理和材质的结合,不仅体现了环境的自然质感,也让空间更加和谐、温馨。此外,开放式厨房与餐厅区域通过三面开窗的设计,打破传统封闭的空间感,最大限度地引入自然光,让整个空间充满了轻松的度假感。
-
空间布局:空间布局的创新点体现在错层结构和区域的巧妙分隔上。错层设计不仅使客厅和餐厅之间形成自然的高低差,增加了空间的层次感,还使得两个区域既独立又相互联系,创造出一种开放而又私密的氛围。客厅区域没有电视,而是通过温馨的软装布置和自然景观的引入,使得这个区域充满了生活气息与舒适感。厨房餐厅设计则采用全开放式布局,三面开窗让自然光充满整个空间,岛台巧妙包裹了承重柱,同时也是厨房的主要收纳区域,这样既美观又充分利用了空间。设计中的多重空间划分,使得不同功能区之间既有明确的界限,又不失整体的流动感,创造出舒适且富有趣味的生活空间。
-
设计选材:在选材上,项目注重环保与经济性,选用了多种天然、可持续的材料,既保证了设计的美观与舒适性,又有助于降低环境负担。客餐厅、厨房等区域大量使用实木、大理石、棉麻等天然材料,避免了人工材料的过度使用,使空间更具自然质感且易于维护。这些材料不仅环保,还具备较长的使用寿命,从而减少了材料的更换频率,符合低碳经济的要求。同时,设计师通过定制家具和巧妙的空间利用,使得家中的各个收纳区域既实用又美观,减少了不必要的物品堆积,实现了高效空间利用和经济的生活方式。
-
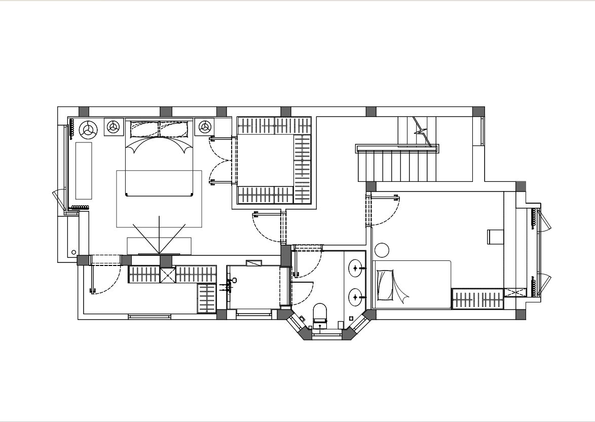
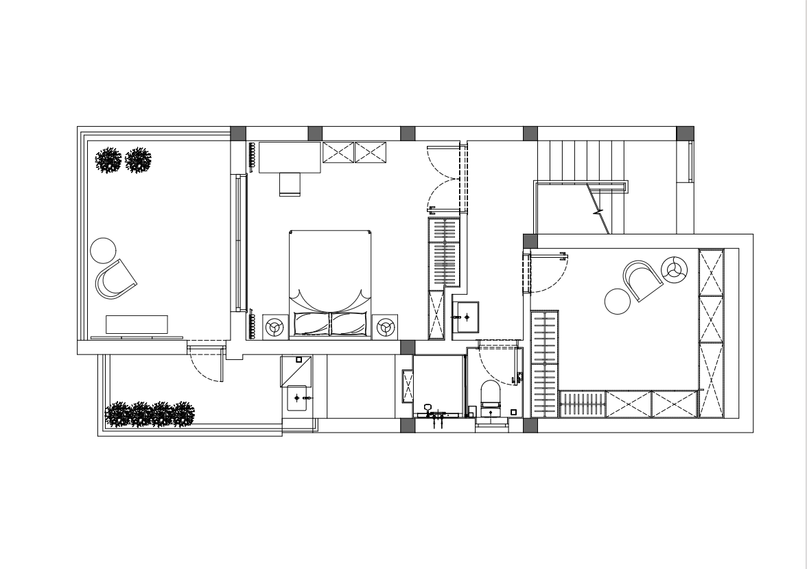
用户体验:自家投入使用后,业主表示这个家已经超出了他们的期待,特别是它赋予他们一种度假的生活感受。每天回到家中,经过玄关的宁静转换,他们能够完全放松身心,远离外界的压力。客餐厅区域的设计带来了非常愉悦的体验,尤其是在晚餐时分,三面开窗带来的自然余晖和温暖的壁炉为家人提供了一个舒适的聚集空间。厨房的开放式布局和岛台的巧妙设计,使得家庭成员之间的互动更加方便和亲密。主卧的莫兰迪系色调让他们在疲惫的工作后能得到充分的休息和放松,而孩子们的房间则被设计得富有趣味与温馨,既满足了孩子们的需求,也给他们创造了一个安全、愉快的成长空间。整体而言,业主对这个室内设计充满了喜爱,他们感受到了设计所带来的情感共鸣和生活品质的提升。家不再是单纯的栖息地,而成为了一个可以让全家人都得到放松和满足的理想空间。在这个“真实世界的乌托邦”中,业主找到了属于他们的心灵栖息地,生活的每一刻都充满了温暖、宁静和幸福。

