硬核浪漫.极简的自由
210
作品说明
- 项目类型:别墅
- 项目地点:上海市
- 建筑面积:500.0000㎡
- 项目造价:1000.0000万元
- 主案设计师: 金园圆 郭杨宜
- 参与设计师:金园圆 郭杨宜
- 竣工时间:2023.8.31
- 设计机构:风起时设计
-
项目定位:在不被定义的空间里,查理小姐和狄先生将对美好生活的憧憬、理想空间的解读、审美差异的矛盾不断交织、解构、重组,最终构筑既融洽也自洽,与日月光影随行的家。
能合得来的人不一定非要性格相似、审美一致,鲜明的反差有时反而能碰撞、融合出意想不到的趣味。浪漫的查理小姐情感细腻,憧憬一个艺术博物馆般的家,线条简约高级,氛围宁静愉悦,能长长久久地沉淀美好回忆,是住上15年也不觉过时乏味的家。而“钢铁直男”狄先生以理性思维审视空间结构,重视功能划分和空间收纳,强调隐私性。 -
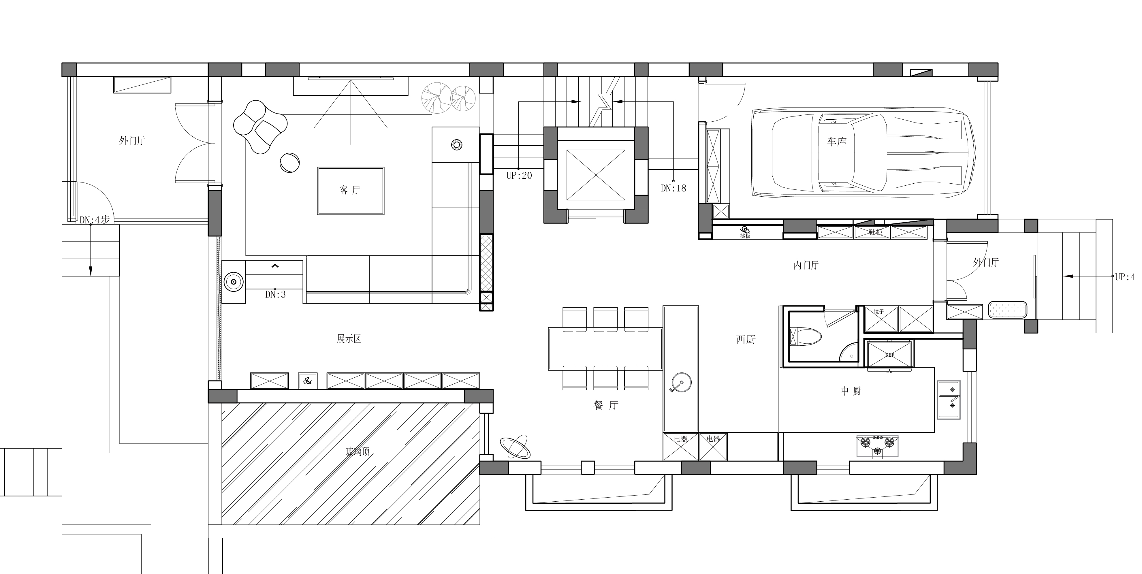
空间意境:对于一个家来说,空间结构如何与积极情绪产生联结互动,是构筑愉快记忆点的关键。设计师抓住房屋原有的下沉结构条件,在家打造围合式的半开放下沉客厅。
-
空间布局:踏着三级木质台阶步入客厅,仪式感和归属感油然而生,令客厅这个强调交流属性的空间更具场景体验感。错落的高度差让素净的至简空间在视觉上更有层次感,避免平铺直叙的单调。
和包容性极强的极简主义一样,温馨的家也需要包容与理解、妥协与共创。在一开始设计方案快要敲定时,重视私密感的狄先生注意到家里一进门就望到客厅,不利于隐私保护,提出加一面隔断墙的要求。这和查理小姐追求一通到底的空间感、讲究通透采光的需求背道而驰。
“当时我和先生的矛盾一触即发,设计师马上安抚了我的情绪,和他再次沟通了需求,给出了惊喜的隔断设计。这不但使我们的需求都得到满足,还解决了家庭矛盾。”这个装修插曲令查理小姐至今难忘。惊喜的隔断设计是隔而不绝的玄关墙,加上半悬空和镂空矩形设计,既达到保护隐私的目的,也令隔断显得更灵动,充满雕塑般的高级感。
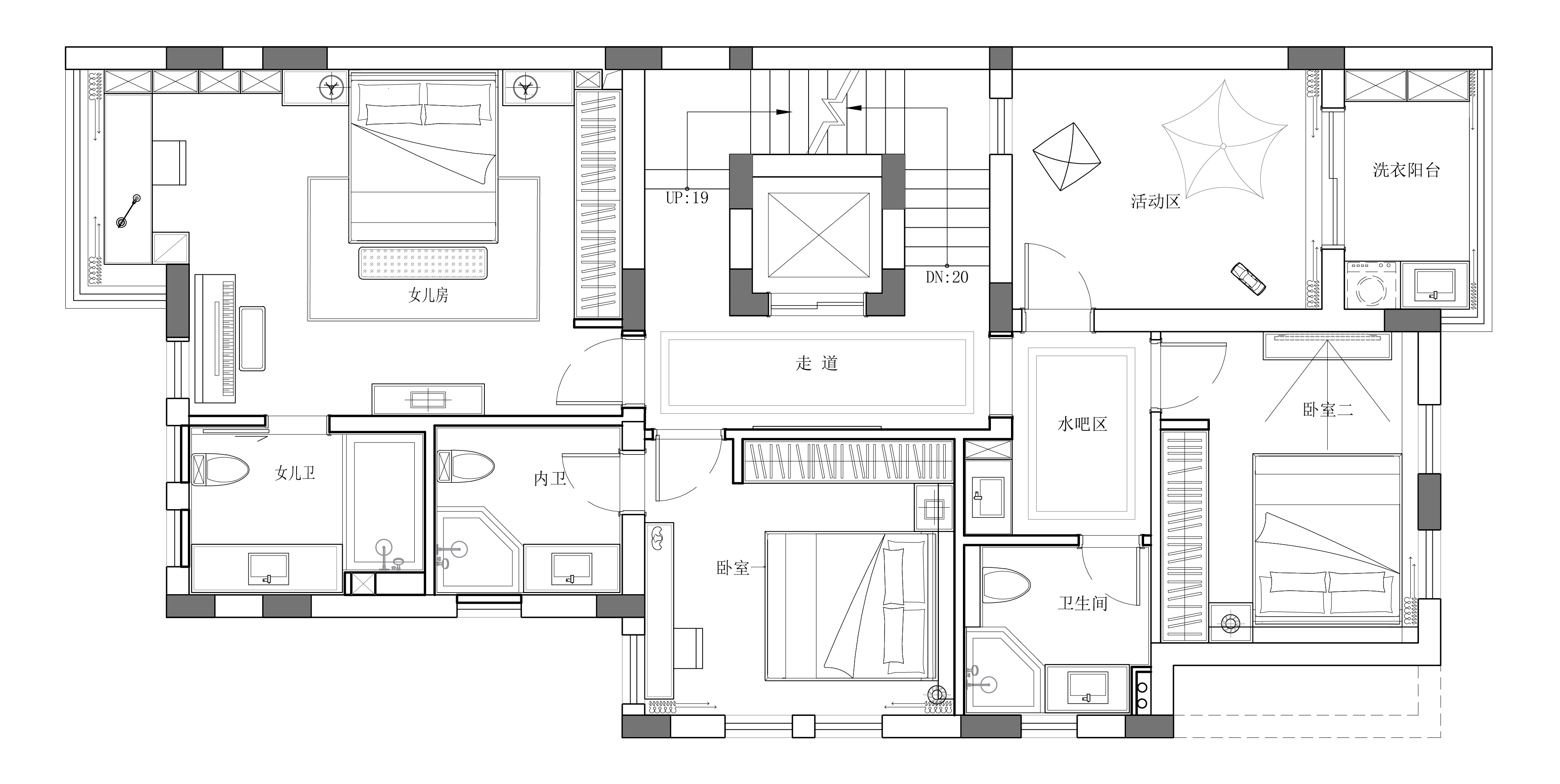
令人精神愉悦的家有欢聚一堂的其乐融融,也应该有各得其乐的独处空间,每一位家庭成员的需求都得到满意的回应。
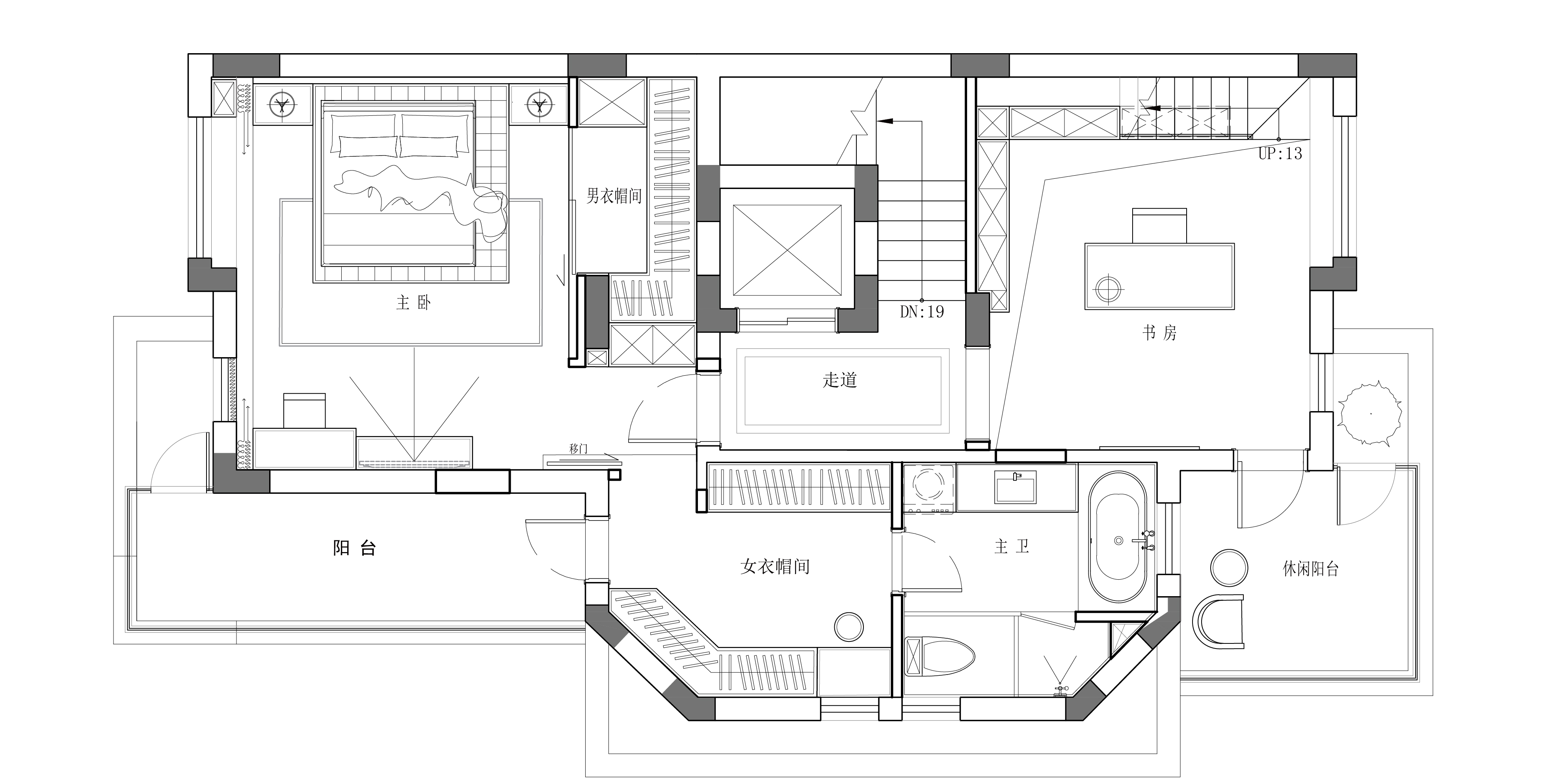
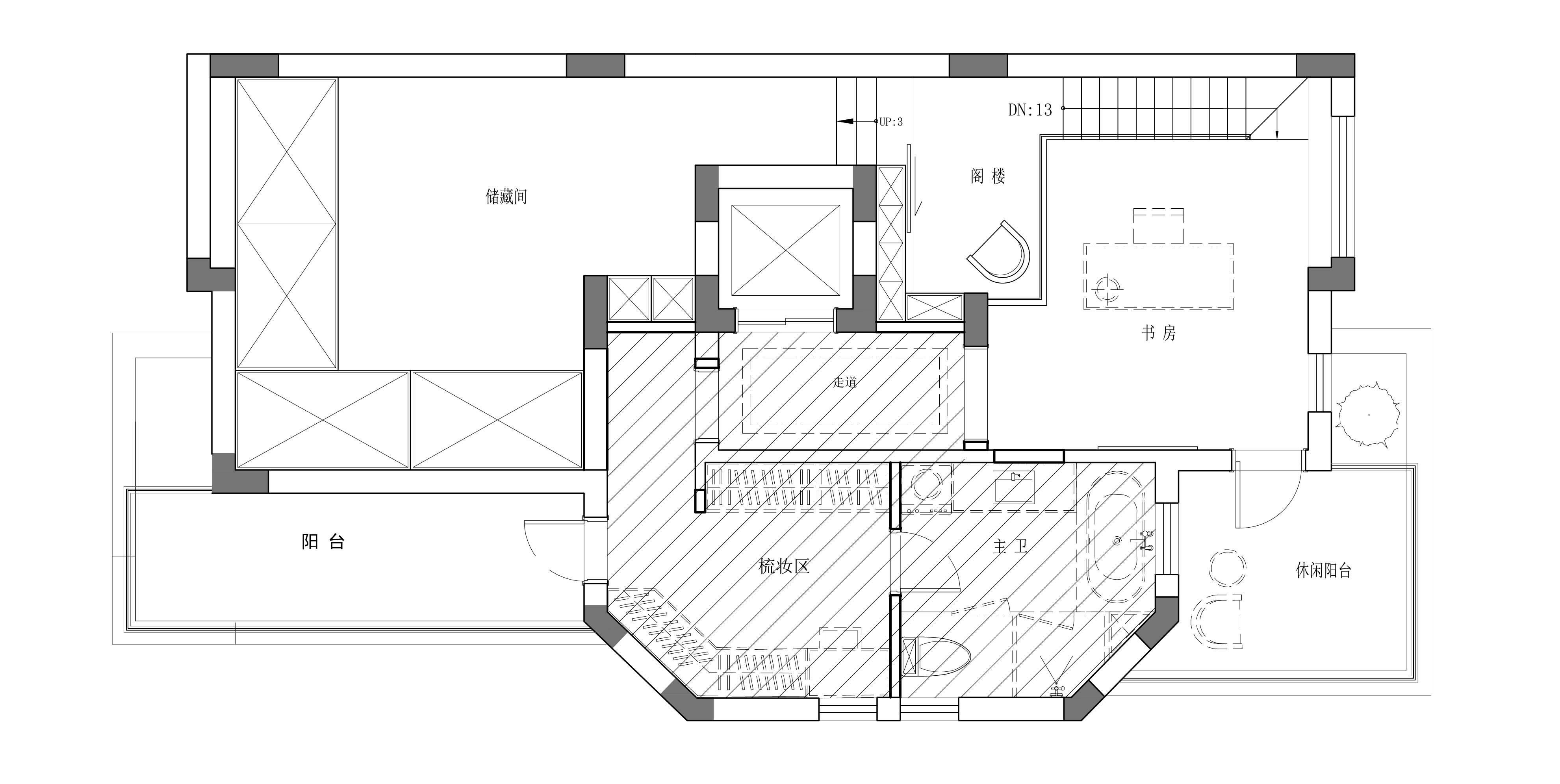
狄先生的精神角落是位于三楼的书房。设计师利用房屋原有的高度优势,通过楼梯连接阁楼,形成楼中楼式的Loft空间,释放了阁楼的收纳功能,也纵向拓展了书房的视觉空间。阁楼书房的体验更具艺术感和隐秘性,契合狄先生的需求。
作为有娃家庭,家里两个宝宝的需求也是设计重点。地下一层原有的采光就比较暗,不适合隔开做功能分区,设计师将140平方米的地下室全部打通,作为宝宝们恣意奔跑的活动空间,大人们也可以在这里活动健身。天井还特别修筑了一面攀爬墙,给活泼好动的孩子们释放天性的“耗电”机会。 -
设计选材:查理小姐很珍惜清净的独处时间,她喜欢窝在客厅窗边的“妈妈的怀抱”沙发里,一边享受阳光一边办公或发呆。她说:“每每坐在沙发上,看到旁边的寒江雪纹理的茶几,都会有种幸福感油然而生。”因为这是她最得意的作品。整个茶几由她自己设计并联系工厂制作,亚光的进口寒江雪岩板纹理与客厅的色调氛围十分吻合,看似简单的一张茶几,倾注了她对这个家的期待与热爱。
室内的光影是影响居住体验的关键要素。当空间与光线交互,蕴藏在无声动态中的宁静感总会让人心驰神往。
窗户是房子的眼睛,查理小姐的家在不同空间都留有大面积的窗户。例如下沉式客厅台阶旁的落地窗,一览无余地将室外的风景引入室内,四季的时序更替在眼前轮番上映,融为家里聚会、用餐时的绝佳背景,俨然家里的天然画作。
窗外的光影全凭自然的时节美景,而室内的光影考验设计的巧思。在客厅有一面长方形的金属镂空透光墙,原本只是想为楼道借光,然而当阳光透过金属圆孔洒向墙面时,金属的冷感与阳光的暖意、原木楼梯的温润相互交织,形成极富治愈感的视觉画面。
地下室的隔断墙也采用了同样的镂空设计,当天井的阳光斜射而来,方形光影映射在墙面,叶片的影子也在墙面轻轻晃动。此刻没有言语,空间的诗学,人与时间、自然的对话却正在进行时。 -
用户体验:当浪漫细腻与理性克制碰撞,风起时设计的金园圆、郭杨宜团队以极简的自由包容,为查理小姐的家定下自然、持久、有序的空间格局。在这个四层高、500平方米的上海别墅私宅里,内敛的灰白色墙面为家镀上治愈的底色,搭配温润木地板,没有多加修饰,留白的空间艺术温柔抚慰每一个归家人。
0
0

认证 · 让您身份增值