清浔


作品说明
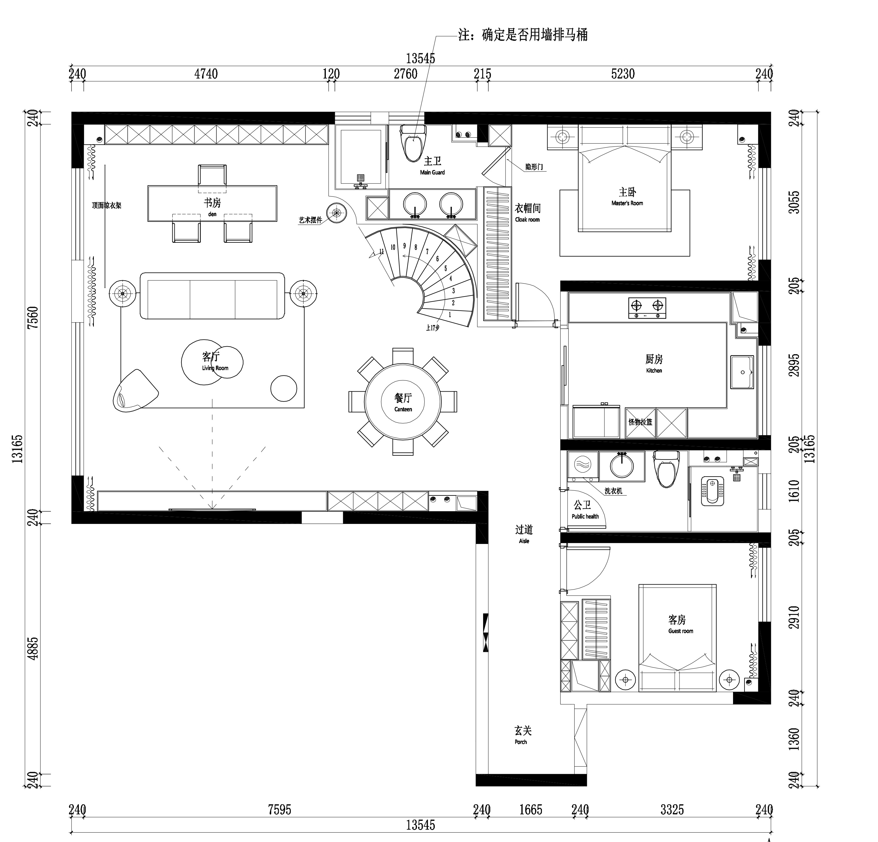
- 项目类型:住宅公寓
- 项目地点:长沙市
- 建筑面积:240.0000㎡
- 项目造价:366280.0000万元
- 主案设计师: 杨娇
- 参与设计师:杨娇
- 竣工时间:2024-10
- 设计机构:长沙木也建设有限公司
-
项目定位:以现代的设计风格为主体。
-
空间意境:空间大面积采用白色,通过灯光营造温暖环境。木色作为点缀为空间增添了更多的创造性和层次感。
客厅整体色调为白色,与客厅沙发色调和谐。简约的茶几与背景墙设计相呼应。
餐厅巧妙地运用波浪式线条设计布在简约的天花上,在视觉上融为一体,增强了空间的统一感。完美的弧度,律动的旋律,能在视觉上分隔空间,使简单的吊顶跳脱出了呆板的设计。中间的波浪式设计不像平面吊顶一样让人感觉平淡,配合灯光的烘托,反而增加了层次感。
主卧采用立体的格栅板直接一板到顶,增加空间的层次感,视觉上更显得高一些。旁边还叠加了一些原木的护墙板,温润的自然原木与格栅搭配,让卧室更加放松。卧室背景墙顶部还有一排暖光灯带,打开灯之后,氛围感满满。
全房色调充斥着清澈、纯净,正可谓清浔也。 -
空间布局:餐厅巧妙地运用波浪式线条设计布在简约的天花上,在视觉上融为一体,增强了空间的统一感。完美的弧度,律动的旋律,能在视觉上分隔空间,使简单的吊顶跳脱出了呆板的设计。中间的波浪式设计不像平面吊顶一样让人感觉平淡,配合灯光的烘托,反而增加了层次感。
-
设计选材:主卧采用立体的格栅板直接一板到顶,增加空间的层次感,视觉上更显得高一些。旁边还叠加了一些原木的护墙板,温润的自然原木与格栅搭配,让卧室更加放松。卧室背景墙顶部还有一排暖光灯带,打开灯之后,氛围感满满。
,多采用原木和环保型材料,在保证健康的同时使投入降低 -
用户体验:生活实用性很高,兼具美学与生活,家居生活便利化,生活更加舒适美满

