开通会员
* 不支持7天无理由退货
五大会员回报
一、五种秒生图 · 让您秒速谈单
文生图、全屋设计、线稿变精装、毛坯变精装、旧房翻新
——自研Ai、前期提案0成本,以图锁客、签单神器
二、秒生爆款文案 · 让您轻松日更
Ai秒生小红书爆款文案、专业级参赛文案
三、小程序分发 · 让您直达业主
V网站小程序支持多平台分享、高效引流
四、个人主页 · 让您专属展示
个人作品专属展示,设计师私属商务名片
五、红认证 · 让您身份增值
“行业奥斯卡”金堂奖加认证,让您增值
限时优惠,免费试用3天
金堂奖会员
399/ ¥880
终身会员2980元(不限年份、永久使用)
在线支付

在线支付安全认证

安全可靠

您的信息将完全加密

即买即用

享受更多优质会员服务

应付金额: 399

已扫码

请在手机上完成支付

点击刷新
请用微信扫码支付

支付即同意并接受

《金堂奖个人订阅服务协议》
恭喜,您已成功开通金堂奖VIP会员!
会员到期时间:2025-03-10
将于 10秒后,跳转至 秒景AI设计,立即跳转
关闭
简介
报名
记录
V网站简介
我的V网站
主页
发布作品
金堂奖
秒景AI
V网站
我的
立即红认证,享会员五大回报
您免费试用时间已到期,
立即红认证,享会员五大回报
您的体验仅剩2天,立即认证享无限使用!
您的体验仅剩1天,立即认证享无限使用!
您的体验仅剩1小时,立即认证享无限使用!
立即认证
领取三天试用期
恭喜您成为金堂奖会员立享五大回报
会员有效期截止
返回

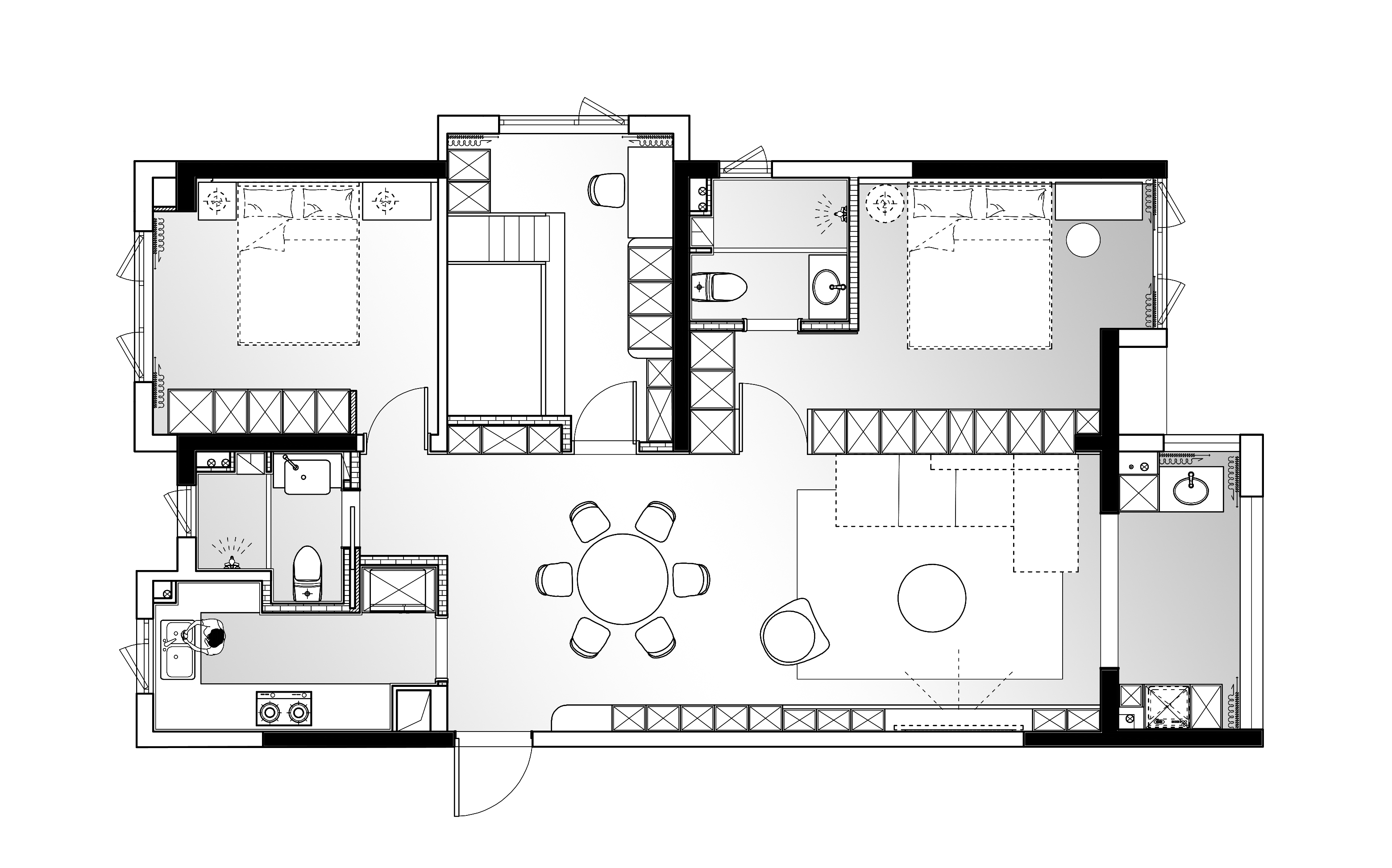
现代静谧之家

185
作品说明
  • 项目类型:住宅公寓
  • 项目地点:武汉市
  • 建筑面积:125.0000㎡
  • 项目造价:90.0000万元
  • 参与设计师:金涓鹏
  • 竣工时间:2024.1.20
  • 项目定位:
    这个被黑白灰和硬朗的材质充斥的家,谈不上温馨,但却处处散发着温暖,这种温暖并不来自于风格本身,而在于考虑好空间中每一处不容易被注意到的细节,最终具化成了家的模样。

  • 空间意境:
    从实用主义出发,也具备可观赏性,三代人的生活轨迹都有规划,在功能与视觉之间取得平衡,一切都刚刚好。

  • 空间布局:
    ◍ 现阶段为屋主独自居住,风格上需满足他的喜好;
    ◍ 当日子过成两个人,浪漫的氛围营造是提升生活甜度的调味剂;
    ◍ 等到新生命降临,三代人同住需保证各自生活的便利,也要有交流与互动;
    ◍ 孩子成长过程中,要有更多不易磕碰的活动空间,与充满趣味的童年……

  • 设计选材:
    将黑白灰做出层次是很考验功力的,用大自然般简洁粗犷的笔触治愈疲惫的身心,黑白灰也可以很不一样,石皮电视墙让现代家居多了几分原始感,或许生活并不需要100%精致,能够随心所欲就很好。

  • 用户体验:
    生活不是一成不变的,将未来能够设想到的各种场景尽可能融于空间之中,在现阶段就规划好屋主的生活路径,家也会变得更好住。
0
0