大方無隅



作品说明
- 项目类型:餐饮
- 项目地点:阜阳市
- 建筑面积:360.0000㎡
- 项目造价:120.0000万元
- 参与设计师:郭鹏涛 王馨悦
- 竣工时间:202404
- 设计机构:大點長樂设计
-
项目定位:大方無隅 | 褪去浮华 回归本真
“大方无隅,大器晚成,大音希声,大象无形。” -
空间意境:本案为原木风的餐饮空间设计。由朴素、自然组成,把自然放在核心位置,传递出平衡和谐的空间美学理念,通过空间与饮食文化的结合,链接人与自然,创新餐饮体验。
社区餐饮更需要舒缓自然的就餐环境。 -
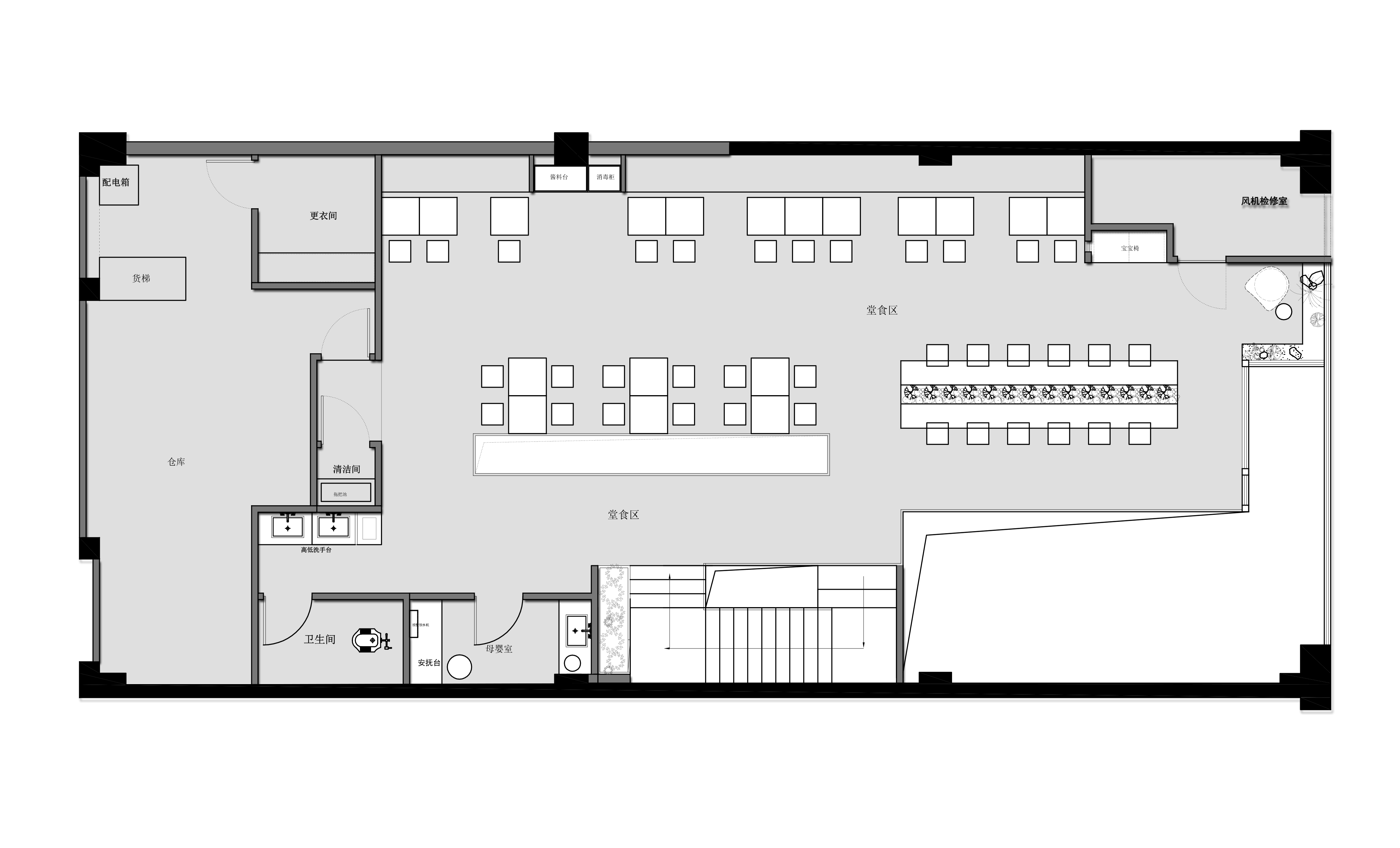
空间布局:室内打造了错落有致的木作结构与空间尺度,自然石材与木作结合,通过灯光渲染,营造独特的空间氛围。
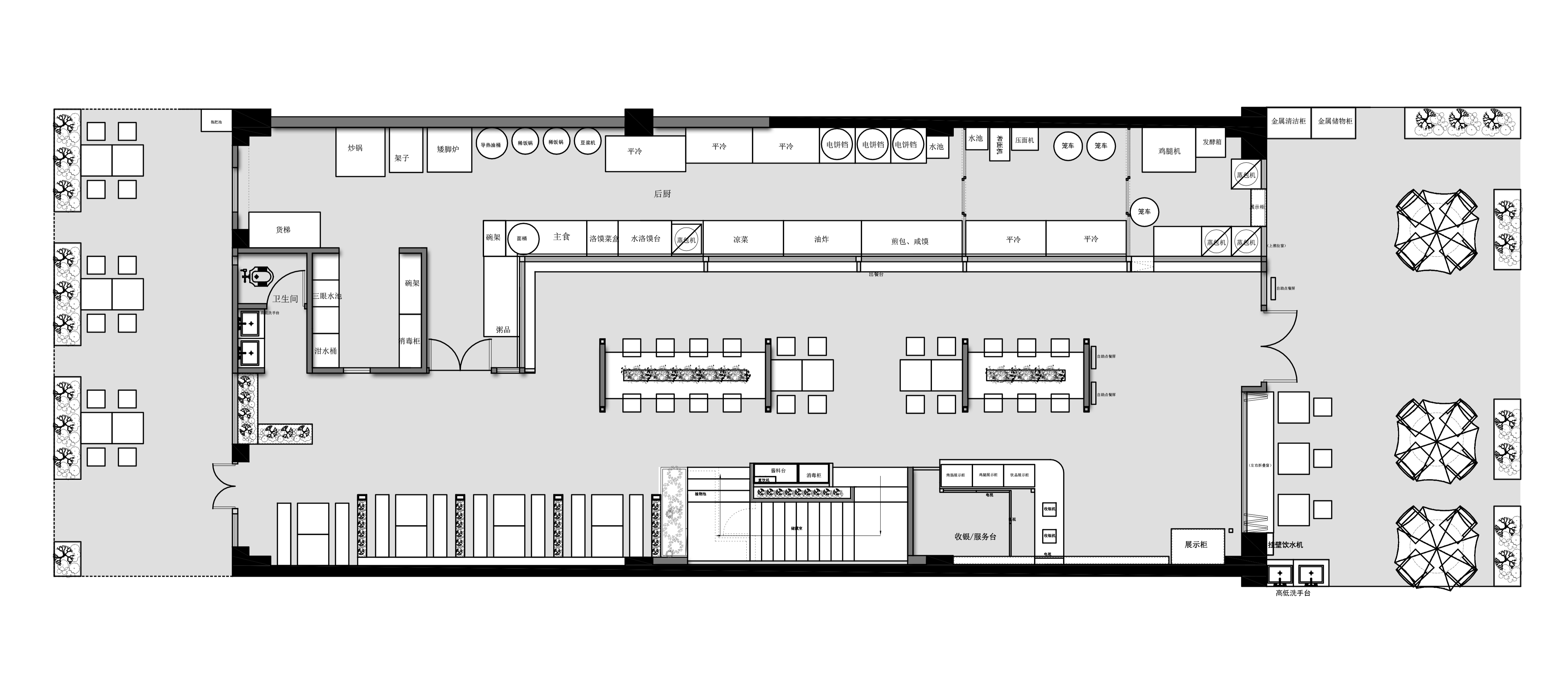
后厨采用的是L型的明档设计,体现出产品和食材的新鲜,展露出烟火气息。吊眉以鎏金板作为灯光的媒介,用肌理来漫射出独特的质感。
在一楼的中间区域,打造了一个“天窗”,与就餐区相呼应,打破界限,让空间不压抑,给人一种通透开阔之感。
二层空间挑空区域,打破了传统空间格局中缺乏灵气的可能性,为空间打造向上的力量,留足了呼吸空间。
挑空区域自下而上使用穿插木结构,打造了一个木屋檐,交错的体块带来视觉上的多维立体感,丰富着空间的表达。
不同时间的光线倒影出不同的画面,把自然的融合变成了独一无二的艺术,以光的指引,留下关于空间的万般形态。 -
设计选材:门头主要采用暗红作为主色调,用肌理与触感使结构彼此连接,两层大落地窗将里外互相融合,在自然光的映射下,塑造静谧,美好的氛围。
入口设置了户外坐台,通过外摆区域带动了空间的生活氛围,配合折叠推拉窗,延展空间范围,模糊边界感,多种形式的组合使就餐氛围更加丰富,创造更加舒适的室外体验。
入门左侧设置了原材料展示及服务台,中间为自助点餐和就餐区,右侧则为后厨区域,空间内动线流畅,运用木结构和雕花玻璃作为隔断,使得空间内形成独特的体验和氛围。
室内打造了错落有致的木作结构与空间尺度,自然石材与木作结合,通过灯光渲染,营造独特的空间氛围。 -
用户体验:楼梯设置在吧台右侧,拾级而上,共有两次转折,深色石材的冷和橡木板的温暖,最后经过灯光的调和,带来丰富的层次感。
在空间中设计了儿童楼梯扶手,体现人性化关怀,展现了对儿童这一特殊群体的照顾,提高友好度和亲和力。
空间的就餐区以二层空间为主,重构顶部空间,让线条交错中又有几何秩序的美,桌椅都由原木打造,减少不必要的装饰,用天然去雕饰,创造一种轻松柔和的氛围。
木质细腻纹理传达了亲切温和的质感,水磨石展现出质朴而真实,沉稳而内敛的气息。

