昼夜 I 宋风灵韵 x 禧九
720
作品说明
- 项目类型:餐饮
- 项目地点:阜阳市
- 建筑面积:145.0000㎡
- 项目造价:95.0000万元
- 参与设计师:程强 郭鹏涛 王馨悦
- 竣工时间:2021-12-20
- 设计机构:大點長樂設計
-
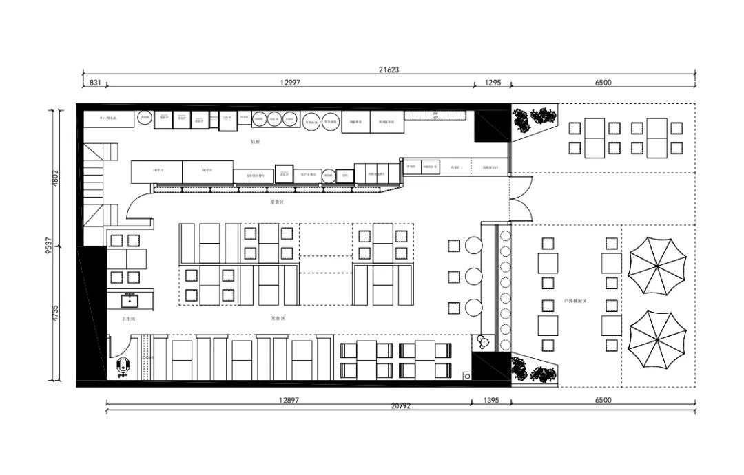
项目定位:本案为宋式风格的市井社区餐饮空间设计,提取阜阳的文化地域元素,融入其中,让空间形成历史沉淀感、厚重感。宋代风俗画为灵感,将繁杂的街市景象纳入统一而富有变化的设计中。店铺为包子铺, 但店铺为更有温度的空间 “健康有温度,禧九包子铺”。
-
空间意境:新现代中式 空间使用了大量木质廊架 与厨房上方造型格栅遥相呼应,同时木廊架与格栅融入各角度的线条灯,让空间更加立体,同时空间内使用了两套灯光系统,白天社区市井包子铺,晚间卤点酒水铺。优化空间维度的同时立体时间维度。暮色降临,蓝色的灯光对比的色彩,繁复有致的线条,未来感很强,抓住刹那间光的变化,格调清丽在云烟濛濛、有与无之间的美。
-
空间布局:包子铺为社区店,优化环境,提升舒适度的同时更要提供更舒适的卫生间洗手台,让带孩子就餐的宝妈及老人们更方便、舒适、卫生。 同时加入可对外打开的地台空间,内外均可就餐,拉进内外的距离。让路人更通透的感受内外零遮挡的感受“温度”。白天餐饮营业,夜幕时分户外休闲区举行沙龙活动,兴趣相投的好友在此休息洽谈。宛如欧阳修在《醉翁亭记》表达的悠闲自适,人们的心灵沉浸到闲适、恬淡的情境里,获得了一种平衡、和谐的感受。
-
设计选材:空间立体空间使用了艺术肌理涂料 红砖贴片等材料,简约 环保
-
用户体验:白天能够高质量的解决温饱刚需,晚上又是志同好友小酌。悠闲自适。
0
0

认证 · 让您身份增值