三泰三



作品说明
- 项目类型:休闲娱乐
- 项目地点:莆田市
- 建筑面积:855.0000㎡
- 项目造价:150.0000万元
- 参与设计师:孙伟忠,朱尔年,莫雨佳
- 竣工时间:2024.04
- 设计机构:灯灯灯凳创意工作室
-
项目定位:项目的定位为一个结合曼谷夜生活和多元文化的疗愈SPA空间,以“暹罗万象”为主题。设计灵感源于曼谷的繁华与宁静,目的是为访客提供一个从热带雨林、华灯幻彩到安静疗愈空间的心灵旅程。通过多样文化元素的交织,传递曼谷的异国风情与疗愈氛围。
-
空间意境:空间风格创新在于巧妙地结合曼谷多元文化和夜生活的繁华感与宁静疗愈的空间氛围。通过镜面反射、折射以及热带绿植、鲜花的搭配,创造出一种迷幻错觉的效果,使空间呈现出半梦半醒的状态。鲜明的暗红色和镜面装置的设计,反映出曼谷的异域风情和迷人的夜晚气氛。
-
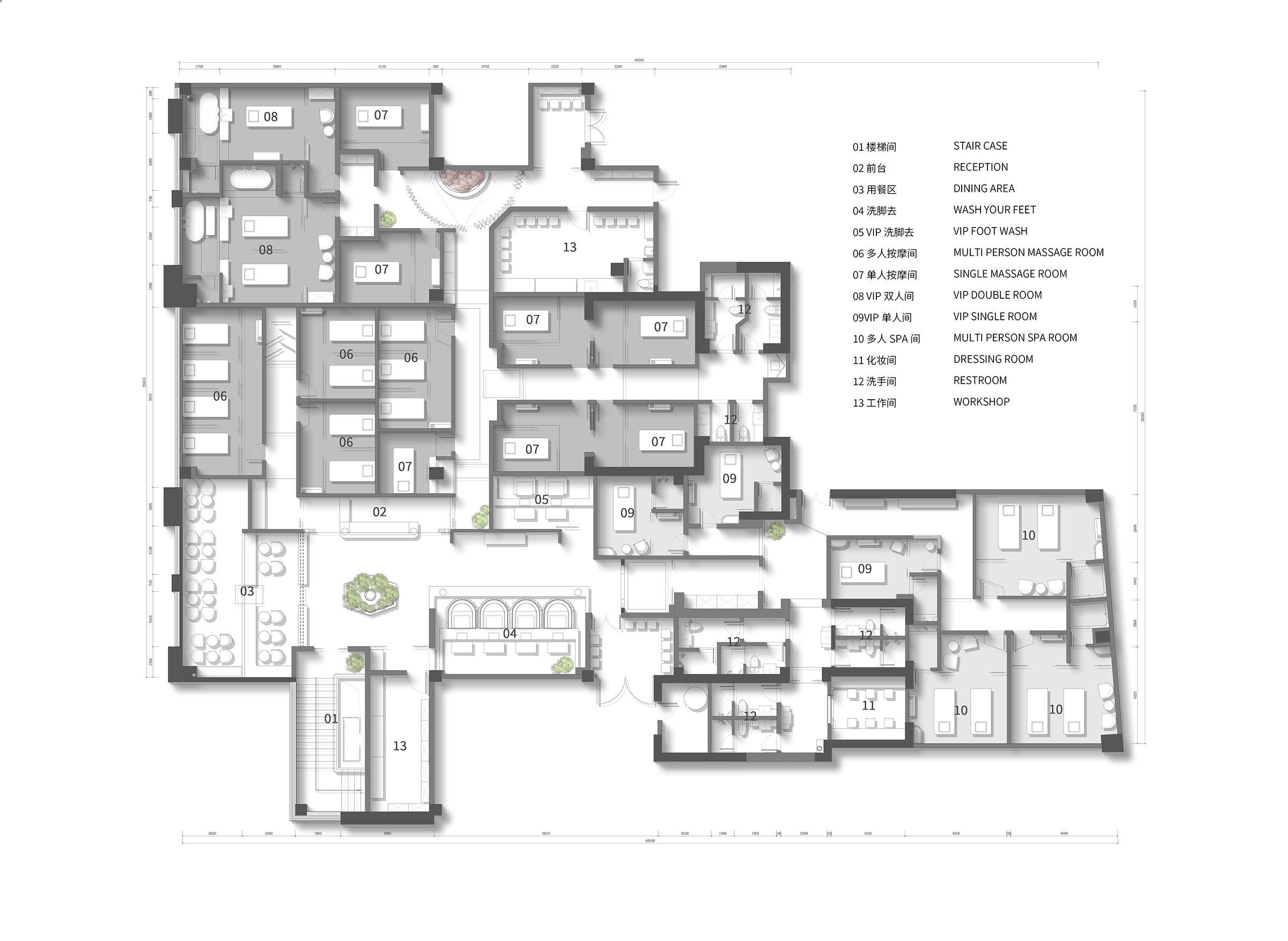
空间布局:空间布局的创新点体现在巧妙利用有限的面积延展接待区域至二层,增强了进入空间的仪式感。整体空间通过错层和镜面装置的使用,引导访客逐渐从繁华的前区进入宁静的疗愈空间。水波纹玻璃砖和半透分隔让空间层次感更强,形成逐步递进的奇幻体验。
-
设计选材:设计选材上,结合水磨石、布帘、镜面反射、金箔纸扇等元素,体现了复古与现代的交融。这些材质的使用,既符合低碳和经济性的要求,又创造了沉浸式的空间感受,提升了整体空间的美学效果。
-
用户体验:用户反馈表现出强烈的疗愈体验感,空间的设计成功地将曼谷的夜生活氛围和宁静疗愈空间融合,访客能在这里放松身心,体验从热带雨林到梦幻氛围的心灵旅程。迷幻的视觉效果、细腻的空间布局以及丰富的文化元素,给用户带来了一次独特的感官享受。整体空间被认为具有极高的治愈感与艺术氛围,访客在进入时感受到强烈的仪式感与文化碰撞带来的震撼。

