-
项目定位:为成都市高新区政务办公大楼设计多功能空间,满足会议、展览、办公和餐饮等多样化需求。
-
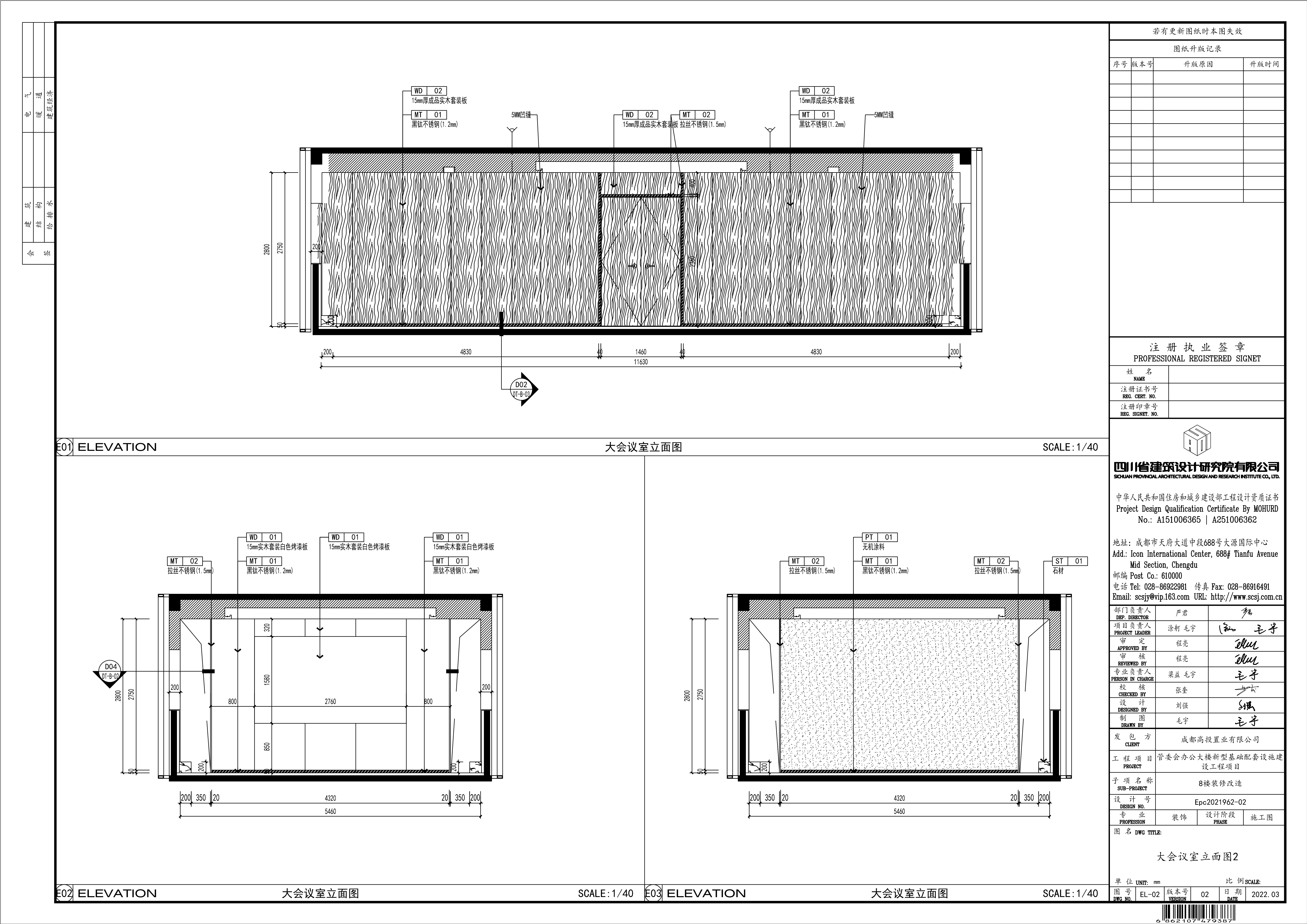
空间意境:环境风格上体现现代政务的庄重与高效,采用简洁大气的设计,融合科技元素,展现高新区的创新精神。
-
空间布局:在空间布局上合理分区,各功能区既相对独立又便于联系,会议室、展厅、办公区和食堂动线流畅。
-
设计选材:选材注重低碳与经济性,选用环保且耐用的材料,既符合政务办公的长期使用需求,又体现环保理念。
-
用户体验:投入使用后,用户反馈各功能区使用方便,空间设计有助于提高工作效率,环境整洁且具有现代感。
0
0

认证 · 让您身份增值
370