拂晓
159
作品说明
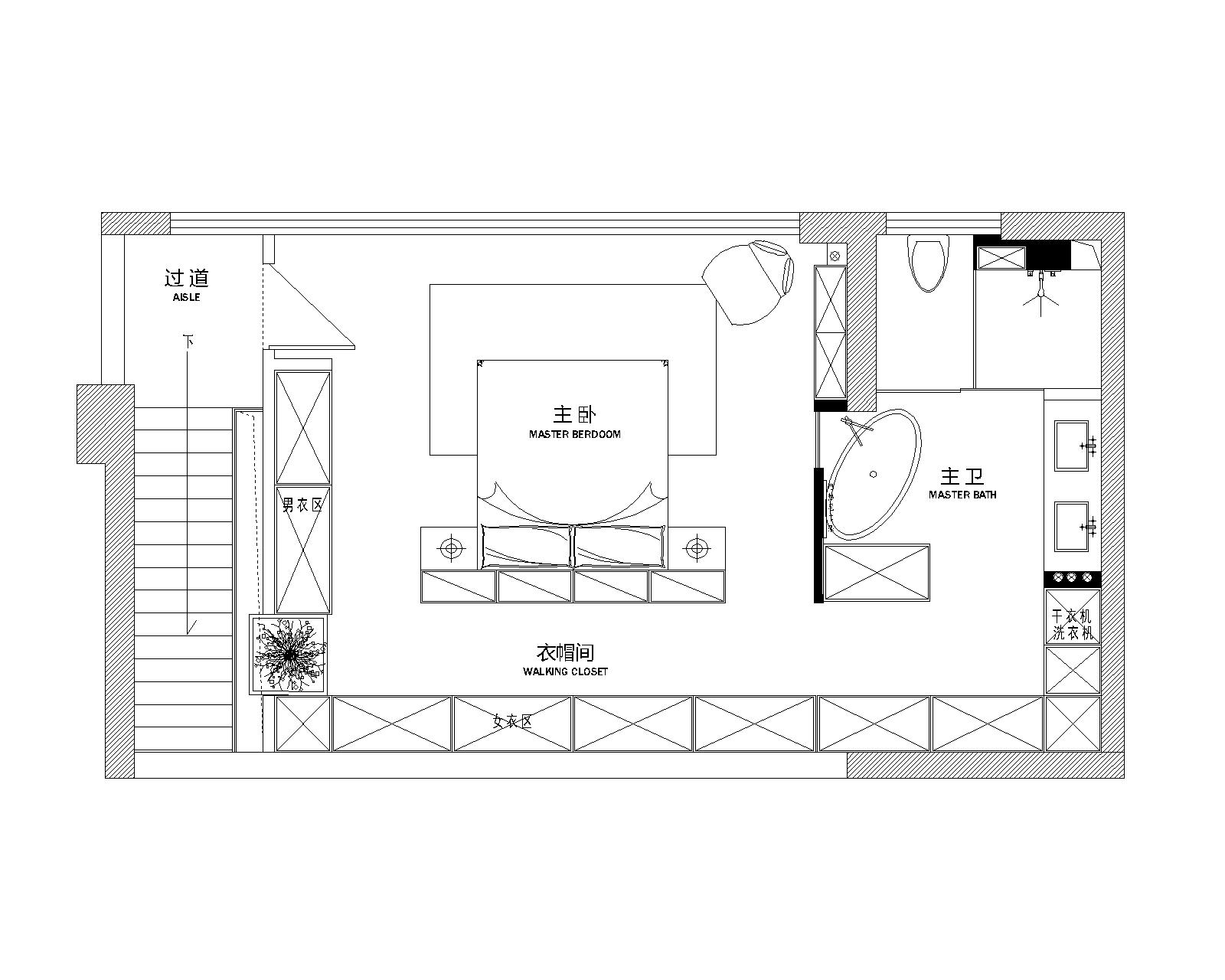
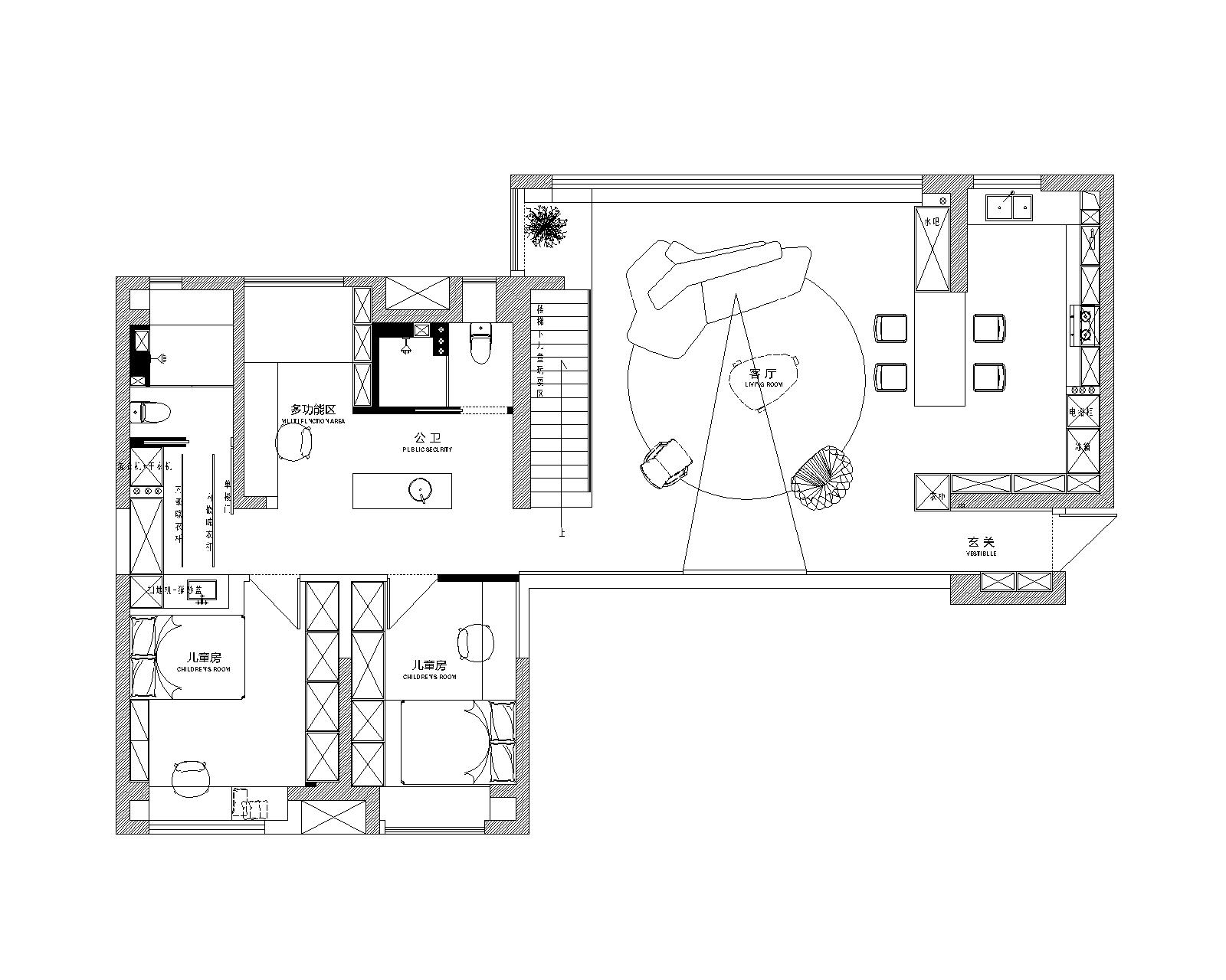
- 项目类型:住宅公寓
- 项目地点:贵阳市
- 建筑面积:190.0000㎡
- 项目造价:90.0000万元
- 参与设计师:雷刚、程世付
- 竣工时间:2024.11
- 设计机构:贵阳纵逸设计工作室
-
项目定位:生活不是要使一切都最大化,而是要回馈某些东西,例如光线,空间,形式,宁静,快乐。
-
空间意境:恬静、自然、惬意是家本该有的样子静谧舒适的空间,有温暖的阳光相伴闲暇时看一本书、弹一首曲悠然自得,慢慢生活
-
空间布局:空间是沉默的,悄无声息的,但在设计师的眼里空间的声音,无处不在
”格局在外,舒适在心“,内外兼修的好生活才是美好的人居选择 -
设计选材:透过理想的住居环境,呈现一种经受得住时间考验的动人感受。素色墙面与温润的色泽组成空间的全部,在微风拂动的午后,细细品味属于生活的真实味道。
-
用户体验:朝时,阳光清风里,光影流动,尽显流畅轻灵;暮时,灯火霓虹里,光影幻变成优雅的剪影,与生活同频。
0
0

认证 · 让您身份增值