揽境
180
作品说明
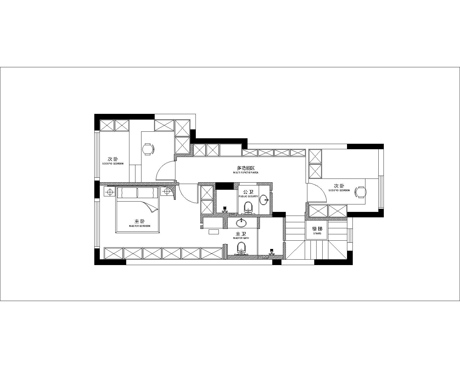
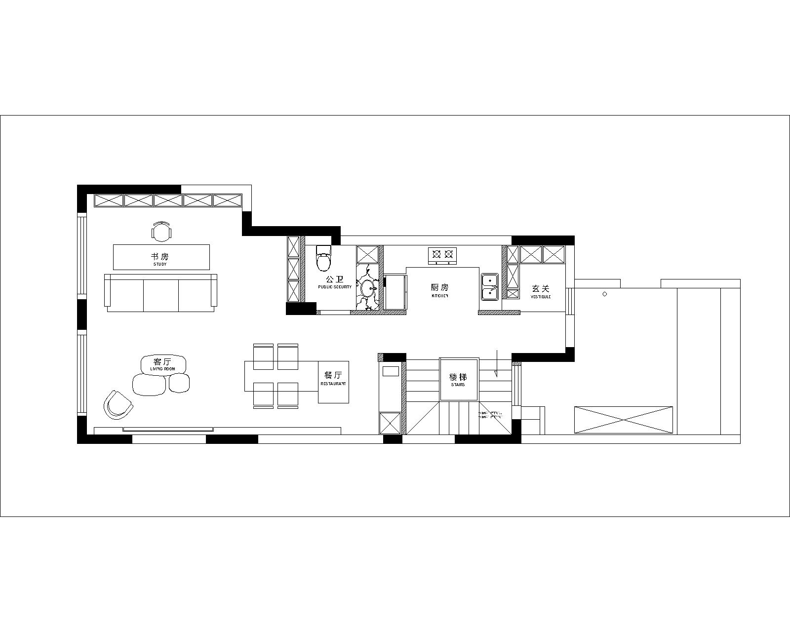
- 项目类型:住宅公寓
- 项目地点:贵阳市
- 建筑面积:228.0000㎡
- 项目造价:120.0000万元
- 参与设计师:雷刚、谢星
- 竣工时间:2024.03
- 设计机构:贵阳纵逸设计工作室
-
项目定位:好的住宅,不仅是一砖一瓦的组合更包括空间、阳光、绿植,这是一场温柔的探索也是无数次美妙的碰撞。家,与每个人息息相关,由月及年,从晨曦到日落,从天亮到天黑,不断往复,而卧室就是承载身体应对昼夜交替的空间。
-
空间意境:时间流转,空间变换;黑与白,阴暗与光明,冷与暖,皆是生活。那些具有感染力的场所,永远传递出强烈的空间感。它们以一种特别的方式拥抱被称为空间的神秘虚无,使之触动人心。
-
空间布局:双面可用的沙发区,打造出更随意的坐卧选择与舒适体验,让阅读与交流的切换只在一个转身之间,所有家庭成员以及各自的行为,都在这个充满可能性的空间下有效的相处与发生。当我们谈论空间设计,我们并不是在组合或者设计一套造型,而是在设计“空”的部分,也就是人可以游走体验的部分。
-
设计选材:木质吊顶铺展延伸,层次错落有致,仿若将室外的自然意境延伸到了屋内,格调简雅而温润有加。
-
用户体验:业主也是建筑行业的创业者,他公司的两个合伙人都是纵逸的老客户,业主在朋友的推荐下自然而然的选择了纵逸,业主对建材是非常的了解的,实话要得到他的认可实属不容易,还好我们专业又负责,也算是平稳有序的完成了这次委托。
0
0

认证 · 让您身份增值