友邦壹号院
7
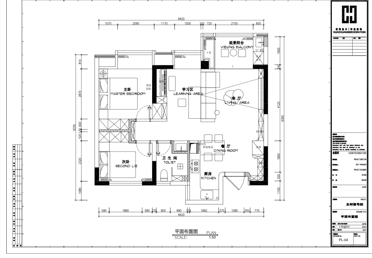
作品说明
- 项目类型:住宅公寓
- 项目地点:上饶市
- 建筑面积:70㎡
- 项目造价:25万元
- 参与设计师:华少
- 竣工时间:2024
- 设计机构:华创装饰
-
项目定位:
• 以简洁、明快的线条和几何形状为主要特征,营造出时尚、大气的视觉效果。
-
空间意境:运用直线、几何图形等简洁的线条来勾勒空间轮廓,营造出简洁大气的视觉效果
-
空间布局:打破传统单一功能分区,将客厅、餐厅、书房等功能区域融合,实现空间的高效利用。
开放式厨房:与餐厅或客厅相连,增加互动性,同时让空间更加开阔。
无主灯设计:采用分散的点光源和隐藏式灯带,营造出柔和均匀的照明效果,同时让空间更加简洁。 -
设计选材:选用环保、可持续的材料是现代风格实现低碳的重要途径。例如,使用回收木材、竹材、再生石材等天然材料,减少对自然资源的消耗。同时,选择低VOC(挥发性有机化合物)的涂料、胶水等装修材料,降低室内空气污染。
通过合
理的空间布局和采光设计,最大限度地利用自然光线和通风,减少人工照明和空调的使用。此外,采用节能电器、智能家居系统等,实现能源的高效利用
现代风格不仅仅关注当下的美观与功能,更着眼于未来的可持续发展。在设计过程中,充分考虑建筑的生命周期,从材料的选择、施工过程到后期的维护和改造,都遵循可持续发展的原则,为人们创造一个更加绿色、健康的生活环境 -
用户体验:
现代风格设计以简洁、大气为主要特点,追求空间的开放性和流畅性。 在平面布局上,强调功能分区的合理性。客厅通常作为家庭活动的核心区域,面积较为宽敞,与餐厅相连,形成一个开放式的空间,方便家人之间的互动和交流。餐厅紧邻厨房,减少了动线距离,提高了生活便利性。 卧室注重私密性和舒适性,布局简洁,以满足休息和放松的需求为主。卫生间采用干湿分离的设计,提高使用效率和卫生条件。 色彩方面,现代风格多以中性色为主调,如白色、灰色、黑色等,搭配少量明亮的色彩作为点缀,营造出简洁而不失活泼的氛围。 材质的选择上,常使用玻璃、金属、石材等现代感十足的材料,展现出时尚、精致的品质。 家具的搭配以简洁的造型和舒适的功能为首要考虑,注重与整体空间风格的协调性。 总的来说,现代风格设计的平面布局简洁实用,色彩和材质搭配时尚大气,为人们打造出一个舒适、时尚的生活空间。
0
0

认证 · 让您身份增值